Trouver...

Language: FR

Devise: EUR

Vente Maison de ville 3 pièces

Publié le 12 December 2025
Type
Bien immobilier
Tarif
239 900 €
Chambres
1
Salles de bain
0

Vente Maison de ville 3 pièces

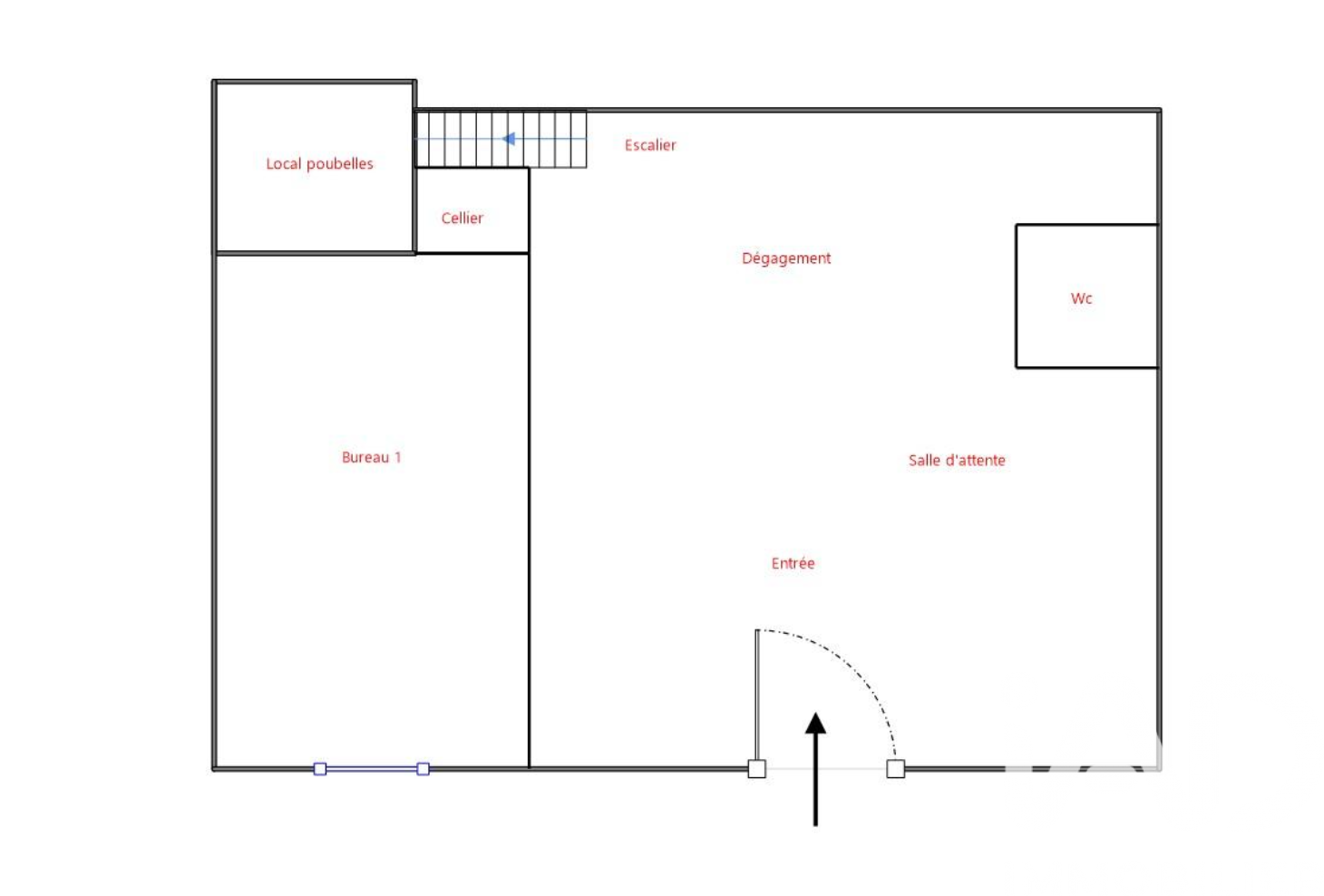
Iad France - Lucie Boue vous propose : Bourg d'Arthon en Retz - Chaumes-en-Retz Cette maison de ville de 112 m² aujourd'hui exploitée en local professionnel. Le rez-de-chaussée accueille une entrée, un WC PMR et un bel espace de vie comprenant un coin cuisine. À l'étage, un espace supplémentaire offre de multiples possibilités d'aménagement : espace de vie, bureau, chambre, espace détente ou activité professionnelle, à vous de décider selon vos besoins. Une chambre et une salle de bain. Les volumes généreux et les multiples ouvertures confèrent à cet espace un charme indéniable. Pas d'extérieur et pas de garage. * Résidence principale ou secondaire * Investissement locatif * Activité professionnelle (bureaux, espace co-working ou autres) Secteur idéal - un véritable atout pour les résidents en quête de tranquillité, tout en restant proches des commerces et des transports, ou pour une activité professionnelle. Honoraires d'agence à la charge du vendeur. Information d'affichage énergétique sur ce bien : classe ENERGIE B indice 110 et classe CLIMAT A indice 3. Les informations sur les risques auxquels ce bien est exposé, y compris l'obligation légale de débroussaillement, sont disponibles sur le site Géorisques : http://www.georisques.gouv.fr. La présente annonce immobilière a été rédigée sous la responsabilité éditoriale de Mme Lucie Boue mandataire indépendant en immobilier (sans détention de fonds), agent commercial de la SAS I@D France immatriculé au RSAC de SAINT NAZAIRE sous le numéro 452564842, titulaire de la carte de démarchage immobilier pour le compte de la société I@D France SAS.

À proximité

Recherche des commodités à proximité...

Détails de l'annonce

Localisation

Ville
Chaumes-en-Retz
Pays
FR

Diagnostics / Énergie

Diagnostic DPE
110
Diagnostic GES
3

Surfaces / Pièces / Composition

Nombre d’étages
2

Chauffage et diagnostics

Diagnostic de performance énergétique (DPE)
a
b
c
d
e
f
g
Indice d'émission de gaz à effet de serre (GES)
a
b
c
d
e
f
g
Rappelez-moi