Type
Bien immobilierTarif
160 000 €Chambres
3Salles de bain
0Vente Appartement 4 pièces
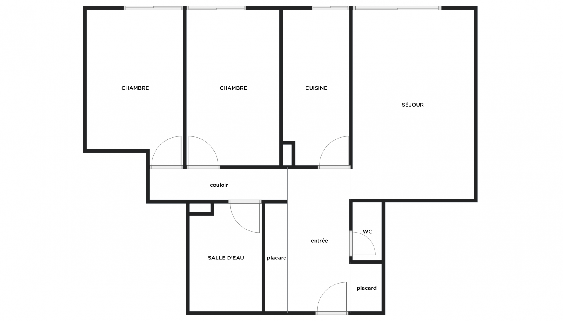
Iad France - Anne Benar-Maidanik vous propose : Opportunité à Verneuil-sur-Seine – Pour habiter ou Investir ! Découvrez ce charmant appartement T4 idéalement placé, cet appartement représente une opportunité à ne pas manquer pour investir dans l'immobilier locatif, ou venir habiter dans ce joli village des Yvelines. L'appartement offre une surface généreuse répartie en 4 pièces. Il comprend : Une entrée avec placard. Un grand séjour double lumineux (3ème chambre possible) avec grand balcon couvert en loggia VUE PARC. Une cuisine séparée. Un cellier. Deux chambres avec placards, possibles 3, Une salle d'eau récente, Un WC séparé. Une cave complète ce bien. Place de parking libre en extérieur, et nombreuses places pour visiteurs. L'immeuble fait partie d'un ensemble de bâtiments en copropriété, dans un grand parc arboré avec un lac. POUR VOTRE CONFORT : Doubles-vitrages, très bon état général, pas de travaux ! Douche à l'italienne. UN VRAI PLUS : Rénovation énergétique en cours avec isolation complète par l'extérieur, et rénovation de tous les halls par l'intérieur. Situé dans un environnement calme et verdoyant, cet appartement est parfait pour ceux qui recherchent la tranquillité tout en restant proche des commerces et services de la ville. Vous pourrez profiter des espaces extérieurs bien entretenus, des aires de stationnement, et de la proximité des commerces et écoles à pied. Pour les transports : Arrêt de bus sur place. La ville est desservie par 2 gares de la Ligne J à 25 mn de Paris Saint Lazare. En 2026, prolongation de la ligne RER E ! Contactez-moi dès aujourd'hui pour organiser une visite ! La presente annonce immobiliere vise 2 lots situés dans une copropriété de 180 lots au total et ne faisant l'objet d'aucune procédure en cours citée à l'article L. 721-1 du code de la construction et de l'habitation. Montant moyen mensuel de charges déclaré par le vendeur : 285.67€ par mois (soit 3428 € annuel). Honoraires d'agence à la charge du vendeur. Information d'affichage énergétique sur ce bien : classe ENERGIE E indice 250 et classe CLIMAT E indice 54. Les informations sur les risques auxquels ce bien est exposé, y compris l'obligation légale de débroussaillement, sont disponibles sur le site Géorisques : http://www.georisques.gouv.fr. La présente annonce immobilière a été rédigée sous la responsabilité éditoriale de Mme Anne Benar-Maidanik mandataire indépendant en immobilier (sans détention de fonds), agent commercial de la SAS I@D France immatriculé au RSAC de Versailles sous le numéro 534981840, titulaire de la carte de démarchage immobilier pour le compte de la société I@D France SAS.
À proximité
Recherche des commodités à proximité...
Détails de l'annonce
Localisation
Ville
Verneuil-sur-Seine
Pays
FR
Diagnostics / Énergie
Diagnostic DPE
250
Diagnostic GES
54
Surfaces / Pièces / Composition
Nombre d’étages
4
Étage
4
Chauffage et diagnostics
Diagnostic de performance énergétique (DPE)
a
b
c
d
e
f
g
Indice d'émission de gaz à effet de serre (GES)
a
b
c
d
e
f
g
