Type
Bien immobilierTarif
299 000 €Chambres
3Salles de bain
0Vente Appartement 4 pièces
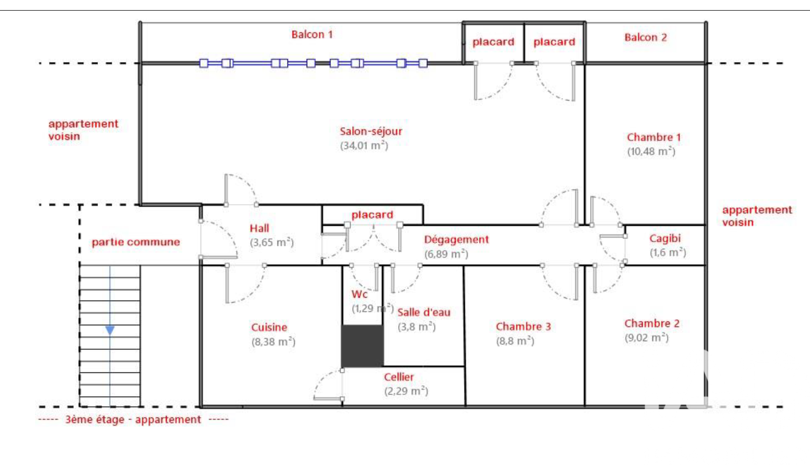
Iad France - Florie Chartrou vous propose : Au cOEur du bourg d’Urrugne, dans un environnement recherché pour sa qualité de vie, découvrez cet appartement très lumineux, situé au premier et dernier étage d’une très belle maison basque traditionnelle, au sein d’une petite copropriété de seulement trois lots. Les volumes sont généreux, avec ses 144 m² au sol (130 m² carrez), l’appartement offre un vrai potentiel d’aménagement. Quelques travaux de rénovation permettront de le remettre au goût du jour et de révéler pleinement ses atouts. Ici, tout se fait à pied : commerces, écoles, commodités. Vous êtes à quelques minutes du centre de Saint-Jean-de-Luz, des plages de Socoa et à proximité immédiate des grands axes. R0 : L’appartement bénéficie d’une entrée totalement indépendante au rez-de-chaussée, avec une pièce de 12 m² pouvant accueillir du rangement. Un escalier privatif vous mène à l’étage où se développe l’habitation. Vous trouverez au R + 1 : - Une vaste pièce de vie (43 m²) traversante est-ouest avec cuisine ouverte, équipée d’une pompe à chaleur réversible. - Trois chambres. - Une salle de bain avec baignoire, et une salle d’eau avec WC. - Un toilette supplémentaire indépendant. - Un grand cellier / buanderie pouvant faire office d’atelier ou être repensé en chambre supplémentaire selon vos besoins. En complément : - Un garage indépendant de 22 m² permettant de stationner un véhicule. - En plus de la surface annoncée, 66 m² de combles aménageables sous rampants offrant encore des possibilités d’extension. Contactez-nous pour le dossier complet : photos, vidéos, plan côtés. Nous pouvons également vous accompagner dans la réalisation des devis de rénovation selon vos besoins et envies. La presente annonce immobiliere vise 2 lots situés dans une copropriété de 7 lots au total et ne faisant l'objet d'aucune procédure en cours citée à l'article L. 721-1 du code de la construction et de l'habitation. Montant moyen mensuel de charges déclaré par le vendeur : 20€ par mois (soit 240 € annuel). Honoraires d'agence à la charge du vendeur. Information d'affichage énergétique sur ce bien : classe ENERGIE C indice 145 et classe CLIMAT A indice 4. Les informations sur les risques auxquels ce bien est exposé, y compris l'obligation légale de débroussaillement, sont disponibles sur le site Géorisques : http://www.georisques.gouv.fr. La présente annonce immobilière a été rédigée sous la responsabilité éditoriale de Mme Florie Chartrou mandataire indépendant en immobilier (sans détention de fonds), agent commercial de la SAS I@D France immatriculé au RSAC de Bayonne sous le numéro 810743047, titulaire de la carte de démarchage immobilier pour le compte de la société I@D France SAS.
Ce mois
Cette annonce est récente
À proximité
Recherche des commodités à proximité...
Détails de l'annonce
Localisation
Ville
Urrugne
Pays
FR
Diagnostics / Énergie
Diagnostic DPE
120
Diagnostic GES
4
Chauffage et diagnostics
Diagnostic de performance énergétique (DPE)
a
b
c
d
e
f
g
Indice d'émission de gaz à effet de serre (GES)
a
b
c
d
e
f
g
