Type
Bien immobilierTarif
187 000 €Chambres
3Salles de bain
1vente appartement 4 Pièce(s)
TOULON-EST - BRUNET :
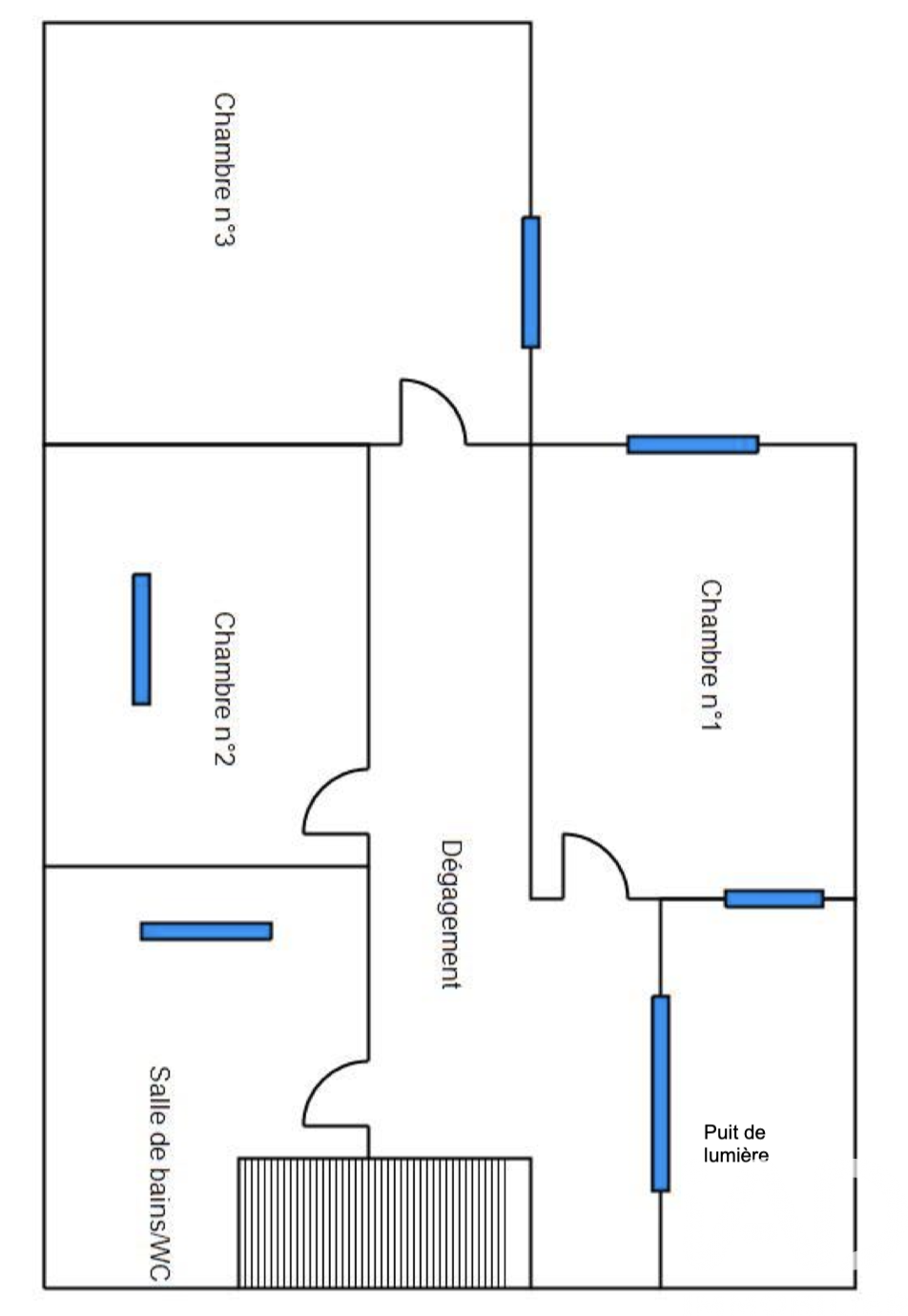
Dans le quartier Brunet, je vous invite à découvrir cet impressionnant appartement T4 d'une superficie de plus de 70 m².
Inspiré d'un style contemporain, l'appartement a bénéficié d'une rénovation complète terminée au début de 2025.
Il est doté d'une spacieuse loggia de 8 m². L'habitation vous offre une vaste cuisine-séjour climatisée de 27 m² connectée à la loggia.
Le bien inclut une salle de bains, une toilette séparée et trois chambres parmi lesquelles une est pourvue d'une salle d'eau.
En complément, une cave est mise à disposition.
Les finitions sont de très grande qualité, ce qui rend cet appartement incontournable. Vous serez séduits par le séjour de 25 m², son exposition Sud- Nord qui apporte une luminosité optimale, ainsi que par sa vue dégagée.
Cet appartement se trouve au 4? étage avec ascenseur d'un immeuble résidentiel de standing, construit en 1960, qui compte 8 étages en total et dont l'état est bon.
Il est également équipé de doubles vitrages.
La cuisine est de type américaine équipée et l'eau chaude est individuelle électrique. Le chauffage est collectif et l'état intérieur est neuf.
Ideal pour une famille !!!!!
LES CLES DU SOLEIL BRUNET 04 94 00 56 56
Les informations sur les risques auxquels ce bien est exposé sont disponibles sur le site Géorisques : www.georisques.gouv.fr
Dans le quartier Brunet, je vous invite à découvrir cet impressionnant appartement T4 d'une superficie de plus de 70 m².
Inspiré d'un style contemporain, l'appartement a bénéficié d'une rénovation complète terminée au début de 2025.
Il est doté d'une spacieuse loggia de 8 m². L'habitation vous offre une vaste cuisine-séjour climatisée de 27 m² connectée à la loggia.
Le bien inclut une salle de bains, une toilette séparée et trois chambres parmi lesquelles une est pourvue d'une salle d'eau.
En complément, une cave est mise à disposition.
Les finitions sont de très grande qualité, ce qui rend cet appartement incontournable. Vous serez séduits par le séjour de 25 m², son exposition Sud- Nord qui apporte une luminosité optimale, ainsi que par sa vue dégagée.
Cet appartement se trouve au 4? étage avec ascenseur d'un immeuble résidentiel de standing, construit en 1960, qui compte 8 étages en total et dont l'état est bon.
Il est également équipé de doubles vitrages.
La cuisine est de type américaine équipée et l'eau chaude est individuelle électrique. Le chauffage est collectif et l'état intérieur est neuf.
Ideal pour une famille !!!!!
LES CLES DU SOLEIL BRUNET 04 94 00 56 56
Les informations sur les risques auxquels ce bien est exposé sont disponibles sur le site Géorisques : www.georisques.gouv.fr
À proximité
Recherche des commodités à proximité...
Détails de l'annonce
Localisation
Ville
Toulon
Pays
France
Caractéristiques / Équipements
Ascenseur
Oui
Cave
Oui
Terrasse
Oui
Diagnostics / Énergie
Diagnostic DPE
D
Diagnostic GES
D
Finances / Mandat / Références
Numéro de mandat
13223
Type de mandat
02/02/2026
Chauffage et diagnostics
Diagnostic de performance énergétique (DPE)
a
b
c
d
e
f
g
Indice d'émission de gaz à effet de serre (GES)
a
b
c
d
e
f
g
