Type
Bien immobilierTarif
550 000 €Chambres
3Salles de bain
0Vente Maison/villa 5 pièces
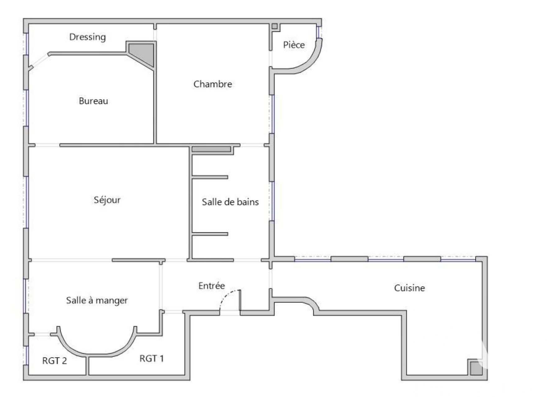
Iad France - Matthieu Chionchini vous propose : COUP DE COEUR - PEGOMAS - Maison mitoyenne d'un côté de 2023 - 5P - 143 m² - R + 1 - Jardin aménagé de 60 m² + Jardin privatif de 1100 m² - 3 parkings privatifs A VENDRE SUR PEGOMAS (Limite TANNERON) : Maison mitoyenne d'un côté, récente (construction de 2023), R + 1,5 pièces d'environ 143 m² avec jardin privatif d'environ 1159 m²m² dont jardin aménagé de 60 m² avec vue mer panoramique et imprenable sur les collines de Tanneron et sur les îles de Lérins. La maison est composée d'une cuisine aménagée / équipée ouverte sur salle à manger, séjour, 3 chambres dont une parentale avec salle de bain et wc, salle de bain, 2 wc indépendants, buanderie. 2 parkings privatifs couverts et 1 parking privatif extérieur. Vous apprécierez ce bien pour : - Son secteur résidentiel - Son environnement calme - Sa vue mer panoramique et imprenable sur les collines de Tanneron et sur les îles de Lérins - Ses beaux volumes - Ses prestations modernes - Sa luminosité - Sa facilité de stationnement - Ses nombreux rangements - Son confort (Cuisine entièrement équipée, fenêtres et baie vitrée double vitrage PVC, climatisation réversible, volets roulants électriques, électricité aux normes, fibre optique, aucun vis-à-vis. ) - Sa proximité des écoles, des commerces et arrêts de bus Charges copropriété mensuelles : environ 50€ (eau froide, assurance copropriété, entretien fosse septique) Taxe foncière : 2234€ Merci de contacter Matthieu CHIONCHINI. Manager et Conseiller Immobilier du réseau iad France. La presente annonce immobiliere vise 4 lots situés dans une copropriété de 24 lots au total et ne faisant l'objet d'aucune procédure en cours citée à l'article L. 721-1 du code de la construction et de l'habitation. Montant moyen mensuel de charges déclaré par le vendeur : 50€ par mois (soit 600 € annuel). Honoraires d'agence à la charge du vendeur. Information d'affichage énergétique sur ce bien : classe ENERGIE B indice 104 et classe CLIMAT A indice 3. Les informations sur les risques auxquels ce bien est exposé, y compris l'obligation légale de débroussaillement, sont disponibles sur le site Géorisques : http://www.georisques.gouv.fr. La présente annonce immobilière a été rédigée sous la responsabilité éditoriale de M Matthieu Chionchini mandataire indépendant en immobilier (sans détention de fonds), agent commercial de la SAS I@D France immatriculé au RSAC de Grasse sous le numéro 752939330, titulaire de la carte de démarchage immobilier pour le compte de la société I@D France SAS.
À proximité
Recherche des commodités à proximité...
Détails de l'annonce
Localisation
Ville
Pégomas
Pays
FR
Diagnostics / Énergie
Diagnostic DPE
104
Diagnostic GES
3
Surfaces / Pièces / Composition
Nombre d’étages
2
Chauffage et diagnostics
Diagnostic de performance énergétique (DPE)
a
b
c
d
e
f
g
Indice d'émission de gaz à effet de serre (GES)
a
b
c
d
e
f
g
