Type
Bien immobilierTarif
369 000 €Chambres
4Salles de bain
0Vente Maison d'architecte 7 pièces
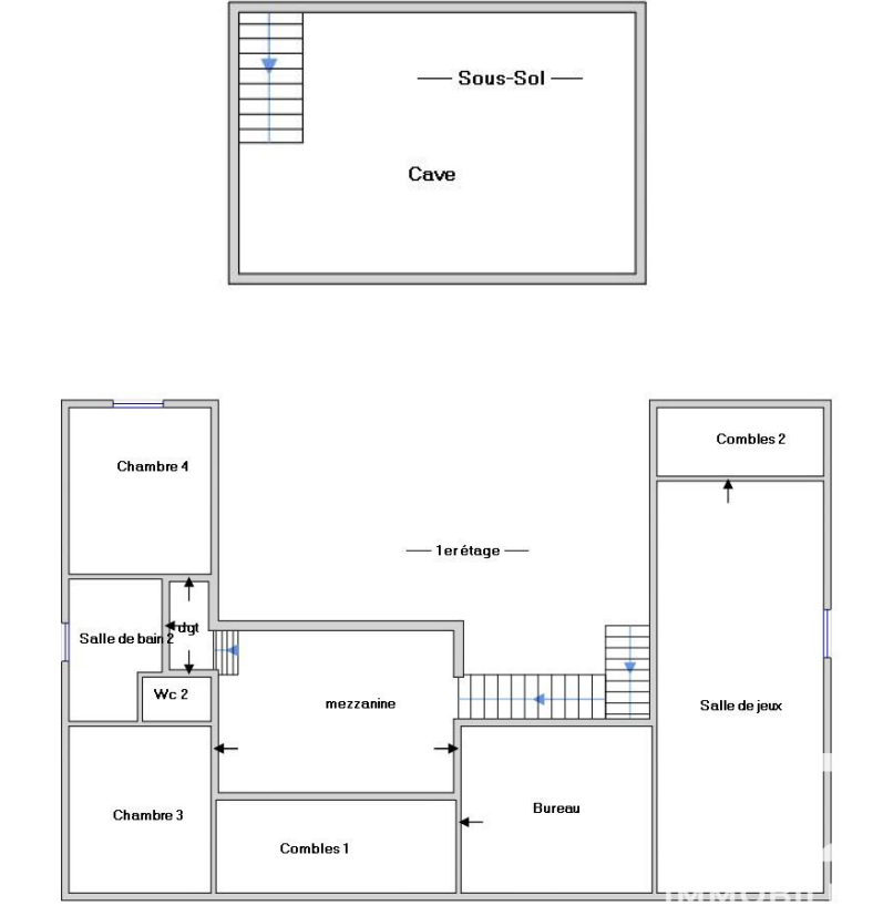
Iad France - Jordane Mervillon vous propose : PROPRIÉTÉ AVEC PISCINE 10x5,4 CHAMBRES, BUREAU, SALLE DE JEUX, PARC ARBORÉ A cinq minutes de Fraisses, dans un environnement résidentiel calme et verdoyant, cette maison d’architecte développe 183 m² habitables au cOEur d’un parc arboré de 1 700 m². Un cadre de vie recherché pour une famille qui souhaite de l’espace et des volumes confortables. Dès l’entrée, le ton est donné : un vaste salon séjour lumineux avec plafond cathédrale et cheminée insert, ouvert sur la terrasse exposée sud-ouest. La cuisine indépendante bénéficie elle aussi d’un accès direct à l’extérieur, facilitant la vie au quotidien. Le rez-de-chaussée permet une vraie vie de plain-pied avec deux chambres, une buanderie fonctionnelle et un accès direct au garage depuis l’intérieur. À l’étage, deux chambres supplémentaires, un bureau ainsi qu’une salle de jeux d’environ 35 m² offrent un espace modulable selon vos besoins. Cette pièce peut aisément devenir une cinquième chambre, un espace indépendant pour un adolescent ou un bureau professionnel. Une mezzanine surplombe le séjour et apporte un volume supplémentaire agréable. À l’extérieur, le parc arboré de 1 700 m² offre un bel espace de verdure et de respiration. La piscine 10x5 avec son pourtour carrelé devient naturellement le lieu de vie des beaux jours. La maison dispose de deux garages (dont un double en enfilade), d’une cave attenante et d’un portail motorisé. Double vitrage PVC, volets roulants, domotique, fibre optique : une base saine et qualitative qui permettra, si souhaité, d’apporter une touche plus contemporaine. Une propriété aux volumes généreux, idéale pour une famille en quête d’espace dans un cadre résidentiel. Pour plus d’informations ou organiser une visite, contactez moi. Honoraires d'agence à la charge du vendeur. Information d'affichage énergétique sur ce bien : classe ENERGIE D indice 203 et classe CLIMAT D indice 47. Les informations sur les risques auxquels ce bien est exposé, y compris l'obligation légale de débroussaillement, sont disponibles sur le site Géorisques : http://www.georisques.gouv.fr. La présente annonce immobilière a été rédigée sous la responsabilité éditoriale de M Jordane Mervillon mandataire indépendant en immobilier (sans détention de fonds), agent commercial de la SAS I@D France immatriculé au RSAC de Saint Etienne sous le numéro 909510836, titulaire de la carte de démarchage immobilier pour le compte de la société I@D France SAS.
À proximité
Recherche des commodités à proximité...
Détails de l'annonce
Localisation
Ville
Fraisses
Pays
FR
Diagnostics / Énergie
Diagnostic DPE
203
Diagnostic GES
47
Chauffage et diagnostics
Diagnostic de performance énergétique (DPE)
a
b
c
d
e
f
g
Indice d'émission de gaz à effet de serre (GES)
a
b
c
d
e
f
g
