Vente Appartement 4 pièces
Type
Bien immobilierTarif
339 000 €Chambres
3Salles de bain
0Vente Appartement 4 pièces
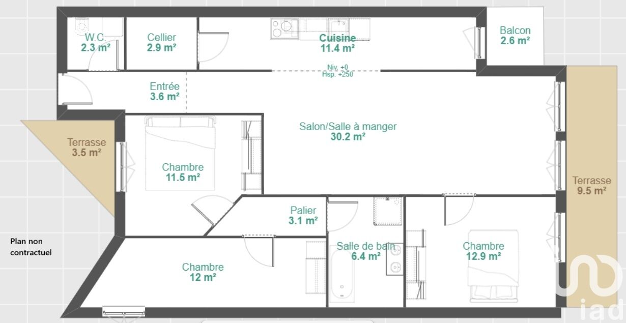
Iad France - Elodie Lanselle vous propose : Appartement T4 – Dernier étage avec 1 terrasse, 2 balcons et 2 parkings – Bezons quartier Les Chênes - Calme et recherché, limite Houilles. Aucun travaux à prévoir. Découvrez ce superbe T4 de 87,65 m² habitables (100,90 m² au sol), situé au 4 ème et dernier étage avec ascenseur dans une résidence récente (2014), parfaitement entretenue. Ce que vous allez adorer : - Double séjour lumineux de 30 m² avec terrasse de 8,78 m² (exposition ouest, vue dégagée) - Cuisine semi ouverte de 12 m² avec cellier + balcon - 3 belles chambres, dont 2 avec accès à l’extérieur (balcon et terrasse) - Salle de bain moderne avec baignoire + douche, WC indépendant avec buanderie Résidence sécurisée avec digicode, interphone, ascenseur et accès PMR. 2 places de stationnement incluses (sous-sol + extérieur) À proximité directe des commerces, écoles, bus, à 10 min du T2 Pont de Bezons. DPE D / GES B, fibre, chauffage individuel, aucun travaux à prévoir. La presente annonce immobiliere vise 3 lots situés dans une copropriété de 29 lots au total et ne faisant l'objet d'aucune procédure en cours citée à l'article L. 721-1 du code de la construction et de l'habitation. Montant moyen mensuel de charges déclaré par le vendeur : 235€ par mois (soit 2820 € annuel). Honoraires d'agence à la charge du vendeur. Information d'affichage énergétique sur ce bien : classe ENERGIE D indice 194 et classe CLIMAT B indice 6. Les informations sur les risques auxquels ce bien est exposé, y compris l'obligation légale de débroussaillement, sont disponibles sur le site Géorisques : http://www.georisques.gouv.fr. La présente annonce immobilière a été rédigée sous la responsabilité éditoriale de Mme Elodie Lanselle mandataire indépendant en immobilier (sans détention de fonds), agent commercial de la SAS I@D France immatriculé au RSAC de PONTOISE sous le numéro 952376648, titulaire de la carte de démarchage immobilier pour le compte de la société I@D France SAS.
Détails de l'annonce
Localisation
Ville
Bezons
Pays
FR
Diagnostics / Énergie
Diagnostic DPE
194
Diagnostic GES
6
Surfaces / Pièces / Composition
Nombre d’étages
4
Étage
4
Chauffage et diagnostics
Diagnostic de performance énergétique (DPE)
a
b
c
d
e
f
g
Indice d'émission de gaz à effet de serre (GES)
a
b
c
d
e
f
g
