Type
Bien immobilierTarif
179 000 €Chambres
1Salles de bain
0Vente appartement 2 pièces
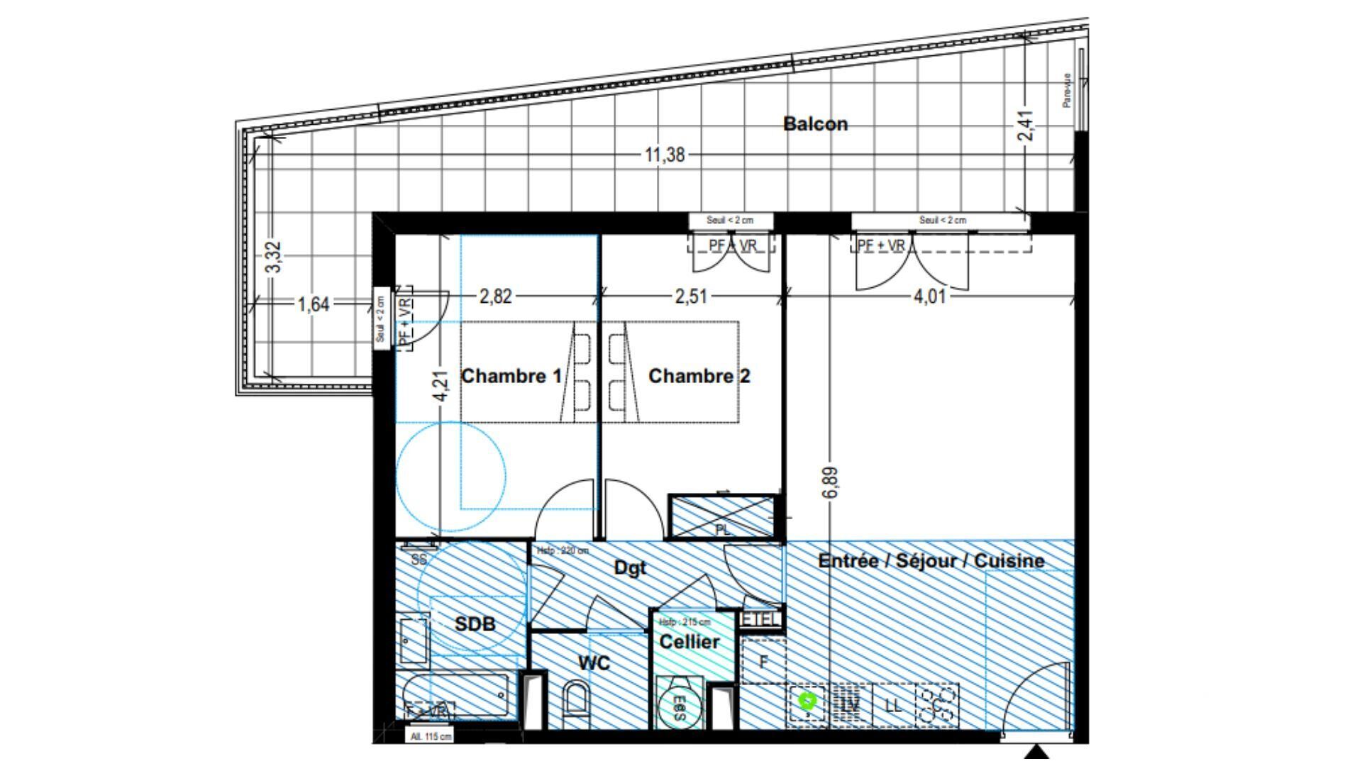
Iad France - Teddy Jean-Jacques vous propose : Opportunité d'Investissement - Appartement Moderne avec Balcon au Blanc-Mesnil Découvrez ce bel appartement situé au 4ème étage sur 4, d'une résidence récente de 2022, offrant 2 pièces dont 1 chambre, au Blanc-Mesnil. Moderne et lumineux, cet appartement est idéal pour les investisseurs ou les primo-accédants à la recherche d'un bien confortable et bien situé. L'appartement s'ouvre sur un espace de vie spacieux comprenant un séjour lumineux de 23,27 m², une chambre cozy de 12,13 m², une salle d'eau avec douche de 5,12 m² et un agréable balcon de 5,18 m² offrant une vue dégagée sur les alentours. La résidence est dotée de plusieurs équipements modernes pour assurer un confort optimal aux résidents, tels que l'accès à la fibre optique, un ascenseur, une ventilation mécanique, ainsi qu'un système de chauffage collectif. L'appartement bénéficie d'une excellente situation géographique, à proximité de diverses commodités et points d'intérêt, tels que l'Hôpital Privée de Seine Saint Denis à seulement 2km, le Musée de l'Air et de l'Espace du Bourget à 1,1km, et le Parc des Expositions Paris Le Bourget à 600m. L'accès à l'autoroute A1 à 200m, vous permet de rejoindre Paris en 15min. De plus, la résidence est fermée et sécurisée, offrant un environnement paisible et protégé. Un parking privatif en sous sol est inclus, garantissant un stationnement aisé pour les résidents. Ne manquez pas cette occasion d'acquérir un appartement moderne et fonctionnel. Contactez nous dès aujourd'hui pour organiser une visite et saisir cette opportunité exceptionnelle ! La presente annonce immobiliere vise 2 lots situés dans une copropriété de 294 lots au total et ne faisant l'objet d'aucune procédure en cours citée à l'article L. 721-1 du code de la construction et de l'habitation. Montant moyen mensuel de charges déclaré par le vendeur : 135.33€ par mois (soit 1624 € annuel). Honoraires d'agence à la charge du vendeur. Information d'affichage énergétique sur ce bien : classe ENERGIE B indice 94 et classe CLIMAT B indice 9. Les informations sur les risques auxquels ce bien est exposé, y compris l'obligation légale de débroussaillement, sont disponibles sur le site Géorisques : http://www.georisques.gouv.fr. La présente annonce immobilière a été rédigée sous la responsabilité éditoriale de M Teddy Jean-Jacques mandataire indépendant en immobilier (sans détention de fonds), agent commercial de la SAS I@D France immatriculé au RSAC de EVRY sous le numéro 999916240, titulaire de la carte de démarchage immobilier pour le compte de la société I@D France SAS.
À proximité
Recherche des commodités à proximité...
Détails de l'annonce
Localisation
Ville
Le Blanc-Mesnil
Pays
FR
Diagnostics / Énergie
Diagnostic DPE
94
Diagnostic GES
9
Surfaces / Pièces / Composition
Nombre d’étages
4
Étage
4
Chauffage et diagnostics
Diagnostic de performance énergétique (DPE)
a
b
c
d
e
f
g
Indice d'émission de gaz à effet de serre (GES)
a
b
c
d
e
f
g
