Type
Bien immobilierTarif
249 000 €Chambres
7Salles de bain
0Vente Maison de ville 9 pièces
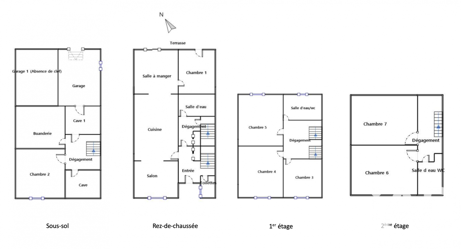
Iad France - Alexandra Picot vous propose : IMMEUBLE DE RAPPORT – Colocation 7 chambres – Hyper-centre Cholet – Rentabilité > 11 % brut Investisseurs avertis, ce bien est fait pour vous. Idéalement située à proximité immédiate de la place des Halles de Cholet, cette maison de ville sans copropriété, exploitée en colocation de 7 chambres, constitue une opportunité rare alliant emplacement premium, gestion maîtrisée et rentabilité élevée. ★ Le bien : Maison sur 4 niveaux, 7 chambres de colocation, toutes fermées à clé, Rénovation complète réalisée en 2019 et 2020, Aucun travaux à prévoir, Bien correctement isolé, Chauffage assuré par une chaudière au gaz de ville, Stationnement facile et gratuit à proximité immédiate. ★ Exploitation locative sécurisée : Loyers : 310 € / mois HC par chambre, Baux non solidaires, Locataires avec garantie, garant et caution, Colocation pleinement conforme et opérationnelle ★ Performance financière : Rentabilité brute > 11 %, Rentabilité nette supérieur à 8 % calculée sur le prix de vente actuel et toutes les charges, Revenus locatifs stables et immédiatement exploitables Un tableau de rendement détaillé est disponible en photo pour une parfaite lisibilité des chiffres. ★ Les atouts investisseurs : Emplacement centre-ville très recherché, Zéro charge de copropriété, Produit clé en main, Cash-flow optimisé, Risque locatif mutualisé, Actif idéal en stratégie rendement ou patrimoniale Dossier complet, chiffres détaillés et visite sur demande de préférence par téléphone. Bien destiné en priorité à des investisseurs avertis recherchant performance, simplicité et visibilité financière. Honoraires d'agence à la charge du vendeur. Information d'affichage énergétique sur ce bien : classe ENERGIE D indice 187 et classe CLIMAT C indice 29. Les informations sur les risques auxquels ce bien est exposé, y compris l'obligation légale de débroussaillement, sont disponibles sur le site Géorisques : http://www.georisques.gouv.fr. La présente annonce immobilière a été rédigée sous la responsabilité éditoriale de Mme Alexandra Picot mandataire indépendant en immobilier (sans détention de fonds), agent commercial de la SAS I@D France immatriculé au RSAC de ANGERS sous le numéro 821454873, titulaire de la carte de démarchage immobilier pour le compte de la société I@D France SAS.
Cette semaine
Cette annonce est récente
À proximité
Recherche des commodités à proximité...
Détails de l'annonce
Localisation
Ville
Cholet
Pays
FR
Diagnostics / Énergie
Diagnostic DPE
187
Diagnostic GES
29
Surfaces / Pièces / Composition
Nombre d’étages
4
Chauffage et diagnostics
Diagnostic de performance énergétique (DPE)
a
b
c
d
e
f
g
Indice d'émission de gaz à effet de serre (GES)
a
b
c
d
e
f
g
