Vente Appartement 3 pièces
Type
Bien immobilierTarif
315 000 €Chambres
2Salles de bain
0Vente Appartement 3 pièces
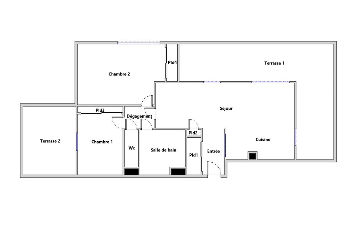
Iad France - Sandrine Bihoreau vous propose : Sublime Appartement Moderne avec Terrasse et Jardin à Bois-d’Arcy. Découvrez cet appartement d’exception situé dans le quartier prisé de La Croix Bonnet et dans une résidence moderne de standing Kaufman & Broad construite en 2019. Ce bel appartement de 68.29 m² offre un cadre de vie confortable et contemporain, idéal pour accueillir une famille ou des personnes en quête de tranquillité et de modernité. La pièce principale se compose d’une cuisine américaine ouverte sur le séjour offrant un espace de vie convivial et lumineux de 29 m², ainsi qu'un accès à sa terrasse de 27 m² exposée Sud / Ouest. Un dégagement mène aux 2 chambres avec placard, dont une donnant sur un jardin de 15 m². Suivant d'une salle de bain et un WC séparé. Pour compléter ce bien, une place de parking en sous-sol sécurisé et un local vélo. Les environs regorgent de commodités essentielles pour faciliter le quotidien : crèches à 300m, école primaire et maternelle à proximité, commerces (Franprix, boulangerie, coiffeur, restaurants) accessibles à pied, collège Mozart à 1,2km, centre commercial Leclerc à quelques minutes et arrêt de bus à quelques pas. N’attendez plus, venez découvrir ce petit bijou à Bois-d’Arcy dès maintenant. La presente annonce immobiliere vise 2 lots situés dans une copropriété de 174 lots au total et ne faisant l'objet d'aucune procédure en cours citée à l'article L. 721-1 du code de la construction et de l'habitation. Montant moyen mensuel de charges déclaré par le vendeur : 227.42€ par mois (soit 2729 € annuel). Honoraires d'agence à la charge du vendeur. Information d'affichage énergétique sur ce bien : classe ENERGIE C indice 79 et classe CLIMAT C indice 13. Les informations sur les risques auxquels ce bien est exposé, y compris l'obligation légale de débroussaillement, sont disponibles sur le site Géorisques : http://www.georisques.gouv.fr. La présente annonce immobilière a été rédigée sous la responsabilité éditoriale de Mme Sandrine Bihoreau mandataire indépendant en immobilier (sans détention de fonds), agent commercial de la SAS I@D France immatriculé au RSAC de VERSAILLES sous le numéro 898908199, titulaire de la carte de démarchage immobilier pour le compte de la société I@D France SAS.
Détails de l'annonce
Localisation
Ville
Bois-d'Arcy
Pays
FR
Diagnostics / Énergie
Diagnostic DPE
79
Diagnostic GES
13
Surfaces / Pièces / Composition
Nombre d’étages
3
Chauffage et diagnostics
Diagnostic de performance énergétique (DPE)
a
b
c
d
e
f
g
Indice d'émission de gaz à effet de serre (GES)
a
b
c
d
e
f
g
