Vente Appartement 5 pièces
Type
Bien immobilierTarif
355 000 €Chambres
4Salles de bain
0Vente Appartement 5 pièces
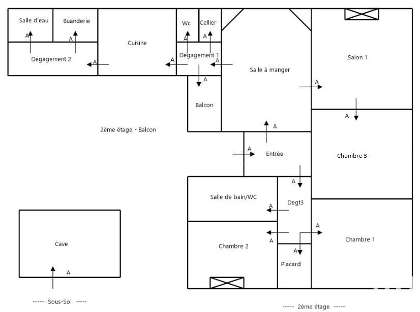
Iad France - Nelly Maupin (06 82 59 27 37) vous propose : À saisir ! Exceptionnel appartement de style haussmannien en plein cOEur du centre-ville de Poitiers, situé dans une rue piétonne à deux pas de la Place Maréchal-Leclerc (Place de l'hôtel de ville) et de l'îlot des Cordeliers. Dans un immeuble ancien de standing, ce bien rare et entièrement rénové saura vous séduire. Le ravalement de façade a été effectué en 2019 et aucun travaux n'est à prévoir. Charge de copropriété de 130 € / mois. L'appartement comprend une entrée spacieuse, un double séjour avec salle à manger, salon, reliés par de grandes portes doubles qui laissent traverser la lumière. Vous profiterez également de deux balcons bien exposés, accessibles directement des pièces de vie. Une cuisine aménagée et équipée récente. Ce bien dispose également de trois chambres spacieuses d'environ 20 m² environ chacune. Une salle de bains avec wc, une salle d'eau, un autre wc et plusieurs espaces de rangement, complètent le logement. Situé au deuxième étage d'une résidence entretenue et sécurisée (sans ascenseur), l'appartement dispose de 3m11 de hauteur sous plafond, de sols en parquet massif, et d'un chauffage central au gaz de ville. Les menuiseries sont en double vitrage PVC et la porte d'entrée est sécurisée. Une cave en sous-sol est également vendue avec le lot. Vous pourrez vivre aisément à pied en profitant de tous les commerces de l'hypercentre de Poitiers. Bien de caractère, unique, lumineux et rénové, à visiter sans tarder ! Pour plus d'informations ou pour organiser une visite, n'hésitez pas à me contacter par téléphone. Bien en délégation de mandat. La présente annonce immobilière vise 1 lot principal situé dans une copropriété formant 16 lots au total ne faisant l'objet d'aucune procédure en cours et d'un montant de charges d’environ 130 € par mois (soit 1560 € annuel) déclaré par le vendeur. Honoraires d’agence à la charge du vendeur. Information d'affichage énergétique sur ce bien : classe ENERGIE D indice 189 et classe CLIMAT D indice 36. Les informations sur les risques auxquels ce bien est exposé sont disponibles sur le site Géorisques : www.georisques.gouv.fr. La présente annonce immobilière a été rédigée sous la responsabilité éditoriale de Mme Nelly Maupin EI (ID 60305), mandataire indépendant en immobilier (sans détention de fonds), agent commercial de la SAS I@D France immatriculé au RSAC de POITIERS sous le numéro 901199471, titulaire de la carte de démarchage immobilier pour le compte de la société I@D France SAS. Le présent bien est commercialisé dans le cadre d'une délégation de mandat. Retrouvez tous nos biens sur notre site internet. www.iadfrance.fr.
Détails de l'annonce
Localisation
Ville
Poitiers
Pays
FR
Diagnostics / Énergie
Diagnostic DPE
189
Diagnostic GES
36
Surfaces / Pièces / Composition
Nombre d’étages
Étage
2
Chauffage et diagnostics
Diagnostic de performance énergétique (DPE)
a
b
c
d
e
f
g
Indice d'émission de gaz à effet de serre (GES)
a
b
c
d
e
f
g
