Type
Bien immobilierTarif
359 000 €Chambres
4Salles de bain
0Vente Maison/villa 7 pièces
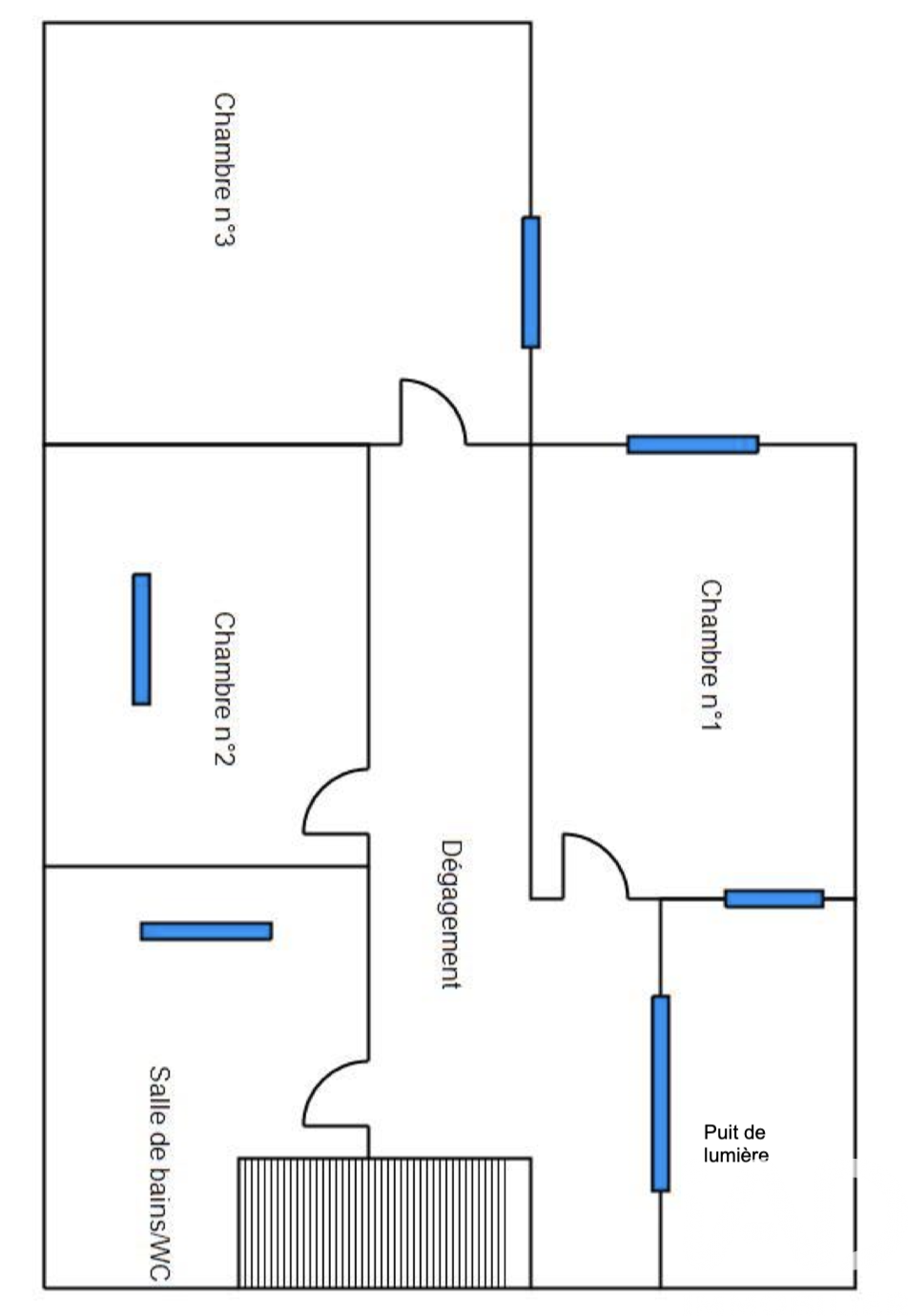
Iad France - Guillaume Baudé vous propose : VILLA D'EXCEPTION – Plain-Pied Contemporain de 195 m² – Environnement Privilégié (2015) Une opportunité unique : le luxe du neuf et du spacieux sans l'attente des travaux Située à seulement 10 minutes de la charmante ville de Mirande, cette magnifique villa de plain-pied, construite en 2015, incarne l'alliance parfaite entre architecture contemporaine, prestations haut de gamme et sérénité de la campagne. Le COEur de la Résidence : Volumes et Lumière Pénétrez dans cette maison de 195 m² habitables par une entrée accueillante menant à une pièce à vivre spectaculaire. Les très beaux volumes et les grandes ouvertures inondent l'espace de lumière naturelle. * Cuisine et Réception : La cuisine, entièrement équipée et aménagée, est ouverte sur la pièce de vie, la rendant conviviale et idéale pour recevoir. Son design moderne et fonctionnel ravira les passionnés. Le salon attenant, véritable espace cosy, invite à la détente. * Conception Moderne : Le style contemporain de la villa, caractérisé par des lignes épurées et des matériaux de grande qualité, assure une atmosphère raffinée et intemporelle. L'Espace Nuit : Intimité et Confort L'espace nuit a été pensé pour le confort de toute la famille, offrant quatre chambres spacieuses. * Suite Parentale : Profitez d'une somptueuse suite parentale complète, un véritable sanctuaire privé. Elle comprend une chambre généreuse, une salle d'eau privative moderne, et un dressing intégré, offrant un confort digne d'un hôtel. * Chambres Secondaires : Les trois autres chambres bénéficient également de belles surfaces et d'un agencement optimal. Prestations et Technique : Clés en Main * État Impeccable : Construite avec soin en 2015, la villa est dans un état irréprochable : AUCUN TRAVAUX à prévoir. Une maison qualitative où vous n'avez qu'à poser vos meubles. * Équipements : Le chauffage est assuré par un système électrique performant et économique. Un garage attenant ajoute une commodité essentielle. L'Extérieur : Calme et Espace La propriété s'étend sur un terrain plat de plus de 3400 m², offrant un beau potentiel pour l'aménagement extérieur (piscine, pool house, jardin paysager. ). * Localisation Idéale : Profitez du calme absolu de la campagne gersoise. Bien que très paisible, la maison n'est pas isolée et vous permet de rejoindre les commodités de Mirande en seulement 10 minutes. Cette villa rare est une véritable pépite pour les acquéreurs exigeants, en quête de modernité, d'espace et de tranquillité. Planifiez dès aujourd'hui votre visite pour saisir cette opportunité exceptionnelle Honoraires d'agence à la charge du vendeur. Information d'affichage énergétique sur ce bien : classe ENERGIE C indice 124 et classe CLIMAT A indice 4. Les informations sur les risques auxquels ce bien est exposé, y compris l'obligation légale de débroussaillement, sont disponibles sur le site Géorisques : http://www.georisques.gouv.fr. La présente annonce immobilière a été rédigée sous la responsabilité éditoriale de M Guillaume Baudé mandataire indépendant en immobilier (sans détention de fonds), agent commercial de la SAS I@D France immatriculé au RSAC de Auch sous le numéro 508454998, titulaire de la carte de démarchage immobilier pour le compte de la société I@D France SAS.
À proximité
Recherche des commodités à proximité...
Détails de l'annonce
Localisation
Ville
Mirande
Pays
FR
Diagnostics / Énergie
Diagnostic DPE
124
Diagnostic GES
4
Surfaces / Pièces / Composition
Nombre d’étages
Chauffage et diagnostics
Diagnostic de performance énergétique (DPE)
a
b
c
d
e
f
g
Indice d'émission de gaz à effet de serre (GES)
a
b
c
d
e
f
g
