Type
Bien immobilierTarif
169 000 €Chambres
1Salles de bain
0Vente Appartement 2 pièces
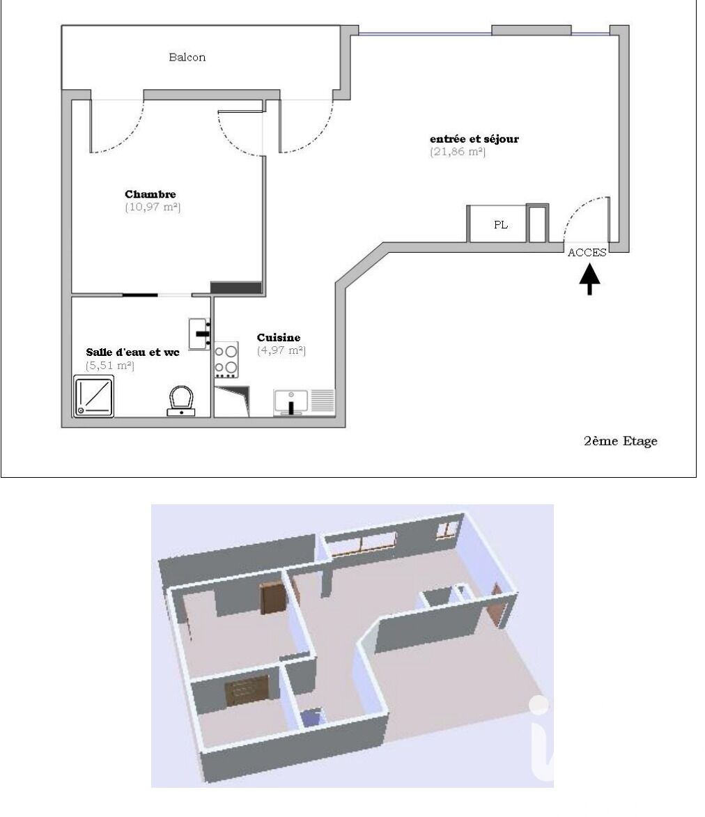
Iad France - Lucie Legaud-Surirey vous propose : Charmant 2 pièces lumineux avec balcon et place de parking – Résidence récente en plein cOEur du centre-ville À découvrir sans attendre ! Situé au 2ᵉ étage avec ascenseur d’une résidence de 2012, ce joli 2 pièces séduit par sa luminosité. Vous profiterez d’un cadre de vie agréable et pratique, à deux pas de toutes les commodités. L’appartement se compose : d’un séjour lumineux, d’une cuisine à aménager selon vos envies, d’une chambre confortable ouverte sur un balcon, d’une salle d’eau avec WC. Un garage à vélos est à disposition dans la résidence et une place de parking en sous-sol vient compléter ce bien. Atouts emplacement : commerces, transports, services et axes routiers accessibles rapidement. La gare d’Achères-Ville (RER A et ligne J) se situe à seulement 15 minutes à pied, permettant de rejoindre Paris en 30 minutes. En voiture, comptez environ 35 minutes selon le trafic. Une belle opportunité à ne pas manquer ! Contactez-moi dès maintenant pour plus d’informations ou pour organiser une visite. Visites possibles 7j / 7, selon vos disponibilités. La presente annonce immobiliere vise 2 lots situés dans une copropriété de 109 lots au total et ne faisant l'objet d'aucune procédure en cours citée à l'article L. 721-1 du code de la construction et de l'habitation. Montant moyen mensuel de charges déclaré par le vendeur : 170.33€ par mois (soit 2044 € annuel). Honoraires d'agence à la charge du vendeur. Information d'affichage énergétique sur ce bien : classe ENERGIE C indice 71 et classe CLIMAT C indice 11. Les informations sur les risques auxquels ce bien est exposé, y compris l'obligation légale de débroussaillement, sont disponibles sur le site Géorisques : http://www.georisques.gouv.fr. La présente annonce immobilière a été rédigée sous la responsabilité éditoriale de Mme Lucie Legaud-Surirey mandataire indépendant en immobilier (sans détention de fonds), agent commercial de la SAS I@D France immatriculé au RSAC de Versailles sous le numéro 911695799, titulaire de la carte de démarchage immobilier pour le compte de la société I@D France SAS.
À proximité
Recherche des commodités à proximité...
Détails de l'annonce
Localisation
Ville
Achères
Pays
FR
Diagnostics / Énergie
Diagnostic DPE
71
Diagnostic GES
11
Surfaces / Pièces / Composition
Nombre d’étages
4
Étage
2
Chauffage et diagnostics
Diagnostic de performance énergétique (DPE)
a
b
c
d
e
f
g
Indice d'émission de gaz à effet de serre (GES)
a
b
c
d
e
f
g
