Trouver...

Language: FR

Devise: EUR

Vente Appartement 3 pièces

Publié le 11 January 2026
Type
Bien immobilier
Tarif
416 000 €
Chambres
2
Salles de bain
0

Vente Appartement 3 pièces

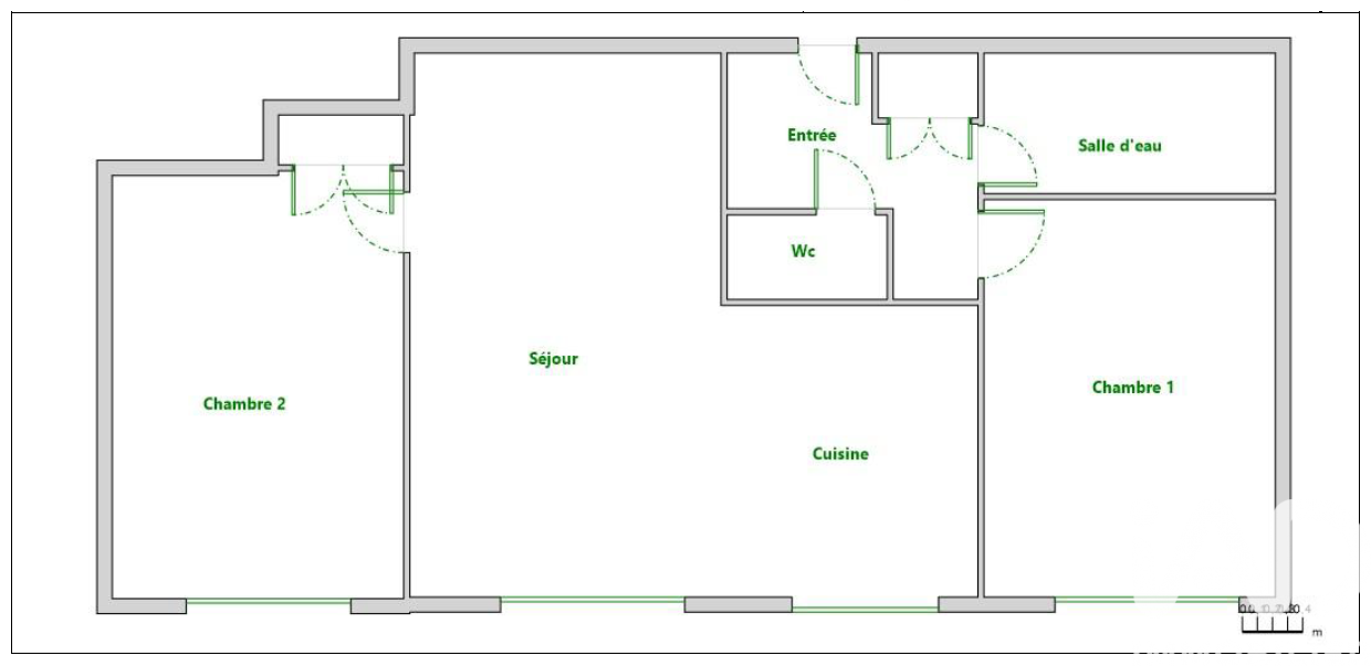
Iad France - John-Erwann Dutheil vous propose : NOUVEAU - Jules Guesde / Mairie d'Issy - Au CALME, LUMINEUX, au coeur d'une copropriété à taille humaine, beau 3 pièces sans aucun travaux à prévoir et transformable très facilement en grand deux pièces ! Situé en RDJ bien surélevé, il se compose au choix d'une chambre et d'un grand salon ou de deux chambres et d'un salon plus petit, d'une cuisine ouverte, d'une salle d'eau, d'un WC séparé, de rangements, d'une cave et, si besoin, d'un grand box en supplément. Transports, écoles, boutiques etc. à moins de 5 minutes à pieds ! Visites et renseignements 7 / 7j. La presente annonce immobiliere vise 2 lots situés dans une copropriété de 16 lots au total et ne faisant l'objet d'aucune procédure en cours citée à l'article L. 721-1 du code de la construction et de l'habitation. Montant moyen mensuel de charges déclaré par le vendeur : 166.67€ par mois (soit 2000 € annuel). Honoraires d'agence à la charge du vendeur. Information d'affichage énergétique sur ce bien : classe ENERGIE D indice 235 et classe CLIMAT D indice 36. Les informations sur les risques auxquels ce bien est exposé, y compris l'obligation légale de débroussaillement, sont disponibles sur le site Géorisques : http://www.georisques.gouv.fr. La présente annonce immobilière a été rédigée sous la responsabilité éditoriale de M John-Erwann Dutheil mandataire indépendant en immobilier (sans détention de fonds), agent commercial de la SAS I@D France immatriculé au RSAC de Nanterre sous le numéro 844688259, titulaire de la carte de démarchage immobilier pour le compte de la société I@D France SAS.
Ce mois Cette annonce est récente

À proximité

Recherche des commodités à proximité...

Détails de l'annonce

Localisation

Ville
Issy-les-Moulineaux
Pays
FR

Diagnostics / Énergie

Diagnostic DPE
235
Diagnostic GES
36

Surfaces / Pièces / Composition

Nombre d’étages
7

Chauffage et diagnostics

Diagnostic de performance énergétique (DPE)
a
b
c
d
e
f
g
Indice d'émission de gaz à effet de serre (GES)
a
b
c
d
e
f
g
Rappelez-moi