Type
Bien immobilierTarif
149 000 €Chambres
1Salles de bain
0Vente Duplex 2 pièces
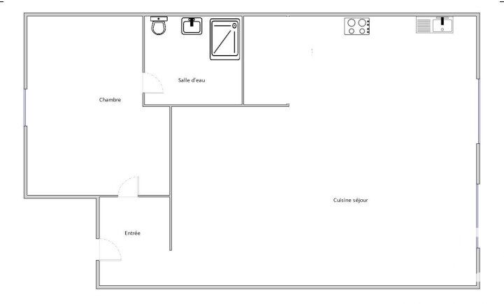
Iad France - Christophe Dall'agnol vous propose : Venez découvrir ce beau T2 Duplex 42 m² – Centre-ville, résidence récente (2015) Idéalement situé en plein centre-ville, dans une petite résidence récente et parfaitement entretenue de seulement 7 logements (2015), découvrez ce charmant T2 en duplex de 42 m², au 1er étage, en très bon état. Il se compose d'une entrée, une pièce de vie lumineuse de 21 m² avec cuisine équipée, une chambre en duplex, une salle d’eau, un WC séparé et un balcon de plus de 6 m². Les + : - 1er étage - Beaux volumes (sous rampants) - Petite copropriété récente - Charges faibles : environ 50 € / mois - Emplacement stratégique - Aucun travaux à prévoir - Idéal premier achat ou investissement locatif Situation idéale : à proximité immédiate des thermes, de l’école de kiné et de l’école d’infirmières, ce qui en fait un bien particulièrement attractif pour la location étudiante ou saisonnière. Un bien rare sur le secteur, contactez-moi sans tarder pour organiser une visite. La presente annonce immobiliere vise 1 lot situé dans une copropriété de 12 lots au total et ne faisant l'objet d'aucune procédure en cours citée à l'article L. 721-1 du code de la construction et de l'habitation. Montant moyen mensuel de charges déclaré par le vendeur : 51.67€ par mois (soit 620 € annuel). Honoraires d'agence à la charge du vendeur. Information d'affichage énergétique sur ce bien : classe ENERGIE C indice 139 et classe CLIMAT A indice 4. Les informations sur les risques auxquels ce bien est exposé, y compris l'obligation légale de débroussaillement, sont disponibles sur le site Géorisques : http://www.georisques.gouv.fr. La présente annonce immobilière a été rédigée sous la responsabilité éditoriale de M Christophe Dall'agnol mandataire indépendant en immobilier (sans détention de fonds), agent commercial de la SAS I@D France immatriculé au RSAC de DAX sous le numéro 484974506, titulaire de la carte de démarchage immobilier pour le compte de la société I@D France SAS.
Ce mois
Cette annonce est récente
À proximité
Recherche des commodités à proximité...
Détails de l'annonce
Localisation
Ville
Dax
Pays
FR
Diagnostics / Énergie
Diagnostic DPE
115
Diagnostic GES
4
Chauffage et diagnostics
Diagnostic de performance énergétique (DPE)
a
b
c
d
e
f
g
Indice d'émission de gaz à effet de serre (GES)
a
b
c
d
e
f
g
