Type
Bien immobilierTarif
291 300 €Chambres
2Salles de bain
0Vente Appartement 3 pièces
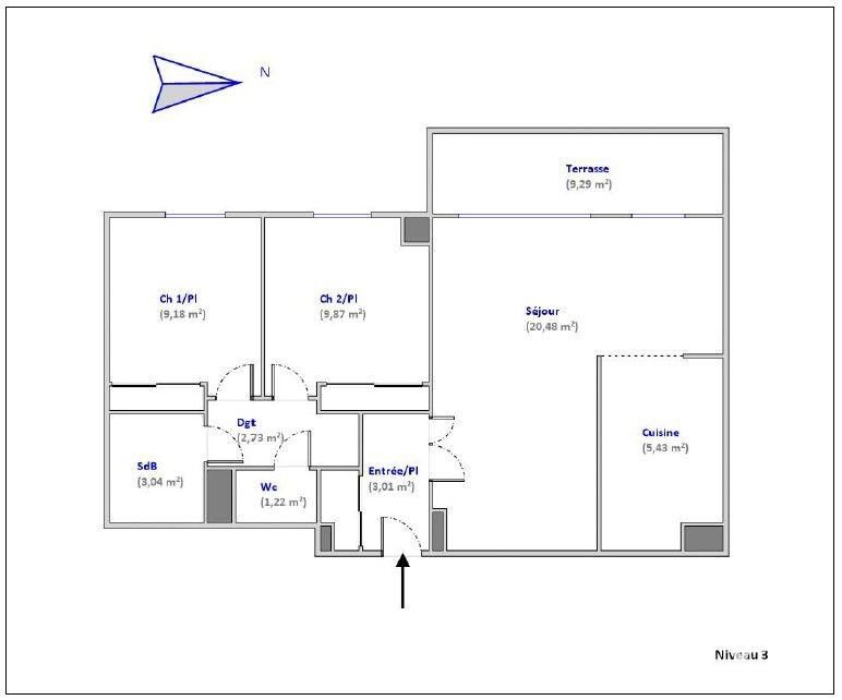
Iad France - Marion Bichambre vous propose : ANGLET ST JEAN Idéalement situé à proximité des commerces et à 5 min de Quintaou, découvrez ce spacieux T3 de 69,7 m². L'entrée bénéficie de nombreux rangements. La cuisine aménagée et équipée s'ouvre sur la loggia, tout comme le séjour. Le couloir dessert 1 cellier / buanderie, 1 grande salle d'eau, 1 WC indépendant et 2 chambres avec rangements. Les + : ascenseur neuf, 1 place de parking privative, Tram bus en pied d'immeuble, résidence et parking sécurisés par barrière et digicode, écoles et collège à proximité. La presente annonce immobiliere vise 2 lots situés dans une copropriété de 165 lots au total et ne faisant l'objet d'aucune procédure en cours citée à l'article L. 721-1 du code de la construction et de l'habitation. Montant moyen mensuel de charges déclaré par le vendeur : 97.57€ par mois (soit 1170.88 € annuel). Honoraires d'agence à la charge du vendeur. Information d'affichage énergétique sur ce bien : classe ENERGIE C indice 133 et classe CLIMAT C indice 26. Les informations sur les risques auxquels ce bien est exposé, y compris l'obligation légale de débroussaillement, sont disponibles sur le site Géorisques : http://www.georisques.gouv.fr. La présente annonce immobilière a été rédigée sous la responsabilité éditoriale de Mme Marion Bichambre mandataire indépendant en immobilier (sans détention de fonds), agent commercial de la SAS I@D France immatriculé au RSAC de DAX sous le numéro 820640621, titulaire de la carte de démarchage immobilier pour le compte de la société I@D France SAS.
À proximité
Recherche des commodités à proximité...
Détails de l'annonce
Localisation
Ville
Anglet
Pays
FR
Diagnostics / Énergie
Diagnostic DPE
133
Diagnostic GES
26
Surfaces / Pièces / Composition
Nombre d’étages
4
Chauffage et diagnostics
Diagnostic de performance énergétique (DPE)
a
b
c
d
e
f
g
Indice d'émission de gaz à effet de serre (GES)
a
b
c
d
e
f
g
