Trouver...

Language: FR

Devise: EUR

Type
Bien immobilier
Tarif
68 500 €
Chambres
0
Salles de bain
0

Vente Appartement 1 pièce

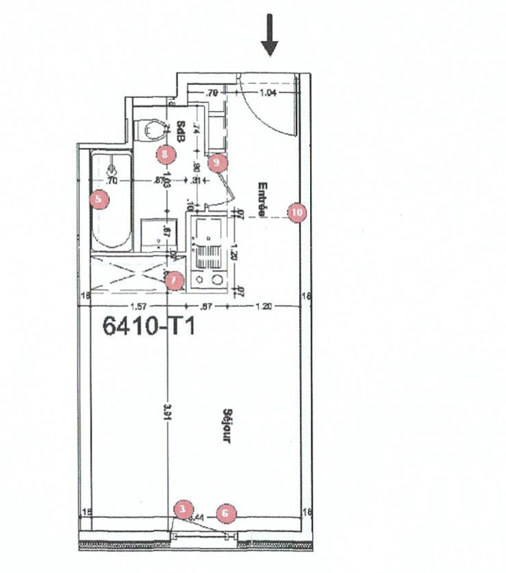
Iad France - Jocelyn Rouet vous propose : ILE DE NANTES - SPÉCIAL INVESTISSEURS LMNP Située en plein coeur de l'Ile de Nantes, la résidence hôtelière Urban Seven propose des prestations haut-de-gamme. Tous les appartements viennent d'être rénovés (mobilier, peintures. ). Le studio de 23 m² se situe au 5ème étage. Il comprend une entrée avec placard, une belle pièce avec coin-cuisine américaine équipée et aménagée (équipements neufs) ainsi qu'une salle de bains avec WC. L'appartement est vendu avec une place de parking. La résidence offre à ses clients de nombreux services : spa, salle de sport, salles de réunion, bar et restauration, accueil ouvert 24h / 24, pressing etc. Le loyer annuel garanti est de 4600€ HC pour une rentabilité brute aux alentours de 6,7%. Prestations, emplacement privilégié, prix au m2 et belle rentabilité, n'hésitez plus, contactez-moi ! La presente annonce immobiliere vise 2 lots situés dans une copropriété de 200 lots au total et ne faisant l'objet d'aucune procédure en cours citée à l'article L. 721-1 du code de la construction et de l'habitation. Montant moyen mensuel de charges déclaré par le vendeur : 26€ par mois (soit 312 € annuel). Honoraires d'agence à la charge du vendeur. Information d'affichage énergétique sur ce bien : classe ENERGIE C indice 125 et classe CLIMAT A indice 4. Les informations sur les risques auxquels ce bien est exposé, y compris l'obligation légale de débroussaillement, sont disponibles sur le site Géorisques : http://www.georisques.gouv.fr. La présente annonce immobilière a été rédigée sous la responsabilité éditoriale de M Jocelyn Rouet mandataire indépendant en immobilier (sans détention de fonds), agent commercial de la SAS I@D France immatriculé au RSAC de NANTES sous le numéro 753806850, titulaire de la carte de démarchage immobilier pour le compte de la société I@D France SAS.

Détails de l'annonce

Localisation

Ville
Nantes
Pays
FR

Diagnostics / Énergie

Diagnostic DPE
125
Diagnostic GES
4

Surfaces / Pièces / Composition

Nombre d’étages
9
Étage
4

Chauffage et diagnostics

Diagnostic de performance énergétique (DPE)
a
b
c
d
e
f
g
Indice d'émission de gaz à effet de serre (GES)
a
b
c
d
e
f
g
Rappelez-moi
Nos partenaires