Type
Bien immobilierTarif
390 000 €Chambres
4Salles de bain
0Vente Maison traditionnelle 6 pièces
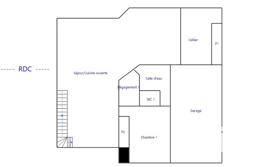
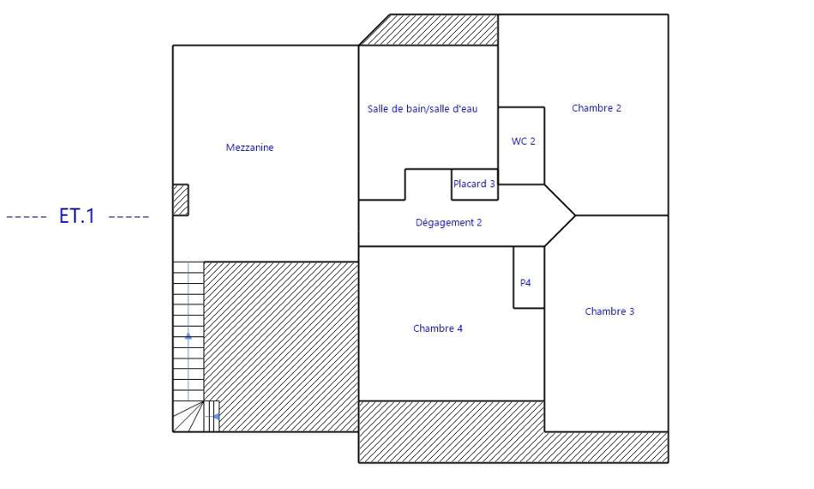
Iad France - Laurence Foucher vous propose : Dans un environnement résidentiel CALME et verdoyant à quelques minutes du CENTRE BOURG d’Orvault, cette maison familiale de 130 m² offre un cadre de vie recherché, idéal pour les familles en quête de tranquillité tout en restant proches des commodités et de Nantes. Elle propose une véritable vie de PLAIN PIED avec une pièce de vie lumineuse de 50 m² agrémentée d’un poêle à bois, une cuisine ouverte conviviale et une arrière-cuisine très pratique facilitant l’organisation du quotidien. Ce niveau comprend également une chambre, une salle d’eau et des WC indépendants. À l’étage, vous trouverez trois chambres, une salle de bain équipée d’une baignoire et d’une douche, des wc ainsi qu’une mezzanine offrant un bel espace supplémentaire modulable selon vos envies — bureau, salle de jeux ou coin lecture. Le GARAGE attenant et les stationnements extérieurs viennent compléter les prestations. Le quartier de la Maillardière séduit par son ambiance paisible et sa situation privilégiée : arrêt de bus à 150 m (ligne 79), connexion rapide au Tram 3, commerces et écoles accessibles à pied. La Vallée du Cens à proximité offre un cadre naturel agréable. Cette maison bien entretenue, au DPE C est une belle opportunité à découvrir rapidement. Contactez-moi pour organiser une visite. Honoraires d'agence à la charge du vendeur. Information d'affichage énergétique sur ce bien : classe ENERGIE C indice 177 et classe CLIMAT C indice 28. Les informations sur les risques auxquels ce bien est exposé, y compris l'obligation légale de débroussaillement, sont disponibles sur le site Géorisques : http://www.georisques.gouv.fr. La présente annonce immobilière a été rédigée sous la responsabilité éditoriale de Mme Laurence Foucher mandataire indépendant en immobilier (sans détention de fonds), agent commercial de la SAS I@D France immatriculé au RSAC de NANTES sous le numéro 948679923, titulaire de la carte de démarchage immobilier pour le compte de la société I@D France SAS.
À proximité
Recherche des commodités à proximité...
Détails de l'annonce
Localisation
Ville
Orvault
Pays
FR
Diagnostics / Énergie
Diagnostic DPE
177
Diagnostic GES
28
Surfaces / Pièces / Composition
Nombre d’étages
2
Chauffage et diagnostics
Diagnostic de performance énergétique (DPE)
a
b
c
d
e
f
g
Indice d'émission de gaz à effet de serre (GES)
a
b
c
d
e
f
g
