Type
Bien immobilierTarif
1 600 € /moisChambres
3Salles de bain
0Location Appartement 5 pièces
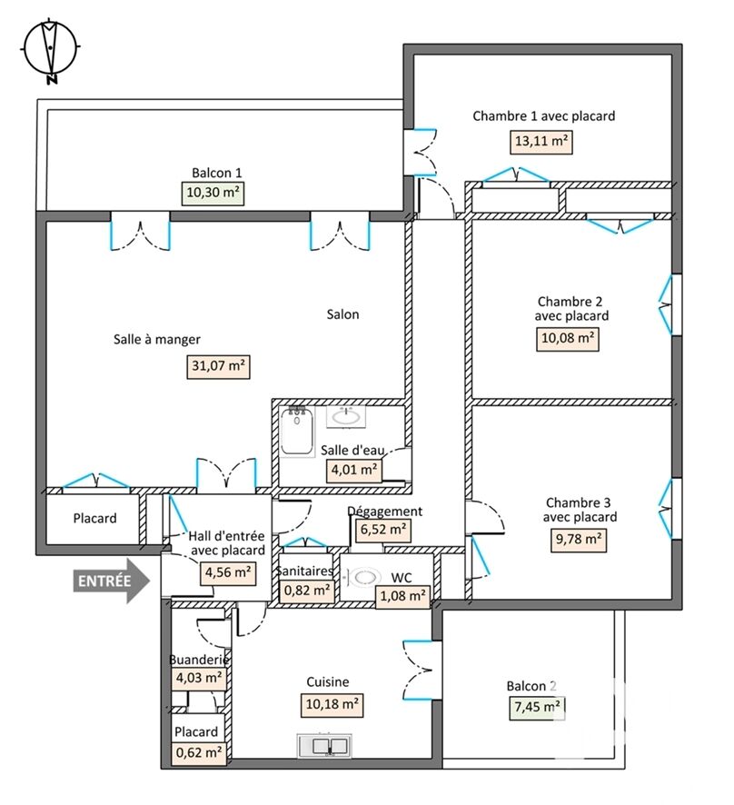
Iad France - Armelle Stil vous propose : Salon-de-Provence - Résidence « Le Saint-Côme » - En exclusivité Dans un petit immeuble des années 1970 bien entretenu au 4ème et dernier étage avec ascenseur - Appartement de type 5 d'une surface de 95,86 m², orienté Sud-Ouest, offrant une vue dégagée, de beaux volumes, une agréable luminosité et un environnement calme. Il comprend : une entrée, un grand séjour / salle à manger ouvrant sur un balcon d'environ 10 m², une cuisine séparée avec accès à une terrasse, un grand cellier / buanderie, 3 chambres avec placards, une salle d'eau et un wc indépendant. Les charges comprennent : le chauffage, l'eau chaude, l'eau froide ainsi que l'entretien des parties communes. Possibilité de louer un garage en supplément. Les petits plus d'Armelle : Fenêtres double vitrage, volets roulants électriques, climatisation réversible, logement éligible à la fibre optique, stationnement facile au sein de la résidence, une cave et un local vélos communs, un parc d'agrément. La taxe d'enlèvement des ordures ménagères sera appelée séparément, conformément à la réglementation en vigueur. Information d'affichage énergétique sur ce bien : classe ENERGIE D indice 231 et classe CLIMAT D indice 37. Les informations sur les risques auxquels ce bien est exposé, y compris l'obligation légale de débroussaillement, sont disponibles sur le site Géorisques : http://www.georisques.gouv.fr. La présente annonce immobilière a été rédigée sous la responsabilité éditoriale de Mme Armelle Stil mandataire indépendant en immobilier (sans détention de fonds), agent commercial de la SAS I@D France immatriculé au RSAC de SALON-DE-PROVENCE sous le numéro 919621995, titulaire de la carte de démarchage immobilier pour le compte de la société I@D France SAS. Location non meublée. Montant du loyer mensuel charges comprises : 1600.00 euros / mois. Provision mensuelle avec récupération annuelle : 250.00 euros / mois. Zone soumise à encadrement : non. Dépôt de garantie : 1350 euros. Honoraires TTC à la charge du locataire : 862 euros (soit 8€ / m²).
Ce mois
Cette annonce est récente
À proximité
Recherche des commodités à proximité...
Détails de l'annonce
Localisation
Ville
Salon-de-Provence
Pays
FR
Diagnostics / Énergie
Diagnostic DPE
231
Diagnostic GES
37
Finances / Mandat / Références
Honoraires
862 €
Charges
250 €
Surfaces / Pièces / Composition
Nombre d’étages
4
Étage
4
Chauffage et diagnostics
Diagnostic de performance énergétique (DPE)
a
b
c
d
e
f
g
Indice d'émission de gaz à effet de serre (GES)
a
b
c
d
e
f
g
