Type
Bien immobilierTarif
159 000 €Chambres
4Salles de bain
0Vente Maison de village 6 pièces
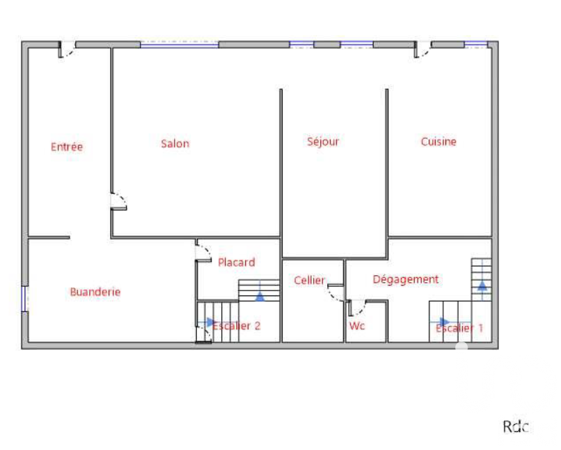
Iad France - Stephane Remy vous propose : Maison de Village Rénovée – 158,05 m² – Villefranche-d’Albigeois (15 min de Saint-Juéry) Située au cOEur du village de Villefranche-d’Albigeois, cette belle maison de caractère entièrement rénovée développe une surface habitable de 158,05 m². Elle résulte de la réunion de 2 maisons jumelées en une seule habitation, offrant aujourd’hui de grands volumes, tout en laissant la possibilité de recréer deux logements indépendants, idéal pour un projet locatif ou familial.
À proximité
Recherche des commodités à proximité...
Détails de l'annonce
Localisation
Ville
Villefranche-d'Albigeois
Pays
FR
Diagnostics / Énergie
Diagnostic DPE
178
Diagnostic GES
53
Chauffage et diagnostics
Diagnostic de performance énergétique (DPE)
a
b
c
d
e
f
g
Indice d'émission de gaz à effet de serre (GES)
a
b
c
d
e
f
g
