Maison 123 m² + terrain constructible – Vue vignes – Heiligenste
Type
Bien immobilierTarif
206 000 €Chambres
3Salles de bain
1Maison 123 m² + terrain constructible – Vue vignes – Heiligenste
Heiligenstein, dans un secteur agréable, un environnement calme et recherché, au cœur du vignoble.
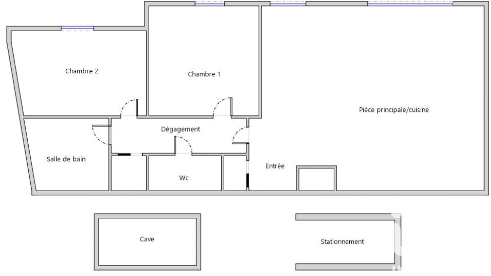
Maison de village d’environ 123 m² habitables offrant une vue dégagée sur la plaine d’Alsace et les vignes.
Un bien avec du potentiel, idéal pour un projet de rénovation dans un environnement privilégié.
Pièces de vie avec accès direct à la terrasse et au jardin, caves et espaces de stockage.
Espace nuit avec plusieurs possibilités d’aménagement, dont deux chambres et une grande pièce polyvalente.
Terrasse couverte d’environ 15 m²
Jardin avec vue dégagée
Cadre calme et agréable
En complément
Terrain constructible de 108 m² à proximité immédiate et en bordure des vignes (actuellement utilisé en stationnement, possibilité d’aménagement).
Maison ancienne nécessitant des travaux de rénovation
Les points forts :
- Vue dégagée sur les vignes
- Environnement recherché
- Belle surface exploitable
- Potentiel d’aménagement
- Espaces de rangement (atelier, caves, dressing, grenier)
- Terrain constructible de 100m2 à quelques pas.
Pour qui ?
Projet de résidence principale à personnaliser
Investissement avec valorisation
Amateurs de rénovation
Heiligenstein, village prisé de la route des vins, séduit par son cadre de vie paisible, son environnement naturel et sa proximité avec Barr et Obernai, offrant un accès rapide aux écoles, commerces et axes principaux, idéal pour les familles en quête de confort et de qualité de vie.
Annonce publiée par Joëlle Wespiser Wettling (EI) votre agent commercial en immobilier LF immo à Valff, 67210 immatriculé au RSAC de SAVERNE sous le n°831 047 618 000 28. Consultez nos tarifs sur le site LF immo.
Les informations sur les risques auxquels ce bien est exposé sont disponibles sur le site Géorisques : www.georisques.gouv.fr.
Maison de village d’environ 123 m² habitables offrant une vue dégagée sur la plaine d’Alsace et les vignes.
Un bien avec du potentiel, idéal pour un projet de rénovation dans un environnement privilégié.
Pièces de vie avec accès direct à la terrasse et au jardin, caves et espaces de stockage.
Espace nuit avec plusieurs possibilités d’aménagement, dont deux chambres et une grande pièce polyvalente.
Terrasse couverte d’environ 15 m²
Jardin avec vue dégagée
Cadre calme et agréable
En complément
Terrain constructible de 108 m² à proximité immédiate et en bordure des vignes (actuellement utilisé en stationnement, possibilité d’aménagement).
Maison ancienne nécessitant des travaux de rénovation
Les points forts :
- Vue dégagée sur les vignes
- Environnement recherché
- Belle surface exploitable
- Potentiel d’aménagement
- Espaces de rangement (atelier, caves, dressing, grenier)
- Terrain constructible de 100m2 à quelques pas.
Pour qui ?
Projet de résidence principale à personnaliser
Investissement avec valorisation
Amateurs de rénovation
Heiligenstein, village prisé de la route des vins, séduit par son cadre de vie paisible, son environnement naturel et sa proximité avec Barr et Obernai, offrant un accès rapide aux écoles, commerces et axes principaux, idéal pour les familles en quête de confort et de qualité de vie.
Annonce publiée par Joëlle Wespiser Wettling (EI) votre agent commercial en immobilier LF immo à Valff, 67210 immatriculé au RSAC de SAVERNE sous le n°831 047 618 000 28. Consultez nos tarifs sur le site LF immo.
Les informations sur les risques auxquels ce bien est exposé sont disponibles sur le site Géorisques : www.georisques.gouv.fr.
À proximité
Recherche des commodités à proximité...
Détails de l'annonce
Caractéristiques / Équipements
Cave
Oui
Nombre de parkings
4
Terrasse
Oui
Mandat exclusif
Oui
Cheminée
Oui
Vue dégagée
Oui
Localisation
Ville
Heiligenstein
Pays
France
Orientations
Orientation Est
Oui
Diagnostics / Énergie
Diagnostic DPE
G
Diagnostic GES
C
Consommation en énergie (kWh/m²/an)
609
Émissions de GES
18
Version du DPE
DPE version 07-2021
DPE coût min. estimé
2300.0
DPE coût max. estimé
3150.0
DPE année de référence conso
01/01/2021
Finances / Mandat / Références
Honoraires vendeur
€
Date du mandat
Wespiser Wettling
Identifiant agence
LFIMMO
Prénom mandataire
Joëlle
Raison sociale mandataire
Auto-entrepreneur
CP mandataire
67210
Ville mandataire
Valff
Téléphone mandataire
0623320770
Code négociateur
115984
Identifiant technique (code)
fr078253
Honoraires à la charge de
2 €
Prix hors honoraires acquéreur
206000.0 €
Surfaces / Pièces / Composition
Surface terrain (m²)
348.0 m²
Chauffage / Énergie
Type de chauffage
mixte
Cuisine
Type de cuisine
coin cuisine
Photos / Médias / Visites
URL visite virtuelle
https://www.youtube.com/watch?v=cSyUb86osi0
Contact à afficher
Joëlle Wespiser Wettling
Chauffage et diagnostics
Diagnostic de performance énergétique (DPE)
a
b
c
d
e
f
g
Indice d'émission de gaz à effet de serre (GES)
a
b
c
d
e
f
g
