Type
Bien immobilierTarif
279 000 €Chambres
1Salles de bain
0Vente appartement 2 pièces
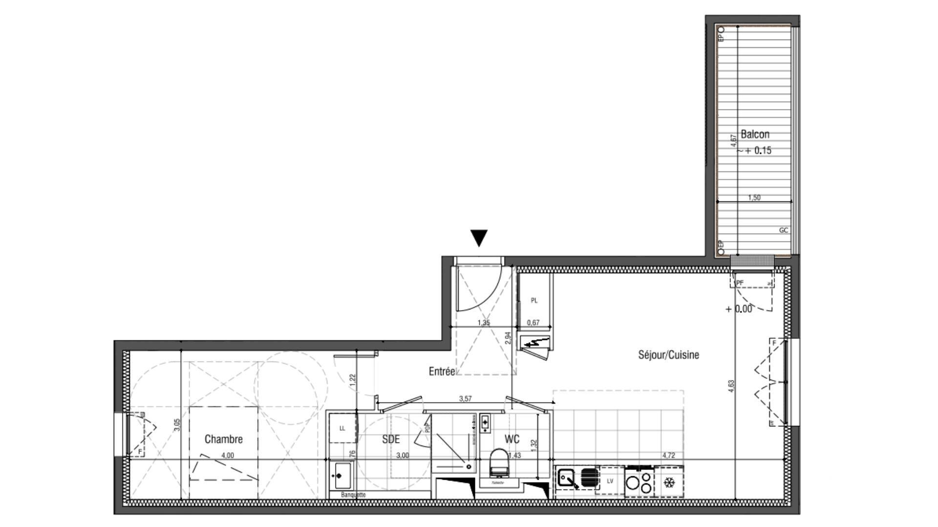
Iad France - Kevin Farhang vous propose : Appartement T2 neuf 43 m² – Saint-Cyr-l’École – Résidence Charles Renard 2025 À Saint-Cyr-l’École, dans la nouvelle ZAC Charles Renard, découvrez ce bel appartement 2 pièces situé au 2e étage avec ascenseur d’une résidence neuve de septembre 2025. L’appartement se compose : - d’un séjour lumineux de 24 m² avec cuisine ouverte, - d’une terrasse couverte de 6,6 m² exposée Sud-Ouest, au calme, donnant sur la cour intérieure, - d’une chambre type suite parentale avec accès direct à la salle de bain, - d’une salle de bain avec baignoire, - d’un WC séparé. La cuisine, déjà choisie par les vendeurs, sera installée dès la livraison : un modèle haut de gamme avec électroménager complet (four, lave-vaisselle, micro-ondes encastré). Côté confort : - volets roulants électriques connectés, - visiophone, thermostat intelligent, - une place de parking en sous-sol (boxable), - local vélos équipé (prise pour vélo électrique, station de lavage et de gonflage), - emplacements prévus pour scooters dans les parties communes du parking, - espace de coworking, - boîtes à colis connectées. Le tout dans un environnement résidentiel, à proximité des transports et des commodités. Rare sur le marché ! DPE : À (très haute performance énergétique) Chauffage : collectif avec compteur individuel (confort du collectif et facturation au réel selon votre consommation) La presente annonce immobiliere vise 2 lots situés dans une copropriété de 280 lots au total et ne faisant l'objet d'aucune procédure en cours citée à l'article L. 721-1 du code de la construction et de l'habitation. Montant moyen mensuel de charges déclaré par le vendeur : 0€ par mois (soit 0 € annuel). Honoraires d'agence à la charge du vendeur. Information d'affichage énergétique sur ce bien : classe ENERGIE A indice 54 et classe CLIMAT A indice 1. Les informations sur les risques auxquels ce bien est exposé, y compris l'obligation légale de débroussaillement, sont disponibles sur le site Géorisques : http://www.georisques.gouv.fr. La présente annonce immobilière a été rédigée sous la responsabilité éditoriale de M Kevin Farhang mandataire indépendant en immobilier (sans détention de fonds), agent commercial de la SAS I@D France immatriculé au RSAC de Honfleur sous le numéro 949543276, titulaire de la carte de démarchage immobilier pour le compte de la société I@D France SAS.
À proximité
Recherche des commodités à proximité...
Détails de l'annonce
Localisation
Ville
Saint-Cyr-l'Ecole
Pays
FR
Diagnostics / Énergie
Diagnostic DPE
54
Surfaces / Pièces / Composition
Nombre d’étages
4
Étage
2
Chauffage et diagnostics
Diagnostic de performance énergétique (DPE)
a
b
c
d
e
f
g
Indice d'émission de gaz à effet de serre (GES)
a
b
c
d
e
f
g
