Type
Bien immobilierTarif
178 000 €Chambres
3Salles de bain
1T4 65.59m²
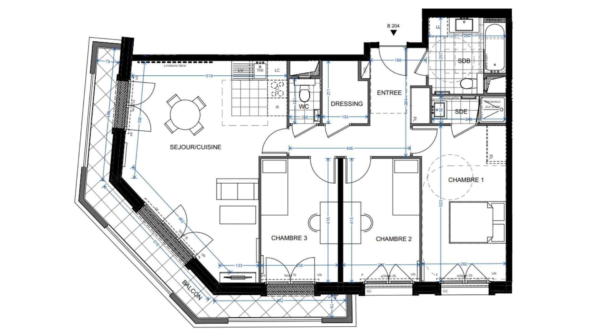
NOUVEAUTE ! Nous vous proposons ce grand duplex traversant de 65.59m² situé en étage élevé dans la résidence BEAU SOLEIL.
Vous apprécierez l'agencement, les volumes et la vue incroyable sur la mer et Notre Dame de la Garde que vous contemplerez depuis la véranda!
Le premier niveau se compose d'une entrée avec à gauche un coin cuisine puis une vaste pièce avec une véranda exposée plein ouest. Un escalier vous conduit au niveau supérieur qui comprend 3 chambres (dont 2 avec placard intégrés), une salle de bain et un toilette.
Le double vitrage est présent dans toutes les pièces.
Une cave complète se bien.
La copropriété a fait l'objet récemment de nombreux travaux (façade, ascenseur notamment). Projet validé en AG d'installer des antennes sur le toit pour générer des revenus.
Stationnement aisé dans le quartier.
A visiter rapidement, contactez-nous pour organiser une visite Bénédicte NASTA : CLAIRIMMO Marseille 5ème/4eme - 34 boulevard de la Blancarde 13004 MARSEILLE - Tél : 04 88 604 604 email : agencemarseille5@clairimmo.email RCS 851 986 620 Agent commercial indépendant du réseau national Clairimmo N° RSAC : 837493618
Les informations sur les risques auxquels ce bien est exposé sont disponibles sur le site Géorisques : www.georisques.gouv.fr
Vous apprécierez l'agencement, les volumes et la vue incroyable sur la mer et Notre Dame de la Garde que vous contemplerez depuis la véranda!
Le premier niveau se compose d'une entrée avec à gauche un coin cuisine puis une vaste pièce avec une véranda exposée plein ouest. Un escalier vous conduit au niveau supérieur qui comprend 3 chambres (dont 2 avec placard intégrés), une salle de bain et un toilette.
Le double vitrage est présent dans toutes les pièces.
Une cave complète se bien.
La copropriété a fait l'objet récemment de nombreux travaux (façade, ascenseur notamment). Projet validé en AG d'installer des antennes sur le toit pour générer des revenus.
Stationnement aisé dans le quartier.
A visiter rapidement, contactez-nous pour organiser une visite Bénédicte NASTA : CLAIRIMMO Marseille 5ème/4eme - 34 boulevard de la Blancarde 13004 MARSEILLE - Tél : 04 88 604 604 email : agencemarseille5@clairimmo.email RCS 851 986 620 Agent commercial indépendant du réseau national Clairimmo N° RSAC : 837493618
Les informations sur les risques auxquels ce bien est exposé sont disponibles sur le site Géorisques : www.georisques.gouv.fr
À proximité
Recherche des commodités à proximité...
Détails de l'annonce
Caractéristiques / Équipements
Interphone
Oui
Ascenseur
Oui
Cave
Oui
Localisation
Ville
Marseille 4eme
Pays
France
Orientations
Orientation Ouest
Oui
Diagnostics / Énergie
Diagnostic DPE
C
Diagnostic GES
a
Finances / Mandat / Références
Honoraires vendeur
4.71 €
Charges mensuelles
190 €
Numéro de mandat
11868
Type de mandat
24/10/2025
Date du mandat
NASTA
Chauffage et diagnostics
Diagnostic de performance énergétique (DPE)
a
b
c
d
e
f
g
Indice d'émission de gaz à effet de serre (GES)
a
b
c
d
e
f
g
