Type
Bien immobilierTarif
399 000 €Chambres
3Salles de bain
0Vente Maison traditionnelle 4 pièces
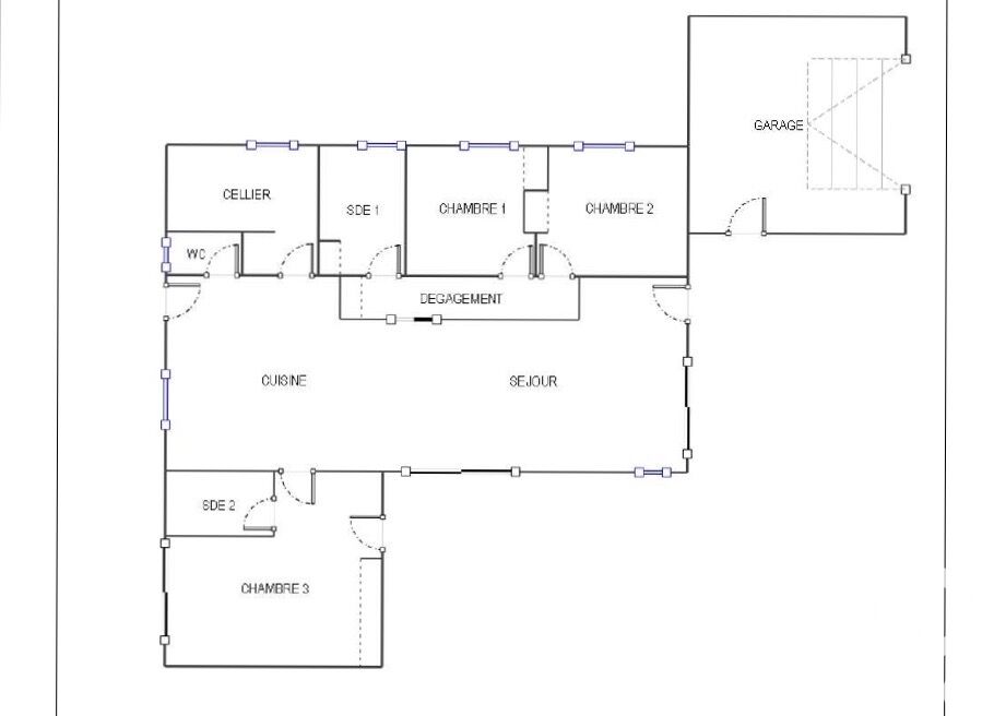
Iad France - Fabienne Goncalves vous propose : Entre Pornic et Saint-Père-Retz, Dans un hameau vivant à l'année, découvrez cette contemporaine récente alliant confort et fonctionnalité. Elle se compose d'une grande pièce de vie lumineuse avec cuisine aménagée et équipée, s'ouvrant sur une terrasse, deux chambres avec placard, une salle d'eau, Wc séparés, ainsi qu'une suite parentale avec salle d'eau privative et grand placard. Un cellier et un garage de 27 m² complètent l'ensemble. Le terrain de plus de 1100 m² est clos, avec possibilité de stationner plusieurs véhicules. Plus d'infos ou une visite ? N'hésitez pas à me contacter ! Honoraires d'agence à la charge de l'acquéreur. Prix honoraires inclus : 399000 euros. Prix hors honoraires : 384000 euros. Honoraires TTC à la charge de l'acquéreur (3,91% du prix du bien hors honoraires) : 15000 euros. Information d'affichage énergétique sur ce bien : classe ENERGIE C indice 166 et classe CLIMAT A indice 5. Les informations sur les risques auxquels ce bien est exposé, y compris l'obligation légale de débroussaillement, sont disponibles sur le site Géorisques : http://www.georisques.gouv.fr. La présente annonce immobilière a été rédigée sous la responsabilité éditoriale de Mme Fabienne Goncalves mandataire indépendant en immobilier (sans détention de fonds), agent commercial de la SAS I@D France immatriculé au RSAC de SAINT NAZAIRE sous le numéro 797860350, titulaire de la carte de démarchage immobilier pour le compte de la société I@D France SAS.
À proximité
Recherche des commodités à proximité...
Détails de l'annonce
Localisation
Ville
Pornic
Pays
FR
Diagnostics / Énergie
Diagnostic DPE
166
Diagnostic GES
5
Finances / Mandat / Références
Honoraires
15 €
Surfaces / Pièces / Composition
Nombre d’étages
Chauffage et diagnostics
Diagnostic de performance énergétique (DPE)
a
b
c
d
e
f
g
Indice d'émission de gaz à effet de serre (GES)
a
b
c
d
e
f
g
