Type
Bien immobilierTarif
425 000 €Chambres
2Salles de bain
0Vente Appartement 3 pièces
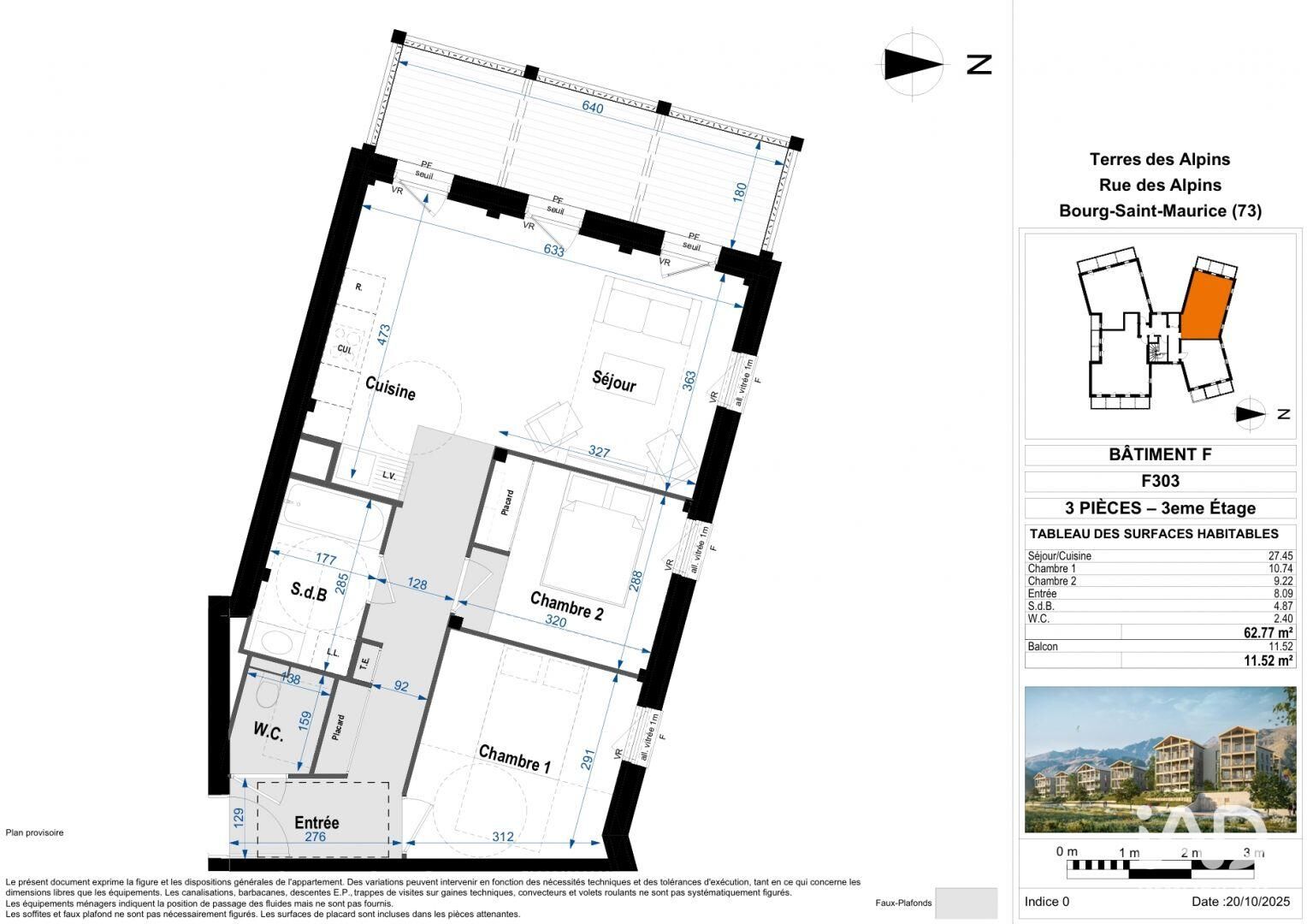
Iad France - Gemael Mambouana (06 25 67 76 73) vous propose : Venez découvrir ce 3 pièces de 62 m² livré en 2028 dans un cadre de vie résidentiel, entourée de massifs alpins qui se distingue par sa situation géographique et ses panoramas à couper le souffle. Cette résidence est un atout en tant qu'investisseur ou même pour y vivre en famille grâce à la proximité des transports en commun, les établissements scolaires et profité de la station des Arcs si vous êtes fan de ski. Le bien bénéficie de 1 place de parkings en sous-sol et d'une cave. Ne manquer pas cette occasion d'être le premier à mettre votre touche personnel dans se lieu magnifique. Honoraires d’agence à la charge du vendeur. Bien non soumis au DPE. Les informations sur les risques auxquels ce bien est exposé sont disponibles sur le site Géorisques : www.georisques.gouv.fr. La présente annonce immobilière a été rédigée sous la responsabilité éditoriale de M. Gemael Mambouana EI (ID 67660), mandataire indépendant en immobilier (sans détention de fonds), agent commercial de la SAS I@D France immatriculé au RSAC de MEAUX sous le numéro 911552891, titulaire de la carte de démarchage immobilier pour le compte de la société I@D France SAS. Retrouvez tous nos biens sur notre site internet. www.iadfrance.fr.
Ce mois
Cette annonce est récente
À proximité
Recherche des commodités à proximité...
Détails de l'annonce
Localisation
Ville
Bourg-Saint-Maurice
Pays
FR
Surfaces / Pièces / Composition
Nombre d’étages
3
Étage
3
Chauffage et diagnostics
Diagnostic de performance énergétique (DPE)
a
b
c
d
e
f
g
Indice d'émission de gaz à effet de serre (GES)
a
b
c
d
e
f
g
