Trouver...

Language: FR

Devise: EUR

Vente Maison de ville 5 pièces

Publié le 19 January 2025
Type
Bien immobilier
Tarif
578 000 €
Chambres
4
Salles de bain
0

Vente Maison de ville 5 pièces

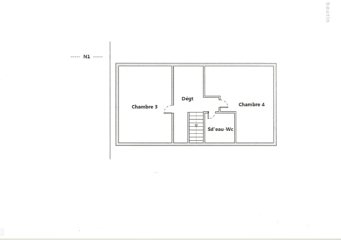
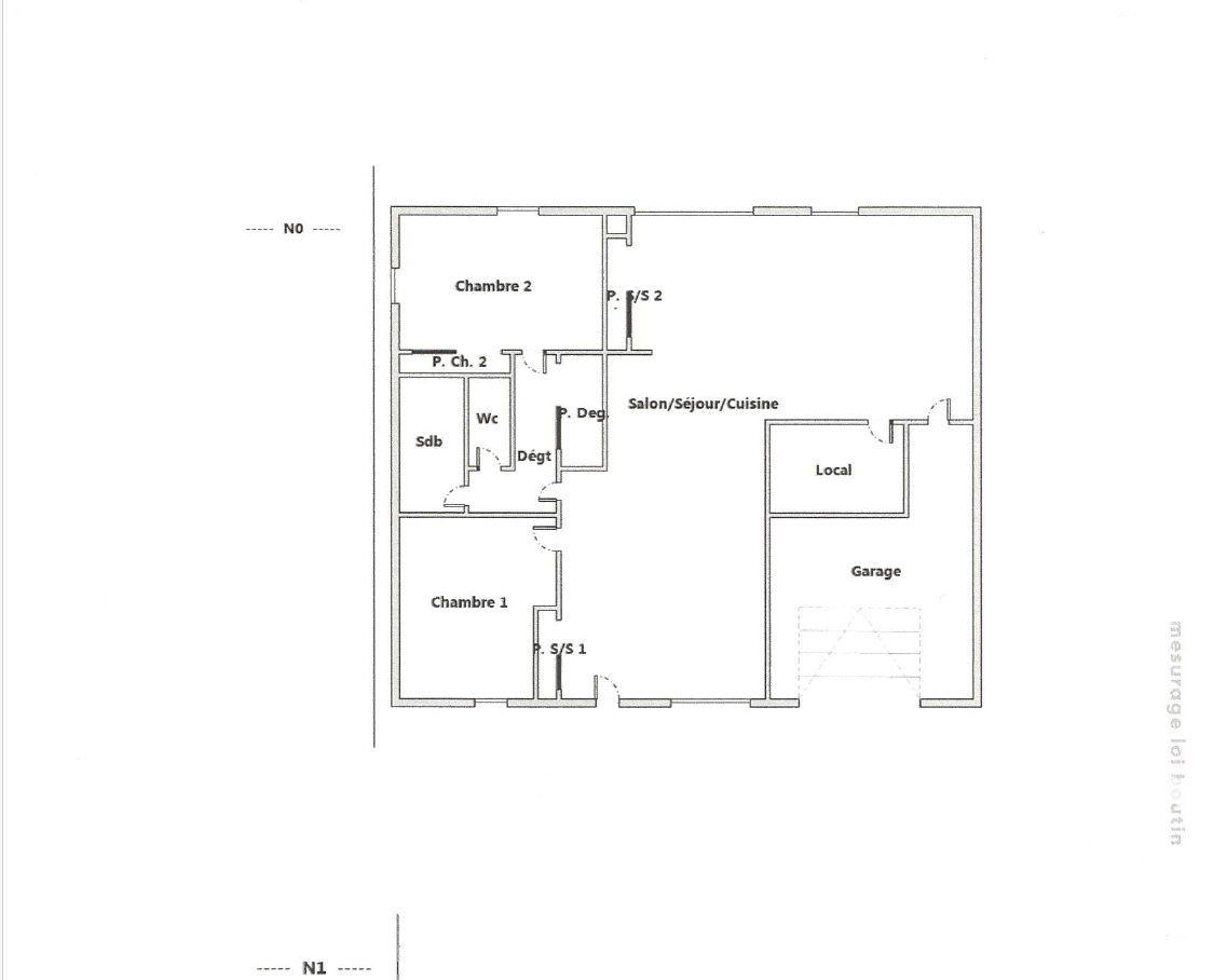
Iad France - Séverine Raimundo vous propose : Loft + Garage proche Place de la Victoire et Gare Saint Jean Venez découvrir cet ancien atelier aménagé en Loft d'une superficie de 167 m² avec garage. Situé dans une rue calme de Bordeaux, à proximité immédiate des commodités (transport, commerces, écoles) à 15 min à pied de la place de la Victoire et à 600m de la gare St Jean. Ce loft spacieux et lumineux saura vous séduire avec ses belles hauteurs sous plafond et ses beaux volumes modernes et confortables. Au rez-de-chaussée, vous découvrirez un vaste séjour de 70 m² offrant un espace de vie convivial, une cuisine équipée fonctionnelle, deux chambres, une salle de bains, un w-c, un cellier et un accès direct au garage. À l'étage, vous trouverez une belle mezzanine ainsi que deux grandes chambres, une salle d'eau et un w-c. Aucun travaux à prévoir ! À visiter sans tarder ! Honoraires d'agence à la charge du vendeur. Information d'affichage énergétique sur ce bien : classe ENERGIE D indice 167 et classe CLIMAT D indice 34. Les informations sur les risques auxquels ce bien est exposé, y compris l'obligation légale de débroussaillement, sont disponibles sur le site Géorisques : http://www.georisques.gouv.fr. La présente annonce immobilière a été rédigée sous la responsabilité éditoriale de Mme Séverine Raimundo mandataire indépendant en immobilier (sans détention de fonds), agent commercial de la SAS I@D France immatriculé au RSAC de Bordeaux sous le numéro 907634620, titulaire de la carte de démarchage immobilier pour le compte de la société I@D France SAS.

À proximité

Recherche des commodités à proximité...

Détails de l'annonce

Localisation

Ville
Bordeaux
Pays
FR

Diagnostics / Énergie

Diagnostic DPE
167
Diagnostic GES
34

Surfaces / Pièces / Composition

Nombre d’étages
2

Chauffage et diagnostics

Diagnostic de performance énergétique (DPE)
a
b
c
d
e
f
g
Indice d'émission de gaz à effet de serre (GES)
a
b
c
d
e
f
g
Rappelez-moi