Type
Bien immobilierTarif
199 000 €Chambres
4Salles de bain
0Vente Maison de ville 5 pièces
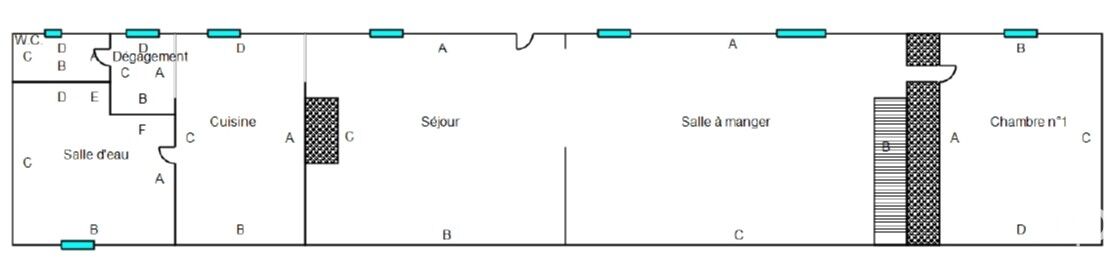
Iad France - Sandrine Leblond vous propose : Maison de ville rénovée idéalement située avec grands volumes et charme authentique Découvrez cette maison de ville entièrement rénovée, offrant de très beaux espaces de vie et un cachet unique grâce à ses poutres apparentes et son mur en briques. Au rez-de-chaussée, un grand garage avec belle hauteur sous plafond permet d’accueillir un utilitaire. Deux pièces supplémentaires offrent des possibilités variées : stockage, bureaux ou chambres supplémentaires. À l’étage, une vaste pièce de vie de 50 m² avec cuisine ouverte constitue le cOEur de la maison, complétée par trois chambres, une salle de bain et des WC séparés. (Possibilité de créer jusqu’à 5 chambres au total). Côté extérieur, un petit balcon plein soleil toute la journée permet de profiter d’un repas en extérieur ou d’un coin détente, sans vis-à-vis direct. La localisation est idéale : dans un quartier calme, à moins de 600 mètres de toutes les écoles du centre-ville (de la maternelle au lycée), à 15 minutes à pied de la gare de Dreux et à 5 minutes de l’hyper-centre. Une situation rare qui conjugue tranquillité et proximité immédiate des commodités. Côté confort, la maison bénéficie d’un poêle à pellets complété par un chauffage au gaz (chaudière à condensation), de fenêtres à double vitrage avec isolation phonique, ainsi que d’un ravalement récent et une décoration au goût du jour. Diagnostics sans amiante ni plomb, assainissement conforme. Les + : Cette maison allie charme, espace et polyvalence, idéale pour un projet familial et / ou professionnel. Une visite virtuelle est disponible pour vous projeter dès maintenant dans ce cadre de vie privilégié. Honoraires d'agence à la charge du vendeur. Information d'affichage énergétique sur ce bien : classe ENERGIE D indice 187 et classe CLIMAT C indice 29. Les informations sur les risques auxquels ce bien est exposé, y compris l'obligation légale de débroussaillement, sont disponibles sur le site Géorisques : http://www.georisques.gouv.fr. La présente annonce immobilière a été rédigée sous la responsabilité éditoriale de Mme Sandrine Leblond mandataire indépendant en immobilier (sans détention de fonds), agent commercial de la SAS I@D France immatriculé au RSAC de Chartres sous le numéro 907527949, titulaire de la carte de démarchage immobilier pour le compte de la société I@D France SAS.
À proximité
Recherche des commodités à proximité...
Détails de l'annonce
Localisation
Ville
Dreux
Pays
FR
Diagnostics / Énergie
Diagnostic DPE
187
Diagnostic GES
29
Surfaces / Pièces / Composition
Nombre d’étages
2
Chauffage et diagnostics
Diagnostic de performance énergétique (DPE)
a
b
c
d
e
f
g
Indice d'émission de gaz à effet de serre (GES)
a
b
c
d
e
f
g
