Type
Bien immobilierTarif
1 363 000 €Chambres
4Salles de bain
0Vente Maison/villa 5 pièces
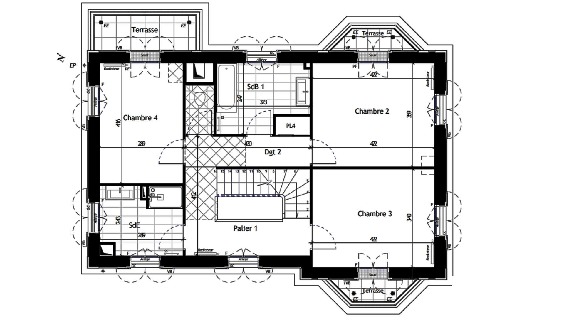
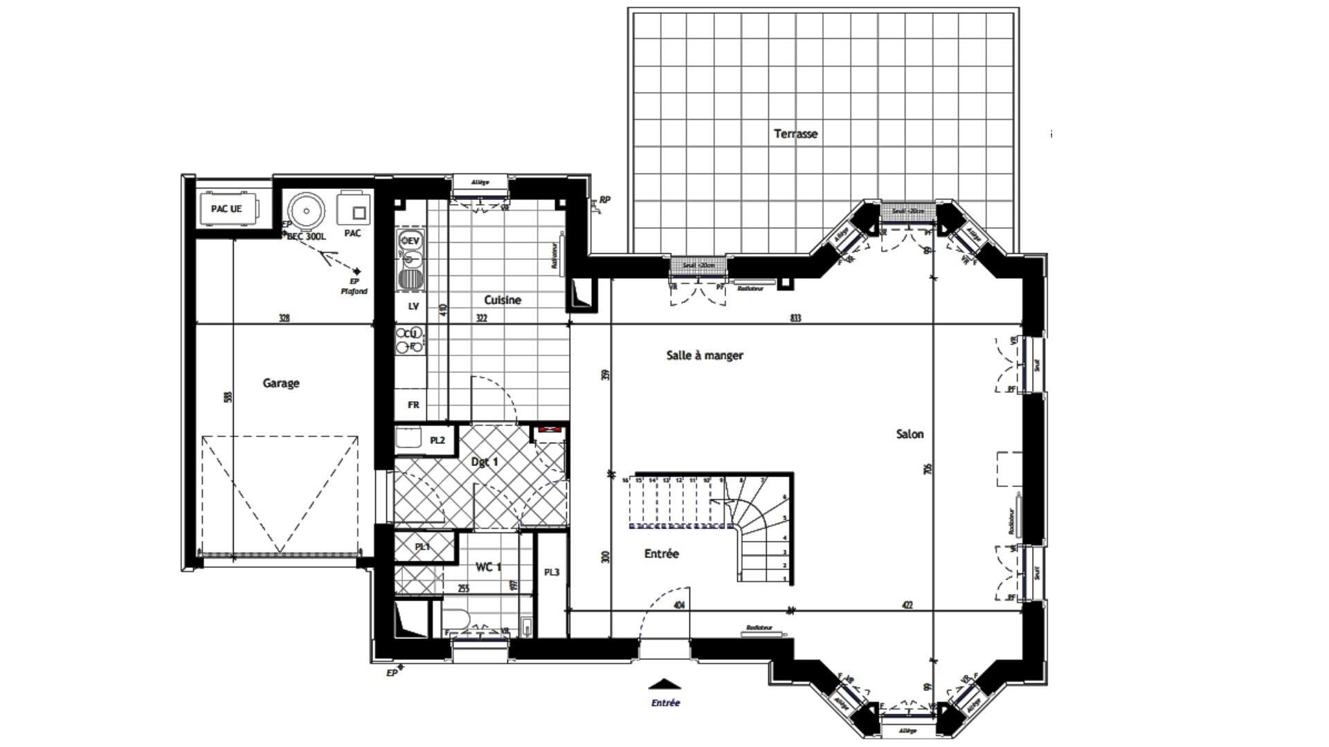
Iad France - Sarah Rozière (06 99 86 19 42) vous propose : Maison 5 pièces à Chatou. Idéalement située rue des Landes à Chatou, au cOEur d’un quartier résidentiel, la résidence La Villa des Landes conjugue élégance classique et confort contemporain. Inspirée des demeures bourgeoises du XIX ème siècle, cette adresse offre un cadre verdoyant et apaisé, à seulement quelques minutes du centre-ville et des bords de Seine. Disponible 2027. Cette maison, d’une surface habitable de 213 m² environ, se distingue par ses volumes généreux et ses belles prestations. Elle s’ouvre sur une terrasse de 29 m² environ et un jardin de 550 m² environ. - Grand séjour / salle à manger lumineux ouvert sur le jardin. - Cuisine spacieuse et indépendante. - Trois belles chambres, dont une grande pièce pouvant être aménagée à votre goût en master suite. - Annexes incluses : un garage privatif et une place de stationnement extérieure. De belles prestations : - Chauffage assuré par pompe à chaleur, performant et économe en énergie. - Menuiseries extérieures haut de gamme avec double vitrage. - Espaces extérieurs arborés et clôturés pour un confort optimal. - Résidence sécurisée avec portail motorisé et accès privatif. L’art de vivre à Chatou : - À proximité immédiate des écoles, commerces et services. - RER A – Gare de Chatou-Croissy à 7 minutes en voiture. - Parc des Ibis accessible à pied. N’hésitez pas à me contacter pour plus d’informations ou pour un accompagnement sur mesure. Honoraires d’agence à la charge du vendeur. Bien non soumis au DPE. Les informations sur les risques auxquels ce bien est exposé sont disponibles sur le site Géorisques : www.georisques.gouv.fr. La présente annonce immobilière a été rédigée sous la responsabilité éditoriale de Mlle Sarah Rozière EI (ID 83696), mandataire indépendant en immobilier (sans détention de fonds), agent commercial de la SAS I@D France immatriculé au RSAC de Clermont-Ferrand sous le numéro 978616993, titulaire de la carte de démarchage immobilier pour le compte de la société I@D France SAS. Retrouvez tous nos biens sur notre site internet. www.iadfrance.fr.
À proximité
Recherche des commodités à proximité...
Détails de l'annonce
Localisation
Ville
Chatou
Pays
FR
Surfaces / Pièces / Composition
Nombre d’étages
2
Chauffage et diagnostics
Diagnostic de performance énergétique (DPE)
a
b
c
d
e
f
g
Indice d'émission de gaz à effet de serre (GES)
a
b
c
d
e
f
g
