Vente Ferme 8 pièces
Type
Bien immobilierTarif
449 000 €Chambres
5Salles de bain
0Vente Ferme 8 pièces
Iad France - Olivier Rouquairol vous propose : Propriété arborée sans vis-à-vis – deux logements et grandes dépendances Au cOEur d’un environnement naturel et préservé, cette propriété implantée sur un terrain d’environ 3 300 m² arboré et entièrement dégagé de tout vis-à-vis offre un cadre de vie calme et verdoyant, avec de nombreuses possibilités d’aménagement. La maison principale se compose de deux logements distincts : .
Détails de l'annonce
Localisation
Ville
Upie
Pays
FR
Diagnostics / Énergie
Diagnostic DPE
209
Diagnostic GES
6
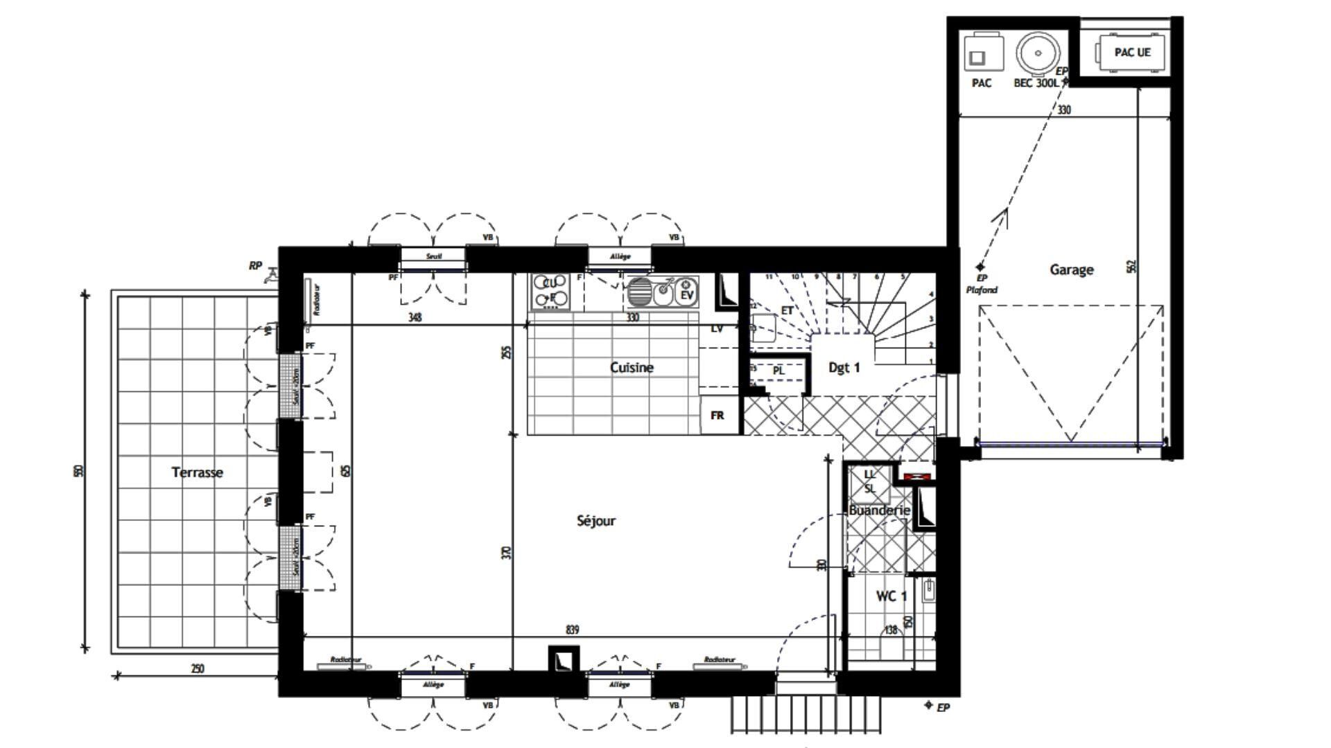
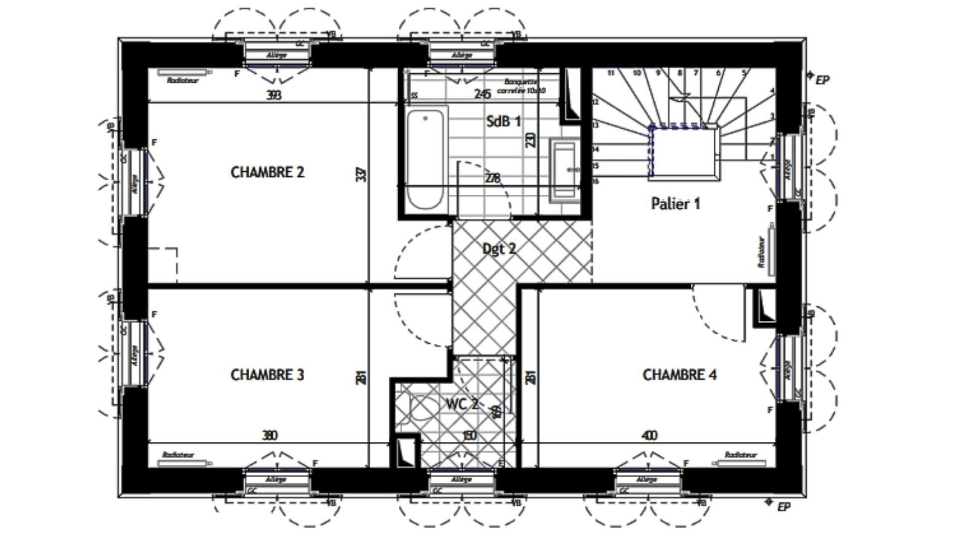
Surfaces / Pièces / Composition
Nombre d’étages
2
Chauffage et diagnostics
Diagnostic de performance énergétique (DPE)
a
b
c
d
e
f
g
Indice d'émission de gaz à effet de serre (GES)
a
b
c
d
e
f
g
