Type
Bien immobilierTarif
75 000 €Chambres
3Salles de bain
0Vente Maison de campagne 5 pièces
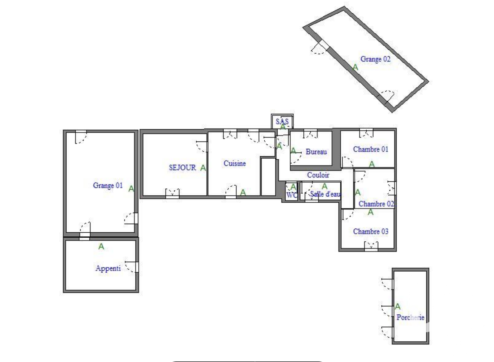
Iad France - Alexandra Ballester vous propose : Idéal Investisseur / Maison de plain-pied 102 m² / Vicq-sur-Breuilh / 2 granges / Ensemble immobilier avec beaucoup de potentiel ! / Cette maison se compose d'une entrée, une cuisine séparée, d'un salon / salle à manger, de 3 chambres, un bureau, une salle d'eau et wc indépendant. / A l’extérieur 2 granges une de 98 m² avec appentis de 45 m² et une de 65 m² au sol (toiture à revoir pour les 2 granges) sur une parcelle de 1260 m². Environnement agréable proche de l’autoroute A20. Travaux à prévoir : assainissement à refaire, menuiseries, électricité, chauffage (équipé d'un insert à bois). Toiture de la maison correct ainsi que les gouttières. Taxe foncière faible (La maison n'a pas de lettre pour le DPE car elle ne possède pas de chauffage actuellement donc une attestation suffit.) Merci de me contacter uniquement par téléphone ou SMS.
À proximité
Recherche des commodités à proximité...
Détails de l'annonce
Localisation
Ville
Vicq-sur-Breuilh
Pays
FR
Finances / Mandat / Références
Honoraires
5 €
Chauffage et diagnostics
Diagnostic de performance énergétique (DPE)
a
b
c
d
e
f
g
Indice d'émission de gaz à effet de serre (GES)
a
b
c
d
e
f
g
