Type
Bien immobilierTarif
508 000 €Chambres
3Salles de bain
0Vente Longère 6 pièces
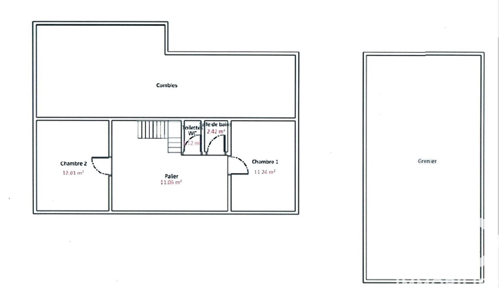
Iad France - Nathalie Segalen vous propose : Pouldreuzic - Bien rare - Propriété de caractère de 142 m² habitables + 140 m² d'annexes communiquant - À proximité immédiate du centre et à seulement 5 km de la plage de Penhors, découvrez cette magnifique maison en pierre d’environ 142 m² habitables, entièrement rénovée à partir de 2006. Cette maison allie le charme de l’ancien et le confort du moderne, avec une atmosphère chaleureuse, beaucoup de luminosité et une présence marquée du bois qui lui confère un caractère unique. La grande pièce de vie de plus de 60 m², dotée d’un poêle à bois très qualitatif, constitue un espace particulièrement convivial. La maison offre une véritable vie de plain-pied avec une chambre, une salle de bains, un toilette indépendant, une buanderie, un cellier et un dégagement menant à un atelier de 80 m² et un double garage de 40 et 20 m², accessibles directement depuis la maison grâce à un passage plein de caractère. Les prestations sont de grande qualité : huisseries bois et aluminium avec volets roulants électriques, toiture refaite, isolation performante (DPE D), escalier en chêne massif, cuisine chaleureuse et fonctionnelle. À l’étage, un agréable palier dessert deux chambres lumineuses, une salle d’eau et un toilette. Cette propriété se distingue également par ses nombreuses annexes représentant près de 140 m² supplémentaires : un atelier d’environ 79–80 m², un double garage d’environ 40 m², un garage indépendant de 20 m², un carport, une tente de stockage ainsi qu’un abri à bois couvert accessible depuis la maison. Trois entrées possibles permettent d’envisager différents usages ou projets. Le terrain paysagé de 4 602 m², entièrement aménagé avec allée bitumée et portail électrique, offre un environnement calme et verdoyant, sans nuisances, idéal pour profiter pleinement de l’extérieur. Cette maison de 1934 modernisée constitue une belle demeure, rare sur le marché, offrant confort, charme, grands volumes et un potentiel remarquable grâce à ses vastes dépendances. Une opportunité à ne pas manquer. Les petits + : assainissement conforme, exposition sud, arbres fruitiers. Honoraires d'agence à la charge de l'acquéreur. Prix honoraires inclus : 508000 euros. Prix hors honoraires : 490000 euros. Honoraires TTC à la charge de l'acquéreur (3,67% du prix du bien hors honoraires) : 18000 euros. Information d'affichage énergétique sur ce bien : classe ENERGIE D indice 190 et classe CLIMAT B indice 7. Les informations sur les risques auxquels ce bien est exposé, y compris l'obligation légale de débroussaillement, sont disponibles sur le site Géorisques : http://www.georisques.gouv.fr. La présente annonce immobilière a été rédigée sous la responsabilité éditoriale de Mme Nathalie Segalen mandataire indépendant en immobilier (sans détention de fonds), agent commercial de la SAS I@D France immatriculé au RSAC de QUIMPER sous le numéro 514 240 977, titulaire de la carte de démarchage immobilier pour le compte de la société I@D France SAS.
À proximité
Recherche des commodités à proximité...
Détails de l'annonce
Localisation
Ville
Pouldreuzic
Pays
FR
Diagnostics / Énergie
Diagnostic DPE
190
Diagnostic GES
7
Surfaces / Pièces / Composition
Nombre d’étages
2
Chauffage et diagnostics
Diagnostic de performance énergétique (DPE)
a
b
c
d
e
f
g
Indice d'émission de gaz à effet de serre (GES)
a
b
c
d
e
f
g
