Trouver...

Language: FR

Devise: EUR

Type
Bien immobilier
Tarif
179 000 €
Chambres
4
Salles de bain
0

Vente Maison/villa 5 pièces

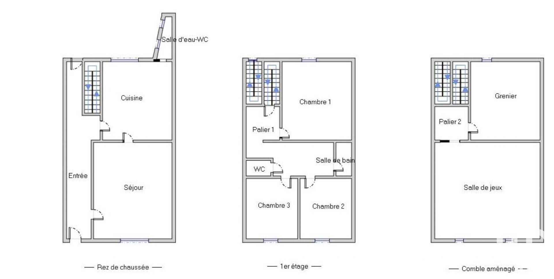
Iad France - Marie Haoui (06 74 07 89 55) vous propose : Maison de centre bourg de 169 m² environ sur 3 niveaux rénovée avec goût, alliance parfaite entre l'ancien et le confort moderne. Proche de toutes les commodités de Champsdeniers (super u, pharmacie, médecin) Rez de chaussée : entrée spacieuse, avec dégagement qui ouvre sur un salon puis une cuisine avec un accès sur l'extérieur. Un WC et une douche complète le niveau Au premier étage : 3 chambres (10,11 et 18 m² environ) avec rangement. Une salle de bain, et un WC Au second et dernier étage : une grande salle de sport de 31 m² environ et une chambre de 19 m² environ à rafraîchir. Côté extérieur, une belle terasse carrelée, parcelle entièrement close, pas de garage, mais stationnement gratuit à proximité immédiate. Dépendance extérieur contenant la chaudière, et dépendance supplementaire à réaménager complètement Caractéristiques techniques : -PVC double vitrage - toiture rénovée en 2019 -chaudire au fioul -taxe foncière : 750 euros -cave souterraine Honoraires d’agence à la charge du vendeur. Information d'affichage énergétique sur ce bien : classe ENERGIE D indice 160 et classe CLIMAT D indice 35. Les informations sur les risques auxquels ce bien est exposé sont disponibles sur le site Géorisques : www.georisques.gouv.fr. La présente annonce immobilière a été rédigée sous la responsabilité éditoriale de Mlle Marie Haoui EI (ID 52448), mandataire indépendant en immobilier (sans détention de fonds), agent commercial de la SAS I@D France immatriculé au RSAC de NIORT sous le numéro 814612701, titulaire de la carte de démarchage immobilier pour le compte de la société I@D France SAS. Le présent bien est commercialisé dans le cadre d'une délégation de mandat. Retrouvez tous nos biens sur notre site internet. www.iadfrance.fr.

Détails de l'annonce

Localisation

Ville
Champdeniers-Saint-Denis
Pays
FR

Diagnostics / Énergie

Diagnostic DPE
160
Diagnostic GES
35

Surfaces / Pièces / Composition

Nombre d’étages

Chauffage et diagnostics

Diagnostic de performance énergétique (DPE)
a
b
c
d
e
f
g
Indice d'émission de gaz à effet de serre (GES)
a
b
c
d
e
f
g
Rappelez-moi
Nos partenaires