Type
Bien immobilierTarif
498 000 €Chambres
2Salles de bain
0Vente Maison/villa 3 pièces
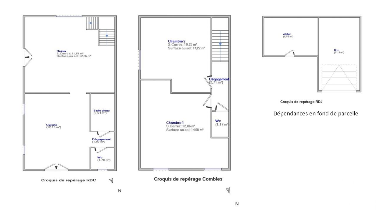
Iad France - Valérie Latanne vous propose : Charmante maison lumineuse avec jardin, quartier recherché, tout à pied. À proximité immédiate des commerces, écoles, transports, cette maison offre : Au rez-de-chaussée de plain-pied : - un séjour parqueté très lumineux, - une grande cuisine attenante ouvrant sur une terrasse couverte, - une salle d’eau, - un WC indépendant. À l'étage : - 2 chambres, - un WC avec lave-main (possibilité de créer une deuxième salle d'eau). La maison est bien entretenue, des travaux de rafraichissement permettront de la mettre à votre goût. Les espaces extérieurs invitent à la détente et des dépendances de 30 m² en fond de parcelle offrent un vrai potentiel. Idéalement située à moins de 10 minutes à pied des commerces de la rue Baratte-Cholet et des écoles réputées (sectorisation Marcellin Berthelot ou D’Arsonval), à 15 minutes à pied du RER A Le Parc de Saint-Maur, cette maison représente une opportunité pour les acheteurs en recherche d'un cadre de vie privilégié à proximité de tout. Contactez moi pour la visiter. Honoraires d'agence à la charge du vendeur. Information d'affichage énergétique sur ce bien : classe ENERGIE D indice 248 et classe CLIMAT D indice 44. Les informations sur les risques auxquels ce bien est exposé, y compris l'obligation légale de débroussaillement, sont disponibles sur le site Géorisques : http://www.georisques.gouv.fr. La présente annonce immobilière a été rédigée sous la responsabilité éditoriale de Mme Valérie Latanne mandataire indépendant en immobilier (sans détention de fonds), agent commercial de la SAS I@D France immatriculé au RSAC de CRETEIL sous le numéro 910875566, titulaire de la carte de démarchage immobilier pour le compte de la société I@D France SAS.
Ce mois
Cette annonce est récente
À proximité
Recherche des commodités à proximité...
Détails de l'annonce
Localisation
Ville
Saint-Maur-des-Fossés
Pays
FR
Diagnostics / Énergie
Diagnostic DPE
248
Diagnostic GES
44
Surfaces / Pièces / Composition
Nombre d’étages
Chauffage et diagnostics
Diagnostic de performance énergétique (DPE)
a
b
c
d
e
f
g
Indice d'émission de gaz à effet de serre (GES)
a
b
c
d
e
f
g
