Type
Bien immobilierTarif
285 000 €Chambres
2Salles de bain
0Vente Pavillon 5 pièces
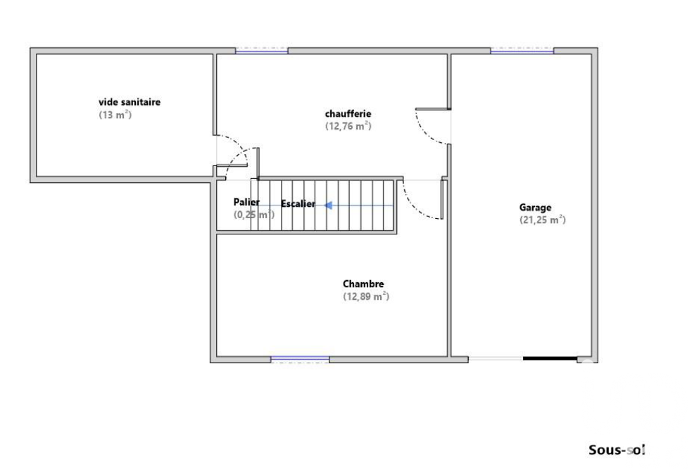
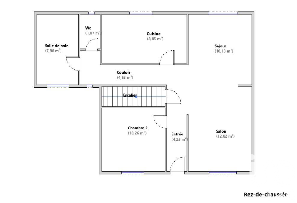
Iad France - Marie Barbin vous propose : Située dans un secteur CALME et recherché, cette charmante maison de 80 m² habitables (pour 149 m² au sol) repose sur une parcelle de 288 m². Le rez-de-chaussée offre une belle entrée, un double séjour traversant baigné de lumière, une cuisine séparée et équipée, une chambre, une salle de bain et un WC indépendant. À l’étage, vous trouverez une chambre mansardée de 15,50 m² au sol, idéale pour un espace nuit ou un bureau. Exposée ouest, la maison bénéficie d’une lumière naturelle douce tout au long de la journée. Le jardin clos et verdoyant constitue un véritable espace de vie supplémentaire, parfait pour profiter des beaux jours en toute tranquillité. Le sous-sol total non enterré offre UN BEAU POTENTIEL d’aménagement avec une buanderie, un bureau et un garage. Vous apprécierez la proximité immédiate des commerces, écoles et transports : gare RER C et tramway à seulement 600 mètres. Une maison pleine de charme à découvrir sans plus tarder ! Honoraires d'agence à la charge du vendeur. Information d'affichage énergétique sur ce bien : classe ENERGIE E indice 316 et classe CLIMAT E indice 65. Les informations sur les risques auxquels ce bien est exposé, y compris l'obligation légale de débroussaillement, sont disponibles sur le site Géorisques : http://www.georisques.gouv.fr. La présente annonce immobilière a été rédigée sous la responsabilité éditoriale de Mme Marie Barbin mandataire indépendant en immobilier (sans détention de fonds), agent commercial de la SAS I@D France immatriculé au RSAC de CRETEIL sous le numéro 899953327, titulaire de la carte de démarchage immobilier pour le compte de la société I@D France SAS.
À proximité
Recherche des commodités à proximité...
Détails de l'annonce
Localisation
Ville
Villeneuve-le-Roi
Pays
FR
Diagnostics / Énergie
Diagnostic DPE
316
Diagnostic GES
65
Surfaces / Pièces / Composition
Nombre d’étages
3
Chauffage et diagnostics
Diagnostic de performance énergétique (DPE)
a
b
c
d
e
f
g
Indice d'émission de gaz à effet de serre (GES)
a
b
c
d
e
f
g
