Trouver...

Language: FR

Devise: EUR

Vente Maison de campagne 5 pièces

Publié le 18 January 2026
Type
Bien immobilier
Tarif
139 000 €
Chambres
3
Salles de bain
0

Vente Maison de campagne 5 pièces

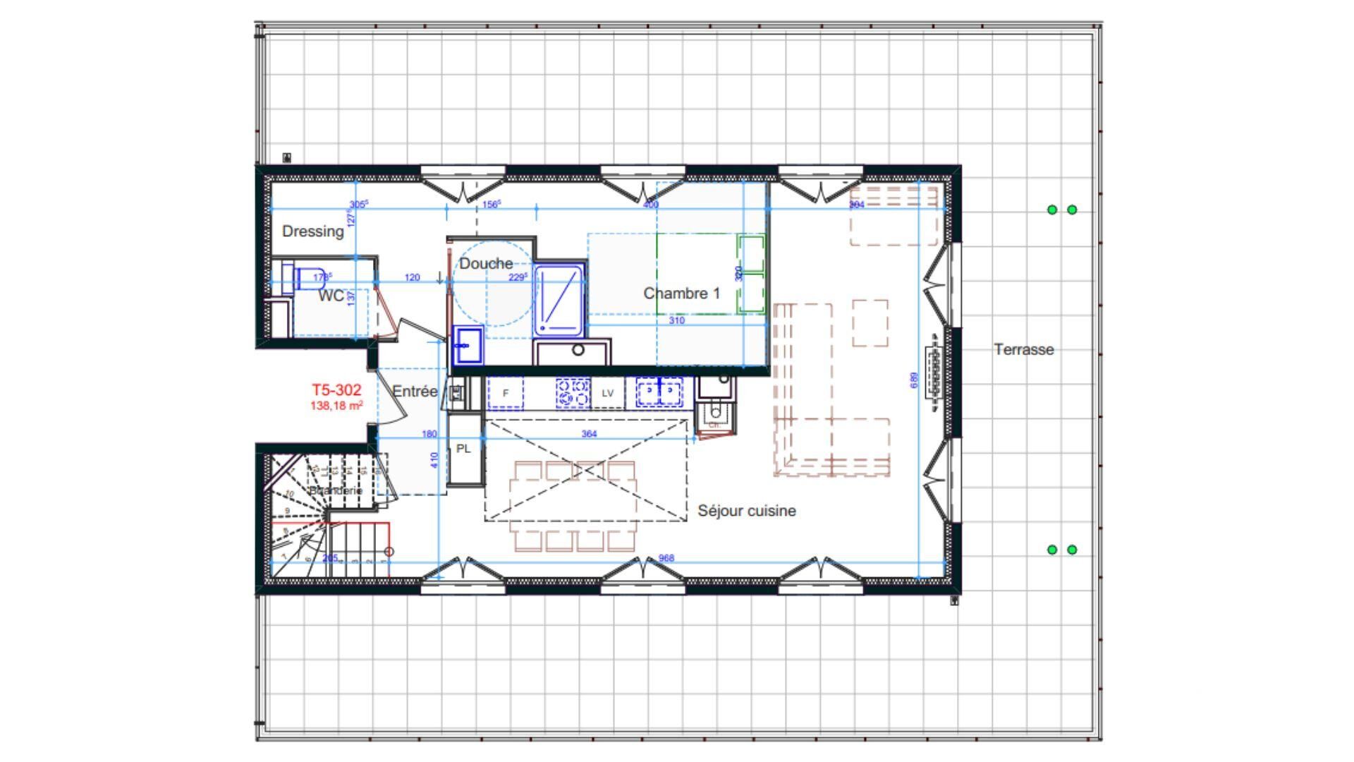
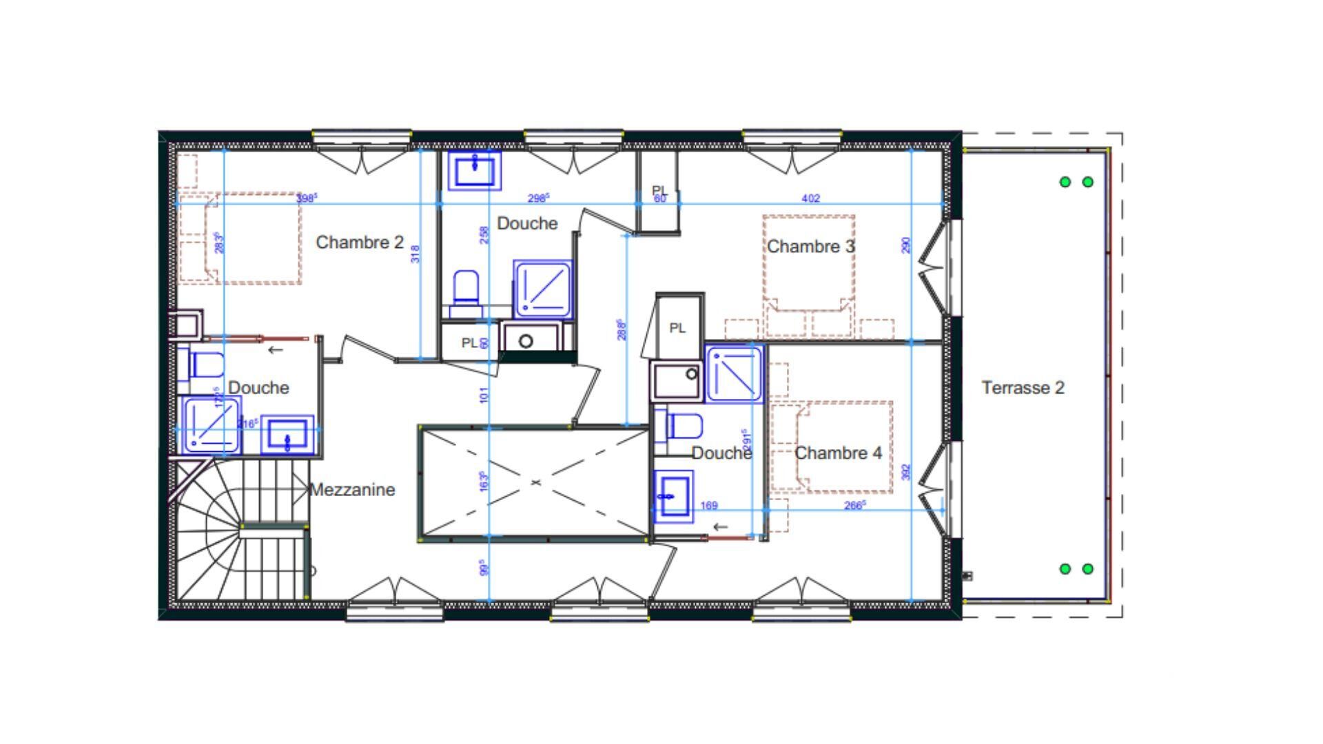
Iad France - Julien Montalto vous propose : Venez vous reposer dans cette belle maison de campagne, au calme et proche de Dieuze ! De plain-pied, vous serez accueilli par une belle entrée qui dessert une agréable pièce de vie de 43 m². Cette maison, très bien agencée, offre des espaces fonctionnels et harmonieux. Dans le prolongement de la pièce principale, vous découvrirez un salon chaleureux agrémenté d’une cheminée ouverte. Une cuisine pratique, avec accès direct sur l’extérieur, vous permettra de profiter pleinement des beaux jours. À l’étage, la partie nuit se compose de trois chambres spacieuses et lumineuses ainsi que d’une salle de bain. Vous disposerez également d’une partie dépendance permettant le stationnement de véhicules, une chambre froide est en place. Un couloir relie cet espace à une buanderie, une salle d’eau et un cellier, tout en offrant un accès direct à la partie habitation. À visiter sans tarder ! Honoraires d'agence à la charge du vendeur. Information d'affichage énergétique sur ce bien : classe ENERGIE F indice 225 et classe CLIMAT F indice 70. Les informations sur les risques auxquels ce bien est exposé, y compris l'obligation légale de débroussaillement, sont disponibles sur le site Géorisques : http://www.georisques.gouv.fr. La présente annonce immobilière a été rédigée sous la responsabilité éditoriale de M Julien Montalto mandataire indépendant en immobilier (sans détention de fonds), agent commercial de la SAS I@D France immatriculé au RSAC de METZ sous le numéro 844840991, titulaire de la carte de démarchage immobilier pour le compte de la société I@D France SAS.

À proximité

Recherche des commodités à proximité...

Détails de l'annonce

Localisation

Ville
Bidestroff
Pays
FR

Diagnostics / Énergie

Diagnostic DPE
225
Diagnostic GES
70

Chauffage et diagnostics

Diagnostic de performance énergétique (DPE)
a
b
c
d
e
f
g
Indice d'émission de gaz à effet de serre (GES)
a
b
c
d
e
f
g
Rappelez-moi