Vente Appartement 5 pièces
Type
Bien immobilierTarif
980 000 €Chambres
2Salles de bain
0Vente Appartement 5 pièces
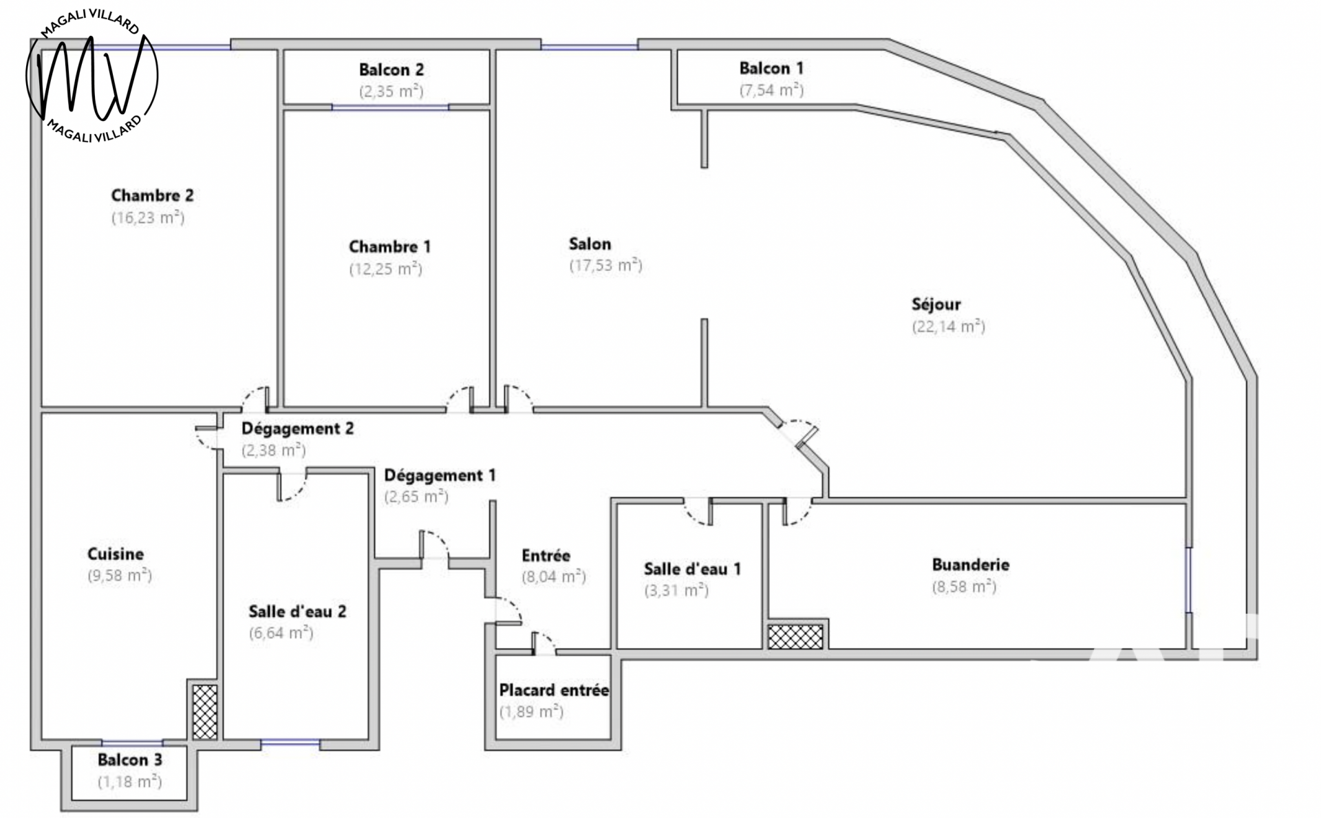
Iad France - Magali Villard vous propose : SOUS OFFRE ACCEPTÉE -Cannes Banane – Adresse d’Exception à Deux Pas de la Croisette – 111 m² Traversant avec Aperçu Mer, Balcons, Parking & Caves À seulement 150 mètres de la mythique Croisette, dans le prestigieux quartier prisé de la Banane, à deux pas de l’hôtel Carlton, découvrez ce bien rare à fort potentiel, situé au 3e étage d’une résidence sécurisée avec vidéosurveillance et sas d’entrée. D’une surface totale de 111 m², cet appartement traversant et lumineux est le fruit de la réunion de deux grands 2 pièces, offrant aujourd’hui de volumes généreux et modulables. Il peut aisément être reconfiguré en deux unités indépendantes, sans travaux lourds, selon vos projets. Vous serez séduits par : – Un aperçu mer – Trois balcons, possibilité de créer un petit espace détente – Deux belles caves privatives, parfaites pour le rangement – Un parking privatif dans une résidence voisine, un véritable luxe à Cannes La copropriété est soigneusement entretenue, et l’emplacement est tout simplement exceptionnel : à quelques pas du Palais des Festivals, de la rue d’Antibes, des plages et de toutes les commodités. Un bien rare et élégant, à personnaliser selon vos envies. Idéal résidence principale, pied-à-terre haut de gamme ou investissement patrimonial. La presente annonce immobiliere vise 5 lots situés dans une copropriété de 80 lots au total et ne faisant l'objet d'aucune procédure en cours citée à l'article L. 721-1 du code de la construction et de l'habitation. Montant moyen mensuel de charges déclaré par le vendeur : 198€ par mois (soit 2376 € annuel). Honoraires d'agence à la charge du vendeur. Information d'affichage énergétique sur ce bien : classe ENERGIE D indice 160 et classe CLIMAT D indice 33. Les informations sur les risques auxquels ce bien est exposé, y compris l'obligation légale de débroussaillement, sont disponibles sur le site Géorisques : http://www.georisques.gouv.fr. La présente annonce immobilière a été rédigée sous la responsabilité éditoriale de Mme Magali Villard mandataire indépendant en immobilier (sans détention de fonds), agent commercial de la SAS I@D France immatriculé au RSAC de NICE sous le numéro 914889381, titulaire de la carte de démarchage immobilier pour le compte de la société I@D France SAS.
Détails de l'annonce
Localisation
Ville
Cannes
Pays
FR
Diagnostics / Énergie
Diagnostic DPE
160
Diagnostic GES
33
Surfaces / Pièces / Composition
Nombre d’étages
6
Étage
3
Chauffage et diagnostics
Diagnostic de performance énergétique (DPE)
a
b
c
d
e
f
g
Indice d'émission de gaz à effet de serre (GES)
a
b
c
d
e
f
g
