Trouver...

Language: FR

Devise: EUR

Vente Duplex 3 pièces

Publié le 26 October 2025
Type
Bien immobilier
Tarif
229 000 €
Chambres
2
Salles de bain
0

Vente Duplex 3 pièces

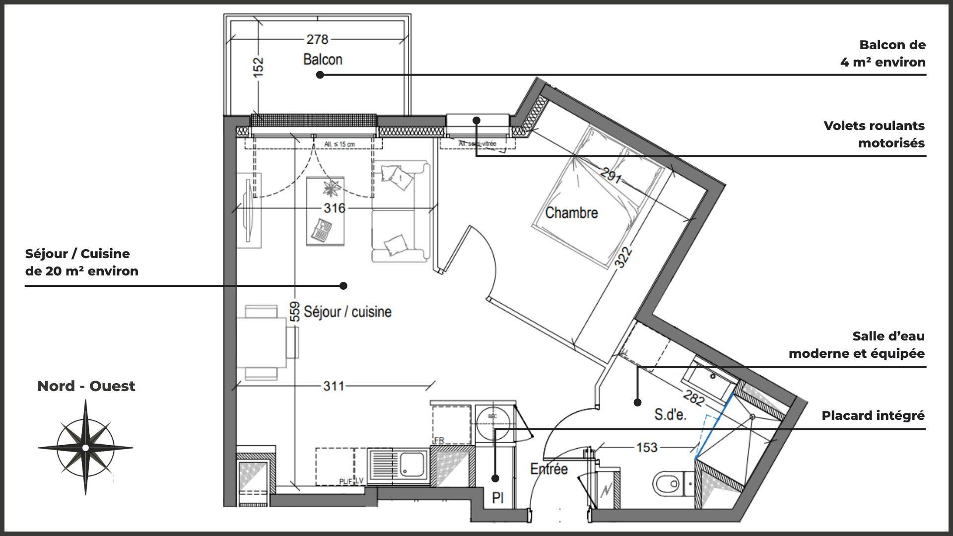
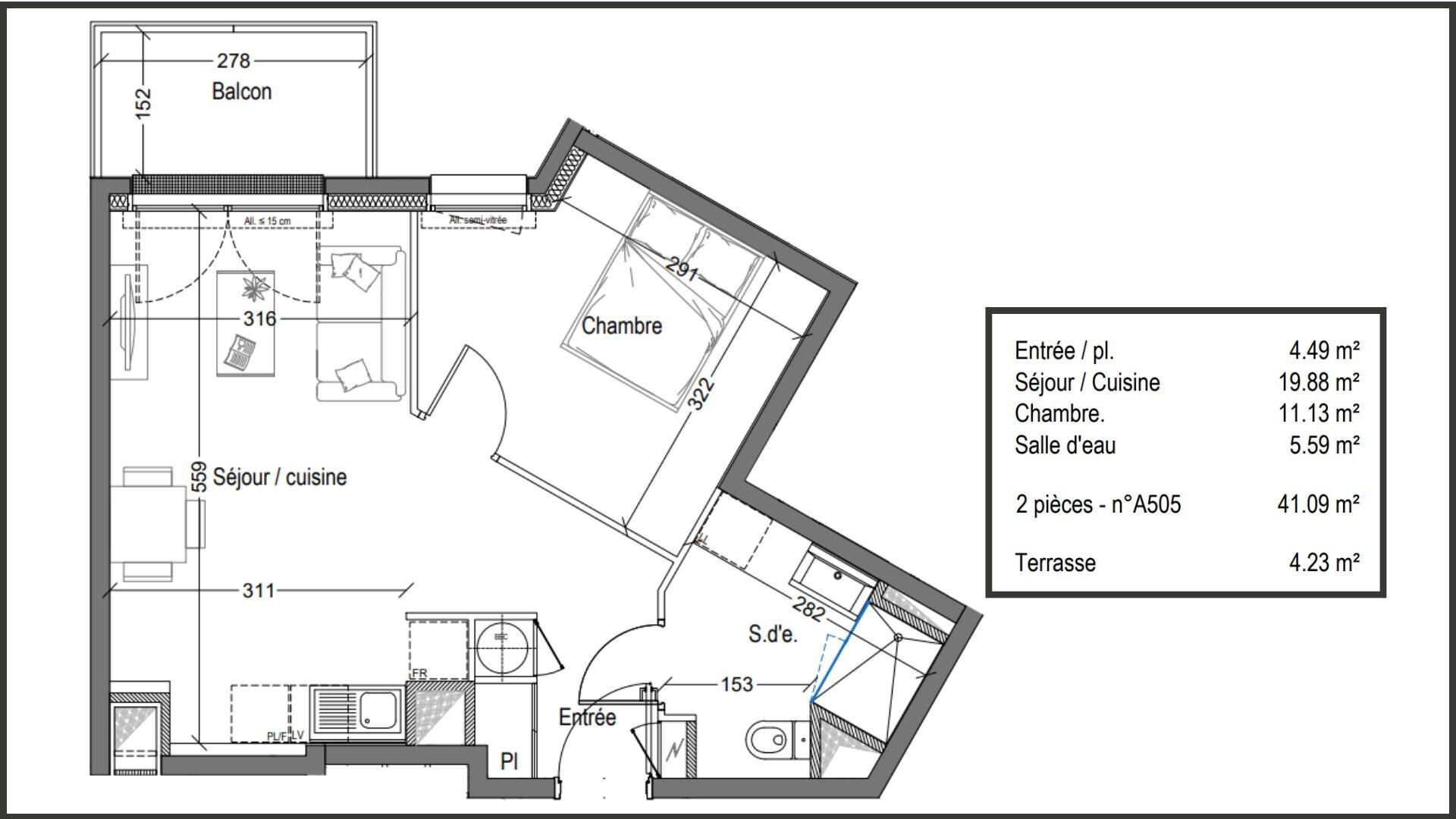
Iad France - Michel De Wavrechin vous propose : À la recherche d'un appartement confortable et lumineux à Villeparisis ? Ne cherchez plus, nous avons le bien idéal pour vous ! Magnifique DUPLEX Situé au premier étage et deuxième étage d'un immeuble de deux niveaux construit en 2001, cet Appatement en duplex de type T3 vous offre une surface habitable de 74 m². Au 1er Entrez avec wc, une belle pièce de vie lumineuse qui saura accueillir votre famille et vos convives dans le plus grand confort donnant sur une terrasse, Une cuisine équipée séparée donnant sur un balcon Au 2ème 2 chambres avec une salle de bain avec wc, un espace bureau, une terrasse Profitez de deux terrasse ensoleillée et un balcon pour vos moments de détente en extérieur, offrant une exposition plein sud pour des instants de bien-être tout au long de la journée. La résidence, sécurisée par digicode et interphone, propose un confort supplémentaire avec l'accès à la fibre optique, à l'assainissement collectif et à une ventilation mécanique. Ce bien est en bon état général, vous permettant d'emmenager sans travaux. Vous profiterez d'un chauffage individuel avec des radiateurs alimentés par l'électricité et le gaz naturel pour un confort thermique optimal. Ravalement effectué. La résidence, fermée et sécurisée, vous offre tranquillité et intimité. Deux place de parking et une cave sont inclus. Ne manquez pas l'opportunité de vivre dans cet appartement lumineux et confortable à Villeparisis. Contactez-nous dès aujourd'hui pour organiser une visite ! La presente annonce immobiliere vise 4 lots situés dans une copropriété de 44 lots au total et ne faisant l'objet d'aucune procédure en cours citée à l'article L. 721-1 du code de la construction et de l'habitation. Montant moyen mensuel de charges déclaré par le vendeur : 190€ par mois (soit 2280 € annuel). Honoraires d'agence à la charge du vendeur. Information d'affichage énergétique sur ce bien : classe ENERGIE D indice 181 et classe CLIMAT D indice 39. Les informations sur les risques auxquels ce bien est exposé, y compris l'obligation légale de débroussaillement, sont disponibles sur le site Géorisques : http://www.georisques.gouv.fr. La présente annonce immobilière a été rédigée sous la responsabilité éditoriale de M Michel De Wavrechin mandataire indépendant en immobilier (sans détention de fonds), agent commercial de la SAS I@D France immatriculé au RSAC de PONTOISE sous le numéro 824241210, titulaire de la carte de démarchage immobilier pour le compte de la société I@D France SAS.

À proximité

Recherche des commodités à proximité...

Détails de l'annonce

Localisation

Ville
Villeparisis
Pays
FR

Diagnostics / Énergie

Diagnostic DPE
181
Diagnostic GES
39

Surfaces / Pièces / Composition

Nombre d’étages
2

Chauffage et diagnostics

Diagnostic de performance énergétique (DPE)
a
b
c
d
e
f
g
Indice d'émission de gaz à effet de serre (GES)
a
b
c
d
e
f
g
Rappelez-moi