Type
Bien immobilierTarif
980 000 €Chambres
4Salles de bain
0Vente Appartement 5 pièces
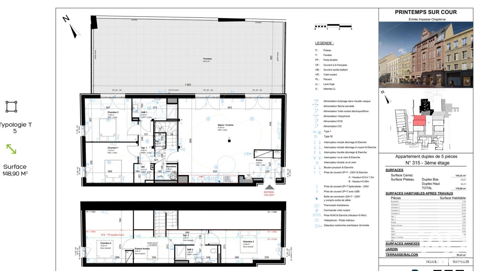
Iad France - Sulyvan Pereira (06 01 85 33 52) vous propose : Au cOEur battant de Metz, à l’adresse la plus emblématique du centre historique, rue Serpenoise, ce duplex de caractère incarne une vision rare de l’habitat urbain haut de gamme. Derrière une façade chargée d’histoire, entièrement réhabilitée dans le respect du patrimoine messin, se dévoile un appartement d’exception de 5 pièces, développant près de 149 m² environ habitables, prolongé par une spectaculaire terrasse plein ciel de plus de 95 m² environ. Une adresse confidentielle, pour celles et ceux qui veulent vivre la ville autrement. Dès l’entrée, les volumes impressionnent. La pièce de réception, baignée de lumière grâce à de larges ouvertures, offre un espace de vie généreux où salon, salle à manger et cuisine s’articulent avec naturel. Les hauteurs sous plafond, la qualité des matériaux et la fluidité des circulations rappellent le charme de l’ancien, avec le confort d’un logement entièrement repensé. La partie nuit accueille plusieurs chambres aux proportions élégantes, dont une véritable suite parentale. Les étages supérieurs offrent des espaces intimes, modulables selon les usages, idéals pour un bureau, une chambre d’amis ou un espace dédié à la famille. Chaque mètre carré a été conçu pour conjuguer esthétique, fonctionnalité et durabilité. À l’extérieur, la terrasse devient un luxe absolu en plein centre-ville. Un lieu de vie à part entière, suspendu au-dessus de Metz, où l’on imagine des dîners d’été, des moments de calme ou des instants partagés à l’abri de l’agitation, tout en restant au cOEur de la ville. Vivre rue Serpenoise, c’est choisir une adresse iconique. À quelques pas de la cathédrale Saint-Étienne, des commerces de qualité, des restaurants, des terrasses et de la gare accessible à pied, tout se fait sans contrainte, dans une atmosphère vivante et culturelle. Une centralité rare, recherchée, intemporelle. Ce bien s’adresse à celles et ceux qui recherchent le charme de l’ancien sans compromis sur le confort moderne, dans un immeuble réhabilité selon les standards actuels en matière de performance énergétique, d’isolation et d’équipements. Une opportunité patrimoniale forte, aussi désirable pour y vivre que pour transmettre. Un lieu unique, pour une clientèle qui ne transige ni sur l’adresse, ni sur le caractère, ni sur la qualité. Honoraires d’agence à la charge du vendeur. Bien non soumis au DPE. Les informations sur les risques auxquels ce bien est exposé sont disponibles sur le site Géorisques : www.georisques.gouv.fr. La présente annonce immobilière a été rédigée sous la responsabilité éditoriale de M. Sulyvan Pereira EI (ID 88628), mandataire indépendant en immobilier (sans détention de fonds), agent commercial de la SAS I@D France immatriculé au RSAC de CLERMONT FERRAND sous le numéro 944429612, titulaire de la carte de démarchage immobilier pour le compte de la société I@D France SAS. Retrouvez tous nos biens sur notre site internet. www.iadfrance.fr.
À proximité
Recherche des commodités à proximité...
Détails de l'annonce
Localisation
Ville
Metz
Pays
FR
Surfaces / Pièces / Composition
Nombre d’étages
3
Étage
3
Chauffage et diagnostics
Diagnostic de performance énergétique (DPE)
a
b
c
d
e
f
g
Indice d'émission de gaz à effet de serre (GES)
a
b
c
d
e
f
g
