Type
Bien immobilierTarif
328 070 €Chambres
0Salles de bain
0Vente Appartement 4 pièces
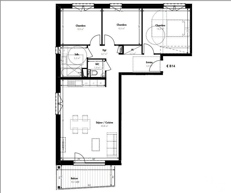
Iad France - Habib Rahim (06 68 82 22 90) vous propose : LES LODGES DU PARC - APPARTEMENT T4 AVEC BALCON Offrez-vous un cadre de vie exceptionnel dans l’éco-quartier Cantebonne à Villerupt ! Découvrez ce superbe T4 de 82,98 m² environ, situé au 1er étage du Bâtiment B avec balcon spacieux de 8,16 m² environ. Des volumes généreux et optimisés : Séjour / Cuisine de 30,84 m² environ : Un espace de vie lumineux, idéal pour recevoir et profiter en famille. 3 chambres confortables : Chambre principale de 14,31 m² environ, votre véritable suite privée. Deux chambres de 9,94 m² environ et 9,49 m² environ, parfaites pour enfants, bureau ou invités. Salle de bain moderne de 5,27 m² environ. Entrée accueillante avec placard intégré (1,07 m² environ) pour une organisation optimale. Dégagement de 6,72 m² environ pour faciliter la circulation. WC séparé de 1,92 m² environ pour plus de praticité. Le + qui fait toute la différence : Un balcon privatif de 8,16 m² environ, idéal pour profiter des belles journées et créer un espace extérieur chaleureux. Une résidence d’exception : Située dans un éco-quartier moderne et verdoyant à seulement 10 minutes du Luxembourg. Performances énergétiques optimisées pour un habitat durable et écoresponsable. Proximité immédiate des écoles, commerces et infrastructures pour un quotidien pratique et agréable. Pourquoi choisir Les Lodges du Parc ? Un investissement de qualité, un environnement paisible et un appartement clé en main aux prestations modernes : Grand séjour lumineux 3 belles chambres Balcon spacieux Architecture contemporaine et durable Ne laissez pas passer cette opportunité unique ! Contactez-nous dès aujourd’hui pour plus d’informations ou pour organiser une visite. Les Lodges du Parc, votre futur chez-vous à deux pas du Luxembourg ! Honoraires d’agence à la charge du vendeur. Bien non soumis au DPE. Les informations sur les risques auxquels ce bien est exposé sont disponibles sur le site Géorisques : www.georisques.gouv.fr. La présente annonce immobilière a été rédigée sous la responsabilité éditoriale de M. Habib Rahim EI (ID 39926), mandataire indépendant en immobilier (sans détention de fonds), agent commercial de la SAS I@D France immatriculé au RSAC de VAL DE BRIEY sous le numéro 445328511, titulaire de la carte de démarchage immobilier pour le compte de la société I@D France SAS. Retrouvez tous nos biens sur notre site internet. www.iadfrance.fr.
À proximité
Recherche des commodités à proximité...
Détails de l'annonce
Localisation
Ville
Villerupt
Pays
FR
Surfaces / Pièces / Composition
Nombre d’étages
Chauffage et diagnostics
Diagnostic de performance énergétique (DPE)
a
b
c
d
e
f
g
Indice d'émission de gaz à effet de serre (GES)
a
b
c
d
e
f
g
