Type
Bien immobilierTarif
458 000 €Chambres
1Salles de bain
0Vente Appartement 2 pièces
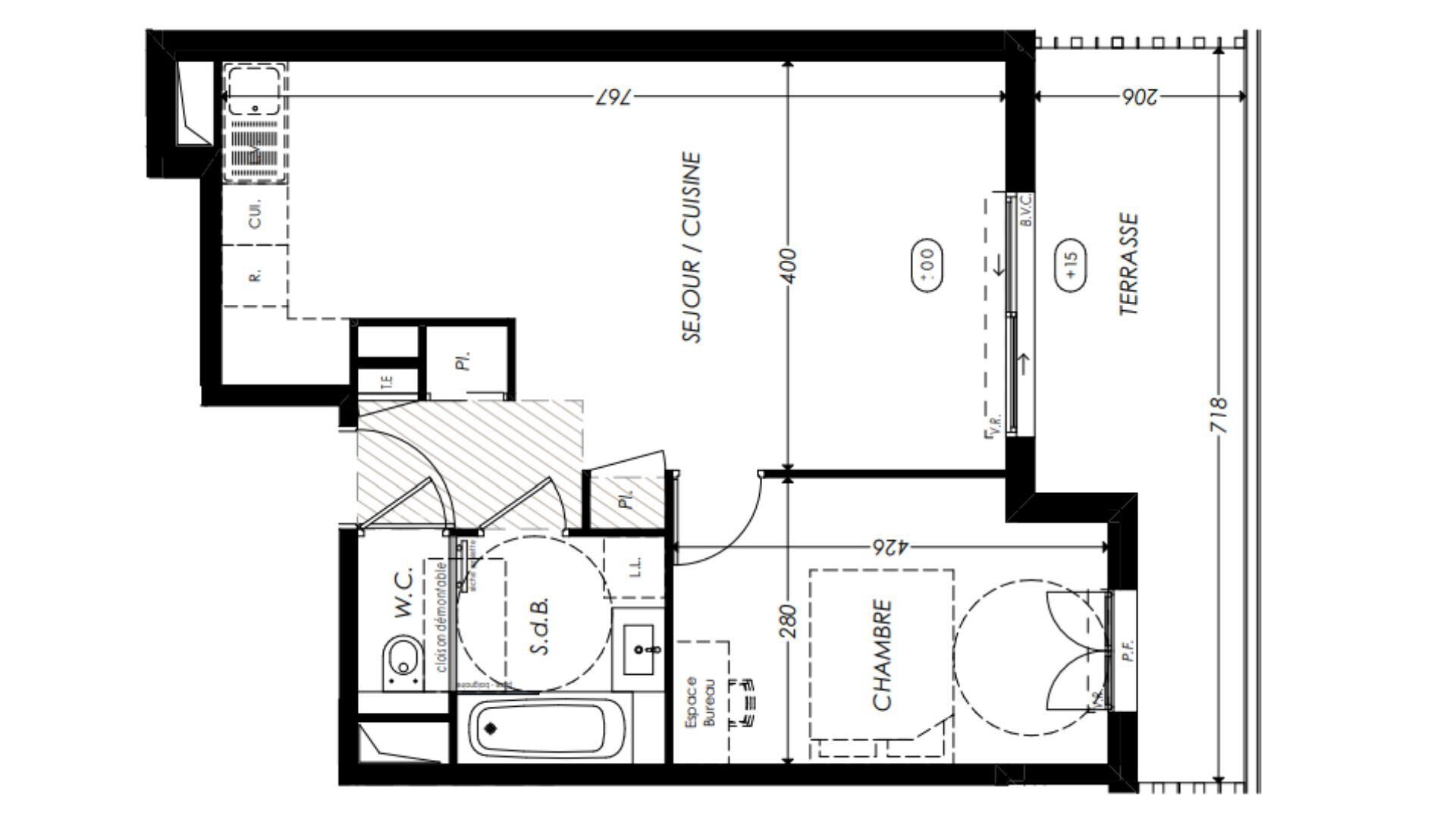
Iad France - Sarah Rozière (06 99 86 19 42) vous propose : Appartement T2 avec terrasse à Antibes. Située chemin du Petit Four, dans un quartier résidentiel paisible et recherché d’Antibes, la résidence contemporaine Nouvelle Vague conjugue élégance architecturale et confort. À proximité des commerces, des transports (arrêt “Petit Four”), des plages et du Port Vauban, cette adresse offre un cadre de vie privilégié entre mer et nature. La résidence bénéficie également d’un jardin paysager, d’équipements premium et d’une piscine intérieure avec vue mer. Disponible 2027. Un appartement raffiné : Situé au 3 ème étage, cet appartement T2 de 48 m² environ habitables se prolonge par une terrasse de 12 m² environ. - Séjour / cuisine de 27 m² environ. - Une chambre confortable. - Salle d’eau moderne. De belles prestations : - Menuiseries PVC / aluminium avec double vitrage isolant. - Chauffage et rafraîchissement par pompe à chaleur collective, système gainable réversible. - Domotique : commande centralisée volets + éclairage, pilotage smartphone. - Vidéophone, digicode, accès sécurisé Vigik. - Parking en sous-sol avec portail motorisé et reconnaissance de plaques. L’art de vivre à Antibes : - À 10 minutes du Port Vauban et des remparts d’Antibes. - À 6 minutes des plages et du Fort Carré. - À proximité de la gare TGV et de l’A8. - Quartier résidentiel verdoyant et calme. - Piscine intérieure avec vue mer, jardins partagés, espaces verts soignés. N’hésitez pas à me contacter pour plus d’informations ou pour un accompagnement sur mesure. Honoraires d’agence à la charge du vendeur. Bien non soumis au DPE. Les informations sur les risques auxquels ce bien est exposé sont disponibles sur le site Géorisques : www.georisques.gouv.fr. La présente annonce immobilière a été rédigée sous la responsabilité éditoriale de Mlle Sarah Rozière EI (ID 83696), mandataire indépendant en immobilier (sans détention de fonds), agent commercial de la SAS I@D France immatriculé au RSAC de Clermont-Ferrand sous le numéro 978616993, titulaire de la carte de démarchage immobilier pour le compte de la société I@D France SAS. Retrouvez tous nos biens sur notre site internet. www.iadfrance.fr.
À proximité
Recherche des commodités à proximité...
Détails de l'annonce
Localisation
Ville
Antibes
Pays
FR
Surfaces / Pièces / Composition
Nombre d’étages
3
Étage
3
Chauffage et diagnostics
Diagnostic de performance énergétique (DPE)
a
b
c
d
e
f
g
Indice d'émission de gaz à effet de serre (GES)
a
b
c
d
e
f
g
