Type
Bien immobilierTarif
215 000 €Chambres
0Salles de bain
0Vente Immeuble 125 m²
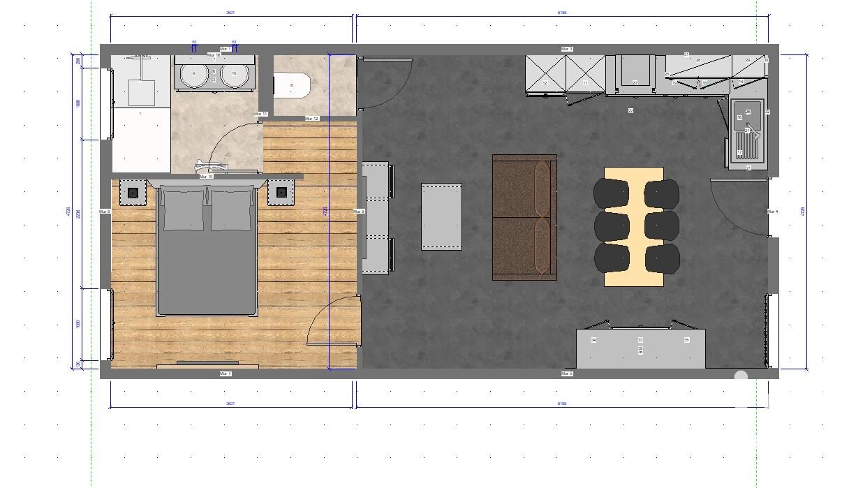
Iad France - Nathalie Cameau vous propose : Opportunité Exceptionnelle : bâtiment rénové de 125 m² au COEur d'Auxerre ! Situé en plein cOEur de la ville, cet impressionnant immeuble rénové offre une surface généreuse de 125 m² répartie sur trois niveaux. Doté d'un cachet unique, ce bien saura vous séduire par son style authentique allié à des éléments modernes. L'intérieur de ce bâtiment est entièrement rénové et prêt à accueillir divers projets. Avec ses trois niveaux, il offre de multiples possibilités d'aménagement. Actuellement, l'aménagement des espaces se décompose comme suit : - à rez-de-chaussée, un local commercial - au 1er étage, un espace aménagé en bureaux - au 2e et 3e étages, un appartement équipé d'une cuisine neuve et d'une salle d'eau, ainsi que d'une chambre, le tout, pourvu d'une climatisation réversible pour un confort optimal en toute saison. Afin de mieux vous projeter, les photos des différents espaces ont été réalisées meublées et non meublées. De même, des plans d'aménagement sont à votre disposition, montrant la transformation du premier étage en appartement (actuellement bureaux). Géographiquement parlant, l'habitation se situe à proximité immédiate des commerces, écoles et transports en commun. De plus, la présence d'un interphone assure une sécurité supplémentaire pour plus de sérénité au quotidien. Que vous souhaitiez transformer ce bâtiment en un espace de vie exceptionnel, en un local commercial ou en un espace de coworking, cette opportunité saura satisfaire vos attentes les plus exigeantes. Honoraires d'agence à la charge du vendeur. Information d'affichage énergétique sur ce bien : classe ENERGIE C indice 176 et classe CLIMAT A indice 5. Les informations sur les risques auxquels ce bien est exposé, y compris l'obligation légale de débroussaillement, sont disponibles sur le site Géorisques : http://www.georisques.gouv.fr. La présente annonce immobilière a été rédigée sous la responsabilité éditoriale de Mme Nathalie Cameau mandataire indépendant en immobilier (sans détention de fonds), agent commercial de la SAS I@D France immatriculé au RSAC de Auxerre sous le numéro 518531629, titulaire de la carte de démarchage immobilier pour le compte de la société I@D France SAS.
À proximité
Recherche des commodités à proximité...
Détails de l'annonce
Localisation
Ville
Auxerre
Pays
FR
Diagnostics / Énergie
Diagnostic DPE
176
Diagnostic GES
5
Surfaces / Pièces / Composition
Nombre d’étages
3
Chauffage et diagnostics
Diagnostic de performance énergétique (DPE)
a
b
c
d
e
f
g
Indice d'émission de gaz à effet de serre (GES)
a
b
c
d
e
f
g
