Type
Bien immobilierTarif
198 000 €Chambres
0Salles de bain
0Vente Immeuble 147 m²
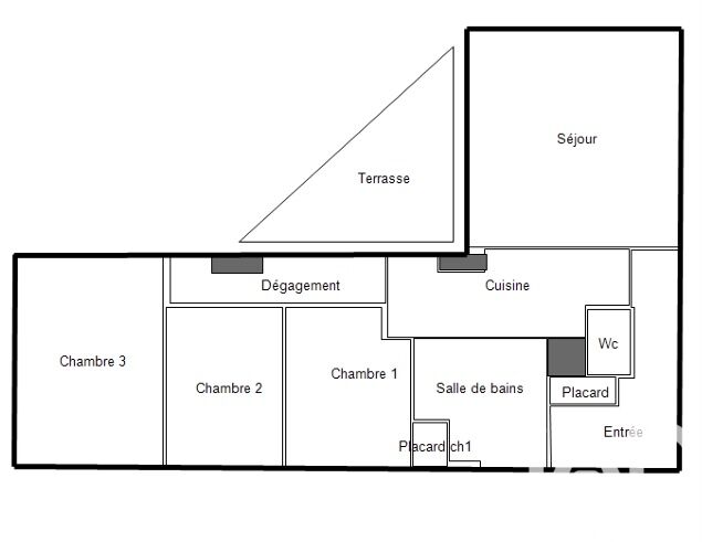
Iad France - Sophie Clemente vous propose : IMMEUBLE-MAISON A VENDRE Située dans une ville thermale très attractive et dynamique à Lamalou les bains (34240), venez découvrir cette jolie maison comprenant deux appartements (T2 et T4) et ses deux garages. EMPLACEMENT PRIVILEGIE AU CENTRE VILLE offrant un accès facile aux commerces, Halles, restaurants … et à la fois situé AU CALME dans une impasse. Au rez-de-chaussée, l'appartement de type T2 comprend un hall équipé d'un placard, un séjour spacieux, la cuisine bénéficie d'un accès direct à une terrasse ainsi que son jardin privatif. Ces deux espaces sont situés côté sud de la maison. La chambre est spacieuse (12.29 m²) et dispose d'un dressing. La salle d'eau est moderne et le wc est séparé pour plus de confort. Cet appartement dispose d'un accès direct à son propre garage de 16.5 m². Au 1er étage, le deuxième appartement est un T4. Le hall spacieux est aménagé d'un placard pour l'aspect pratique. La cuisine se situe en face du séjour qui est une pièce lumineuse et agréable exposée au sud également. Cet appartement bénéficie de trois grandes chambres avec placard (13.94, 14.75 et 12.56), d'une salle de bain et d'un wc séparé. Il dispose de son jardin privatif avec entrée par l'extérieur. Le garage dédié à cet appartement mesure 17 m². Les portes des deux garages sont motorisées. Le terrain de 391 m² est un atout supplémentaire. Les deux appartements sont loués par des locataires sérieuses depuis plusieurs années. Idéal investisseur car bonne rentabilité. Chauffage au gaz. Pas de copropriété. Entrée indépendante pour chaque locataire. Les atouts multiples de cet immeuble en font un bien RARE sur le marché. Renseignements complets sur demande. Honoraires d'agence à la charge du vendeur. Information d'affichage énergétique sur ce bien : classe ENERGIE E indice 262 et classe CLIMAT E indice 54. Les informations sur les risques auxquels ce bien est exposé, y compris l'obligation légale de débroussaillement, sont disponibles sur le site Géorisques : http://www.georisques.gouv.fr. La présente annonce immobilière a été rédigée sous la responsabilité éditoriale de Mme Sophie Clemente mandataire indépendant en immobilier (sans détention de fonds), agent commercial de la SAS I@D France immatriculé au RSAC de BEZIERS sous le numéro 832312490, titulaire de la carte de démarchage immobilier pour le compte de la société I@D France SAS.
À proximité
Recherche des commodités à proximité...
Détails de l'annonce
Localisation
Ville
Lamalou les Bains
Pays
FR
Diagnostics / Énergie
Diagnostic DPE
262
Diagnostic GES
54
Chauffage et diagnostics
Diagnostic de performance énergétique (DPE)
a
b
c
d
e
f
g
Indice d'émission de gaz à effet de serre (GES)
a
b
c
d
e
f
g
