Vente Maison/villa 6 pièces
Type
Bien immobilierTarif
570 000 €Chambres
0Salles de bain
0Vente Maison/villa 6 pièces
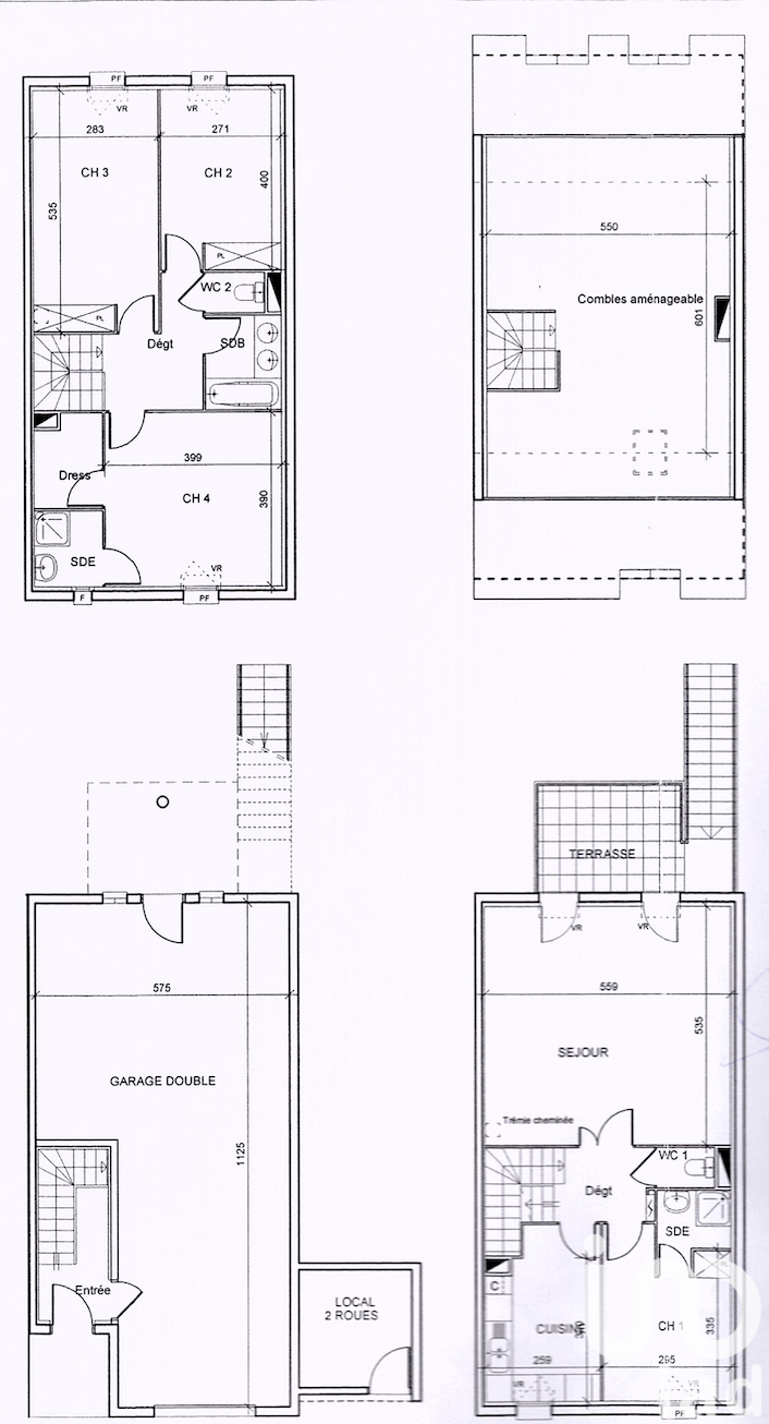
Iad France - Sybille Zheng vous propose : Rare sur le secteur – Spacieuse maison familiale avec vue sur la Seine À vendre : maison familiale de 4 niveaux, idéalement située entre le Parc Nautique Interdépartemental, le Parc des Gondoles et la Seine, dans un environnement verdoyant et recherché. Cette maison offre de beaux volumes et se compose ainsi : RDC : entrée, double garage, jardin avec porte d’entrée secondaire et local à vélos. 1er étage : cuisine, bureau (pouvant servir de salle à manger ou de chambre), séjour lumineux avec accès direct à la terrasse et escalier menant au jardin, salle d’eau et WC séparé. 2e étage : trois chambres dont une * suite parentale * avec salle d’eau et dressing, salle de bains et WC séparé sur le palier. 3e étage / combles aménagés : grande pièce traversante avec vélux de chaque côté, possibilité d’aménager deux chambres supplémentaires ou un grand espace de loisirs. Points forts : Vue imprenable sur la Seine depuis le séjour, la terrasse et le jardin Maison lumineuse, traversante et bien agencée Nombreux emplacements de stationnement privatifs Maison entretenue, habitable immédiatement Fenêtres dans chaque pièce d’eau (salle de bains, salle d’eau, WC) Emplacement : Quartier calme et résidentiel À deux pas des parcs, espaces de loisirs et balades en bord de Seine Proximité des écoles, commerces et transports (RER, bus, accès rapides aux grands axes) Idéal pour les familles ou pour ceux qui souhaitent allier confort, espace et nature tout en restant proche de Paris À visiter sans tarder ! La presente annonce immobiliere vise 1 lot situé dans une copropriété de 7 lots au total et ne faisant l'objet d'aucune procédure en cours citée à l'article L. 721-1 du code de la construction et de l'habitation. Montant moyen mensuel de charges déclaré par le vendeur : 62.33€ par mois (soit 748 € annuel). Honoraires d'agence à la charge du vendeur. Information d'affichage énergétique sur ce bien : classe ENERGIE C indice 116 et classe CLIMAT C indice 24. Les informations sur les risques auxquels ce bien est exposé, y compris l'obligation légale de débroussaillement, sont disponibles sur le site Géorisques : http://www.georisques.gouv.fr. La présente annonce immobilière a été rédigée sous la responsabilité éditoriale de Mme Sybille Zheng mandataire indépendant en immobilier (sans détention de fonds), agent commercial de la SAS I@D France immatriculé au RSAC de BOBIGNY sous le numéro 882467889, titulaire de la carte de démarchage immobilier pour le compte de la société I@D France SAS.
Détails de l'annonce
Localisation
Ville
Choisy-le-Roi
Pays
FR
Diagnostics / Énergie
Diagnostic DPE
116
Diagnostic GES
24
Surfaces / Pièces / Composition
Nombre d’étages
4
Chauffage et diagnostics
Diagnostic de performance énergétique (DPE)
a
b
c
d
e
f
g
Indice d'émission de gaz à effet de serre (GES)
a
b
c
d
e
f
g
