Trouver...

Language: FR

Devise: EUR

Vente Appartement 4 pièces

Publié le 11 July 2025
Type
Bien immobilier
Tarif
606 000 €
Chambres
0
Salles de bain
0

Vente Appartement 4 pièces

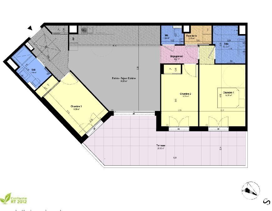
Iad France - Alexandre Rachel (07 83 42 76 10) vous propose : À VENDRE – Spacieux T4 de 90 m² environavec terrasse à Châteauneuf-Grasse, dans un cadre résidentiel recherché Situé à deux pas d’un parcours de golf renommé, cet appartement 4 pièces offre un cadre de vie paisible entre nature et commodités, au cOEur d’un environnement verdoyant et résidentiel. Un intérieur confortable et lumineux • Belle pièce de vie avec cuisine ouverte, donnant sur une grande terrasse exposée • Salle de bains indépendante et WC séparés • Prestations soignées : carrelage grand format, menuiseries aluminium, double vitrage, volets motorisés • Climatisation réversible, domotique pour un confort optimal au quotidien Un cadre privilégié pour vivre ou investir • Résidence intimiste avec piscine et jardins paysagers • Quartier calme, entouré de villas et de résidences de standing • Terrasses ou jardins privatifs aménagés pour chaque logement • Accès sécurisé, environnement serein à quelques minutes de toutes commodités Emplacement stratégique dans l’arrière-pays cannois • À proximité immédiate du golf • 10 min de Valbonne, 16 min de Sophia-Antipolis • 11 min de l’autoroute A8 • 30 à 35 min de Cannes, Nice, et de l’aéroport Un bien rare, idéal pour profiter du calme, de l’espace et d’un art de vivre entre collines et littoral. Honoraires d’agence à la charge du vendeur. Bien non soumis au DPE. Les informations sur les risques auxquels ce bien est exposé sont disponibles sur le site Géorisques : www.georisques.gouv.fr. La présente annonce immobilière a été rédigée sous la responsabilité éditoriale de M. Alexandre Rachel EI (ID 57750), mandataire indépendant en immobilier (sans détention de fonds), agent commercial de la SAS I@D France immatriculé au RSAC de DRAGUIGNAN sous le numéro 880748447, titulaire de la carte de démarchage immobilier pour le compte de la société I@D France SAS. Retrouvez tous nos biens sur notre site internet. www.iadfrance.fr.

À proximité

Recherche des commodités à proximité...

Détails de l'annonce

Localisation

Ville
Châteauneuf-Grasse
Pays
FR

Surfaces / Pièces / Composition

Nombre d’étages

Chauffage et diagnostics

Diagnostic de performance énergétique (DPE)
a
b
c
d
e
f
g
Indice d'émission de gaz à effet de serre (GES)
a
b
c
d
e
f
g
Rappelez-moi