Type
Bien immobilierTarif
590 000 €Chambres
0Salles de bain
0Vente Immeuble 234 m²
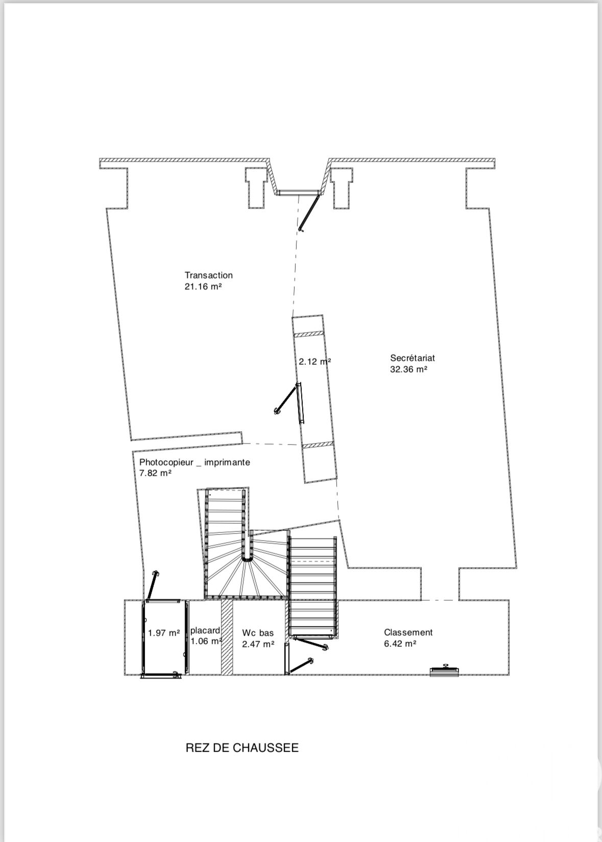
Iad France - Issam TALBI vous propose : IMMEUBLE DE RAPPORT – EMPLACEMENT STRATÉGIQUE – CENTRE-VILLE Situé en plein cOEur du centre ville de Trappes, à proximité immédiate de la gare de Trappes et de l’ensemble des commodités (commerces, transports, services), cet immeuble offre un fort potentiel et une rentabilité locative attractive. Désignation Un immeuble élevé sur cave, comprenant : Au rez-de-chaussée : un hall d’accueil, un hall avec escalier desservant les étages, un dégagement, trois bureaux, ainsi que divers espaces de circulation. Au premier étage : un palier desservant deux bureaux et des sanitaires. Au deuxième étage : un palier desservant deux bureaux. Au-dessus : des combles. Au sous-sol : une cave. Caractéristiques principales Surface au sol : 234 m² Surface habitable : 177 m² Immeuble à usage professionnel Belle vitrine offrant une excellente visibilité commerciale Les atouts Emplacement central recherché Proximité immédiate de la gare Accès rapide à toutes les commodités Configuration adaptée aux activités tertiaires Bonne rentabilité locative Forte visibilité grâce à la vitrine Potentiel d’aménagement et d’optimisation Destination et potentiel d’exploitation Cet immeuble est parfaitement adapté pour accueillir une agence immobilière, une compagnie d’assurance, une banque, ou plus largement toute activité tertiaire ou professionnelle (bureaux, services, professions libérales, etc.). Idéal pour Investisseurs recherchant un rendement attractif Professions libérales ou entreprises Projet de valorisation patrimoniale Pour toute information complémentaire ou pour organiser une visite, merci de nous contacter. Honoraires d'agence à la charge du vendeur. Information d'affichage énergétique sur ce bien : classe ENERGIE D indice 256 et classe CLIMAT D indice 42. Les informations sur les risques auxquels ce bien est exposé, y compris l'obligation légale de débroussaillement, sont disponibles sur le site Géorisques : http://www.georisques.gouv.fr. La présente annonce immobilière a été rédigée sous la responsabilité éditoriale de M Issam TALBI mandataire indépendant en immobilier (sans détention de fonds), agent commercial de la SAS I@D France immatriculé au RSAC de VERSAILLES sous le numéro 853796605, titulaire de la carte de démarchage immobilier pour le compte de la société I@D France SAS.
Nouveau
Cette annonce est récente
À proximité
Recherche des commodités à proximité...
Détails de l'annonce
Localisation
Ville
Trappes
Pays
FR
Diagnostics / Énergie
Diagnostic DPE
256
Diagnostic GES
42
Surfaces / Pièces / Composition
Nombre d’étages
2
Chauffage et diagnostics
Diagnostic de performance énergétique (DPE)
a
b
c
d
e
f
g
Indice d'émission de gaz à effet de serre (GES)
a
b
c
d
e
f
g
