Type
Bien immobilierTarif
2 205 000 €Chambres
0Salles de bain
0Vente Murs commerciaux 1 110 m²
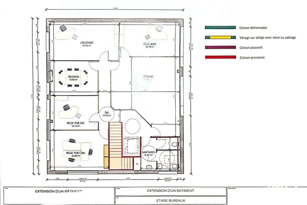
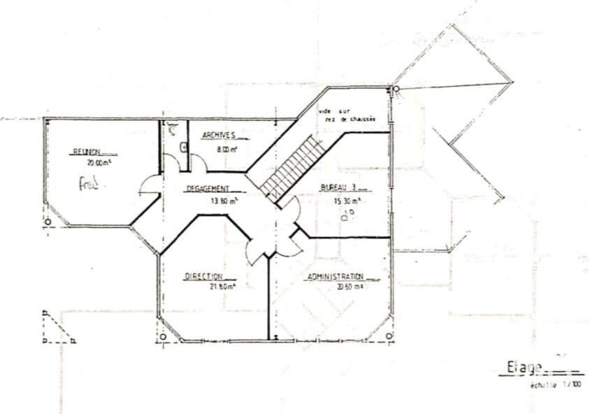
Iad France - Hélène Thibaud (06 74 86 46 47) vous propose : Ensemble de bâtiments professionnels, sur une parcelle de plus de 2200 m² environ, bénéficiant d’une localisation stratégique (à proximité immédiate de la rocade et accès facile et rapide centre ville de TOURS). Stationnement aisé. Les 1110 m² environ de surface se répartissent entre espace bureaux et atelier, 834 m² environ de plain-pied (bureau et atelier) et 278 m² environ à l’étage (uniquement des bureaux). Ce local d’origine a été construit en 1995. Une extension a été réalisée en 2018. Le local initial totalise 736 m² environ : 465 m² environ d’atelier en rez-de-chaussée et 289 m² environ de bureaux (dont 100 m² environ sur 4 bureaux à l’étage). Les plans des bâtiments et différents niveaux sont joints en photographies L’extension, réalisée selon les normes RT 2012, offre 360 m² environ supplémentaires, soit 180 m² environ par niveau. Le rez-de-chaussée accueille les ateliers ainsi qu’un bureau. À l’étage, chacun des 6 bureaux bénéficient d’une climatisation réversible. Double quai de chargement camion. Il est possible de circuler d’un bâtiment à l’autre via les ateliers. Pour autant, il est également possible de condamner cet accès de manière à rendre chacun des bâtiment indépendant et destinés à des activités distinctes. Autres photos sur demande. De nombreuses possibilités pour ces locaux ! On en discute autour d'une visite. Information d'affichage énergétique sur le bien associé à cette annonce : DPE NS indice 0 et GES NS indice 0. La présente annonce immobilière a été rédigée sous la responsabilité éditoriale de Mme Hélène Thibaud (ID 70668), Agent Commercial mandataire en immobilier immatriculé au Registre Spécial des Agents Commerciaux (RSAC) du Tribunal de Commerce de TOURS sous le numéro 912318987 Retrouvez tous nos biens sur notre site internet. www.iadfrance.fr.
Ce mois
Cette annonce est récente
À proximité
Recherche des commodités à proximité...
Détails de l'annonce
Localisation
Ville
Tours
Pays
FR
Surfaces / Pièces / Composition
Nombre d’étages
Chauffage et diagnostics
Diagnostic de performance énergétique (DPE)
a
b
c
d
e
f
g
Indice d'émission de gaz à effet de serre (GES)
a
b
c
d
e
f
g
