Trouver...

Language: FR

Devise: EUR

Vente Appartement 2 pièces

Publié le 16 February 2025
Type
Bien immobilier
Tarif
320 000 €
Chambres
1
Salles de bain
0

Vente Appartement 2 pièces

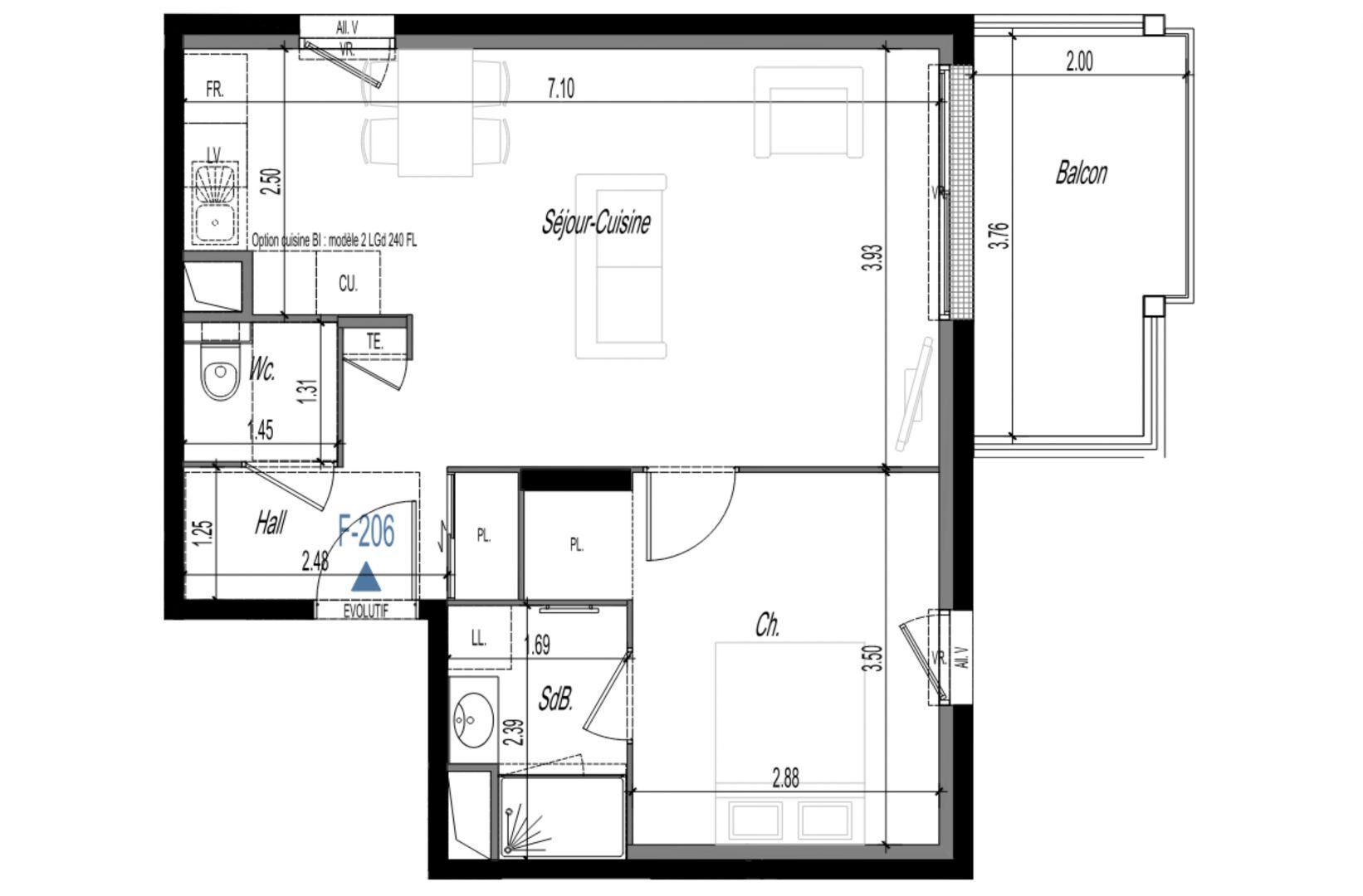
Iad France - Pascaline Castel vous propose : Charmant appartement idéalement situé à Deauville, à 5 minutes de la mer, entre la place Morny et la mairie de Deauville. Il offre une entrée, un séjour lumineux avec balcon, une chambre avec rangements, une cuisine, une salle de bains, WC séparés. Il est vendu avec une cave et un parking Tout se fait à pieds (commerces, gare, plage. ). Un vrai petit bijou proche de la mer La presente annonce immobiliere vise 4 lots situés dans une copropriété de 25 lots au total et ne faisant l'objet d'aucune procédure en cours citée à l'article L. 721-1 du code de la construction et de l'habitation. Montant moyen mensuel de charges déclaré par le vendeur : 132€ par mois (soit 1584 € annuel). Honoraires d'agence à la charge du vendeur. Information d'affichage énergétique sur ce bien : classe ENERGIE D indice 226 et classe CLIMAT B indice 7. Les informations sur les risques auxquels ce bien est exposé, y compris l'obligation légale de débroussaillement, sont disponibles sur le site Géorisques : http://www.georisques.gouv.fr. La présente annonce immobilière a été rédigée sous la responsabilité éditoriale de Mme Pascaline Castel mandataire indépendant en immobilier (sans détention de fonds), agent commercial de la SAS I@D France immatriculé au RSAC de NANTERRE sous le numéro 919431585, titulaire de la carte de démarchage immobilier pour le compte de la société I@D France SAS.

À proximité

Recherche des commodités à proximité...

Détails de l'annonce

Localisation

Ville
Deauville
Pays
FR

Diagnostics / Énergie

Diagnostic DPE
226
Diagnostic GES
7

Surfaces / Pièces / Composition

Nombre d’étages
4
Étage
2

Chauffage et diagnostics

Diagnostic de performance énergétique (DPE)
a
b
c
d
e
f
g
Indice d'émission de gaz à effet de serre (GES)
a
b
c
d
e
f
g
Rappelez-moi