Type
Bien immobilierTarif
175 000 €Chambres
3Salles de bain
0Vente Maison/villa 4 pièces
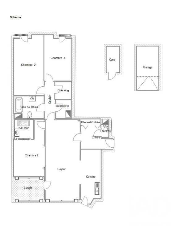
Iad France - Franck Marcoux vous propose : Venez découvrir cette maison de village d'environ 100 m² avec son terrain non attenant de 200 m² constructible sur lequel il y à un puis. Cette maison de village nous offre : Au RDC, une salle à manger ainsi que la cuisine. Au 1er étage, trois chambres spacieuses avec placard, une salle de bain avec cabine de douche ainsi qu'un WC. Au sous sol, une buanderie, une cave ainsi que la chaufferie. Un garage pouvant accueillir un véhicule vient compléter les prestations. Chauffage fuel. Honoraires d'agence à la charge du vendeur. Information d'affichage énergétique sur ce bien : classe ENERGIE E indice 191 et classe CLIMAT E indice 59. Les informations sur les risques auxquels ce bien est exposé, y compris l'obligation légale de débroussaillement, sont disponibles sur le site Géorisques : http://www.georisques.gouv.fr. La présente annonce immobilière a été rédigée sous la responsabilité éditoriale de M Franck Marcoux mandataire indépendant en immobilier (sans détention de fonds), agent commercial de la SAS I@D France immatriculé au RSAC de aubenas sous le numéro 890545916, titulaire de la carte de démarchage immobilier pour le compte de la société I@D France SAS.
À proximité
Recherche des commodités à proximité...
Détails de l'annonce
Localisation
Ville
Saint-Romain-d'Ay
Pays
FR
Diagnostics / Énergie
Diagnostic DPE
191
Diagnostic GES
59
Surfaces / Pièces / Composition
Nombre d’étages
2
Chauffage et diagnostics
Diagnostic de performance énergétique (DPE)
a
b
c
d
e
f
g
Indice d'émission de gaz à effet de serre (GES)
a
b
c
d
e
f
g
