Vente Maison/villa 4 pièces
Type
Bien immobilierTarif
179 900 €Chambres
2Salles de bain
0Vente Maison/villa 4 pièces
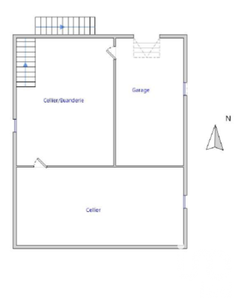
Iad France - Sonia Olagnon vous propose : Maison 4 pièces avec jardin et garage – Feurs Venez découvrir cette charmante maison des années 60, pleine de cachet et parfaitement entretenue, située dans un quartier calme et recherché de Feurs. Offrant environ 83 m² habitables et un sous sol aménageable sur un terrain arboré de 502 m², elle séduit par son confort, sa luminosité et son environnement paisible. Sur le même niveaux vous trouverez : Un séjour spacieux et lumineux de 32 m², ouvrant directement sur la terrasse, Une cuisine indépendante équipée, Deux grandes chambres, Une salle d’eau moderne et un WC séparé, Au sous-sol : Une buanderie / atelier pratique et un garage, pouvant évoluer selon vos besoins. Une cave À l’extérieur, profitez d’un jardin clos et verdoyant, idéal pour vos moments de détente ou de convivialité en famille. Côté pratique, tout est à proximité : gare, commerces, écoles et services à quelques minutes à pied. Et pour les amateurs de balades, la Loise vous attend à deux pas. Équipements : double vitrage PVC, fibre optique, VMC, tout-à-l’égout, chauffage au gaz. Quelques travaux de rénovation énergétique sont à prévoir, mais aucune urgence. Que vous recherchiez votre résidence principale ou un investissement locatif de qualité, cette maison est une belle opportunité à saisir sur Feurs ! Contactez moi dès aujourd’hui pour organiser une visite et laissez vous charmer ! Honoraires d'agence à la charge du vendeur. Information d'affichage énergétique sur ce bien : classe ENERGIE E indice 315 et classe CLIMAT E indice 67. Les informations sur les risques auxquels ce bien est exposé, y compris l'obligation légale de débroussaillement, sont disponibles sur le site Géorisques : http://www.georisques.gouv.fr. La présente annonce immobilière a été rédigée sous la responsabilité éditoriale de Mme Sonia Olagnon mandataire indépendant en immobilier (sans détention de fonds), agent commercial de la SAS I@D France immatriculé au RSAC de Saint Etienne sous le numéro 982421869, titulaire de la carte de démarchage immobilier pour le compte de la société I@D France SAS.
Détails de l'annonce
Localisation
Ville
Feurs
Pays
FR
Diagnostics / Énergie
Diagnostic DPE
315
Diagnostic GES
67
Surfaces / Pièces / Composition
Nombre d’étages
Chauffage et diagnostics
Diagnostic de performance énergétique (DPE)
a
b
c
d
e
f
g
Indice d'émission de gaz à effet de serre (GES)
a
b
c
d
e
f
g
