Type
Bien immobilierTarif
358 330 €Chambres
5Salles de bain
3Maison
Maison 7 pièces avec grand terrain arboré – Fort potentiel au Moule
Située à La Houssaie, Beau-Séjour au Moule, cette belle propriété vous séduira par ses volumes généreux, son environnement verdoyant et ses nombreuses possibilités d'exploitation.
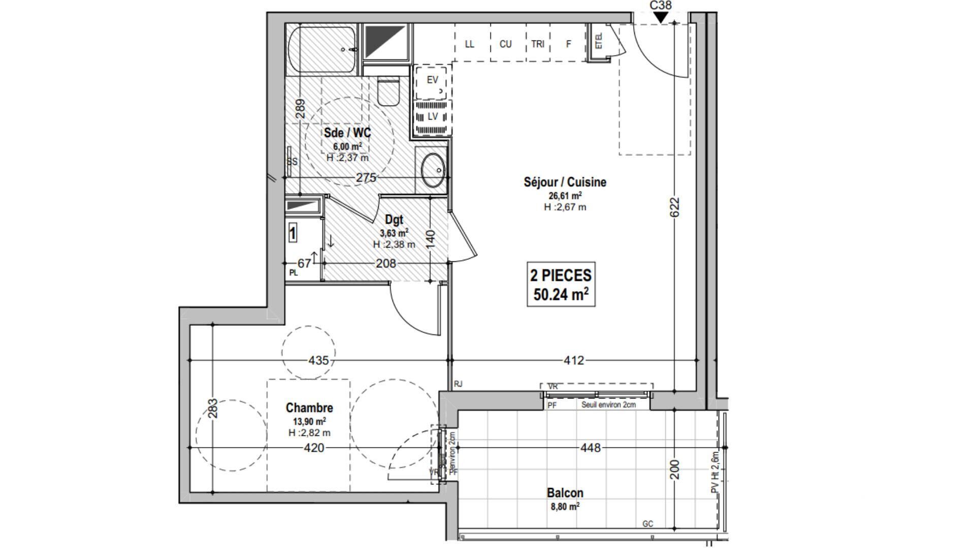
Implantée sur un terrain de 933 m², entièrement arboré et agrémenté d'arbres fruitiers, la maison développe environ 150 m² habitables et offre une configuration idéale aussi bien pour une grande famille que pour un projet locatif ou un usage mixte habitation/investissement.
Elle se compose de 7 pièces, dont 5 chambres et 3 salles de bain, avec notamment :
un garage au rez-de-chaussée,
une agréable terrasse au premier étage,
une mezzanine aménagée en 5 ème chambre, disposant de sa propre salle d'eau et de sa terrasse privative.
Quelques reprises murales et des peintures permettront de sublimer les volumes existants et d'en faire un lieu parfaitement à votre image.
Les atouts majeurs :
Grand terrain arboré de 933 m² avec arbres fruitiers
Environ 150 m² habitables
5 chambres, 3 salles d'eau
Terrasses, mezzanine, garage
Fort potentiel résidentiel et locatif
Environnement calme et verdoyant
Une opportunité rare pour ceux qui recherchent de l'espace, du charme et du potentiel au Moule.
Information visuels
Certaines photos ont été retouchées à l'aide de l'intelligence artificielle afin de présenter les pièces volontairement vidées et permettre une meilleure projection. Les volumes, ouvertures et caractéristiques du bien restent fidèles à la réalité.
DPE classé A - 15kWh/m²/an
Envie d'en savoir plus sur cette maison à vendre ?
Prenez contact avec votre conseiller en immobilier Patrice TAGLIAMENTO E.I (RSAC : 918994724 DE POINTE A PITRE) – Tél. :0690 07 09 03
Les informations sur les risques auxquels ce bien est exposé sont disponibles sur le site Géorisques : www.georisques.gouv.fr
À proximité
Recherche des commodités à proximité...
Détails de l'annonce
Finances / Mandat / Références
Charges
€
Localisation
Ville
Le Moule
Pays
France
Surfaces / Pièces / Composition
Surface habitable
150 m²
Nombre de pièces
7
Nombre de chambres
5
Nombre de salles de bain
3
Caractéristiques / Équipements
Ascenseur
Digicode
Interphone
Chauffage et diagnostics
Diagnostic de performance énergétique (DPE)
a
b
c
d
e
f
g
Indice d'émission de gaz à effet de serre (GES)
a
b
c
d
e
f
g
